3D Модели
Доступы и подписка
Галерея
Работа
Форум
Блоги
Искать в разделе
Модели
Галерея
Работа
Форум
Блоги
Люди
Регистрация
Войти
arrow
bascket-dark
bascket
basket-dark
basket
carousel-next-corner
carousel-next
carousel-prev-corner
carousel-prev
drop-white
fb
hi_res
mail
modal-close
move
next_white
pen
photo
prev_white
vk
ok
Галерея
Архитектура
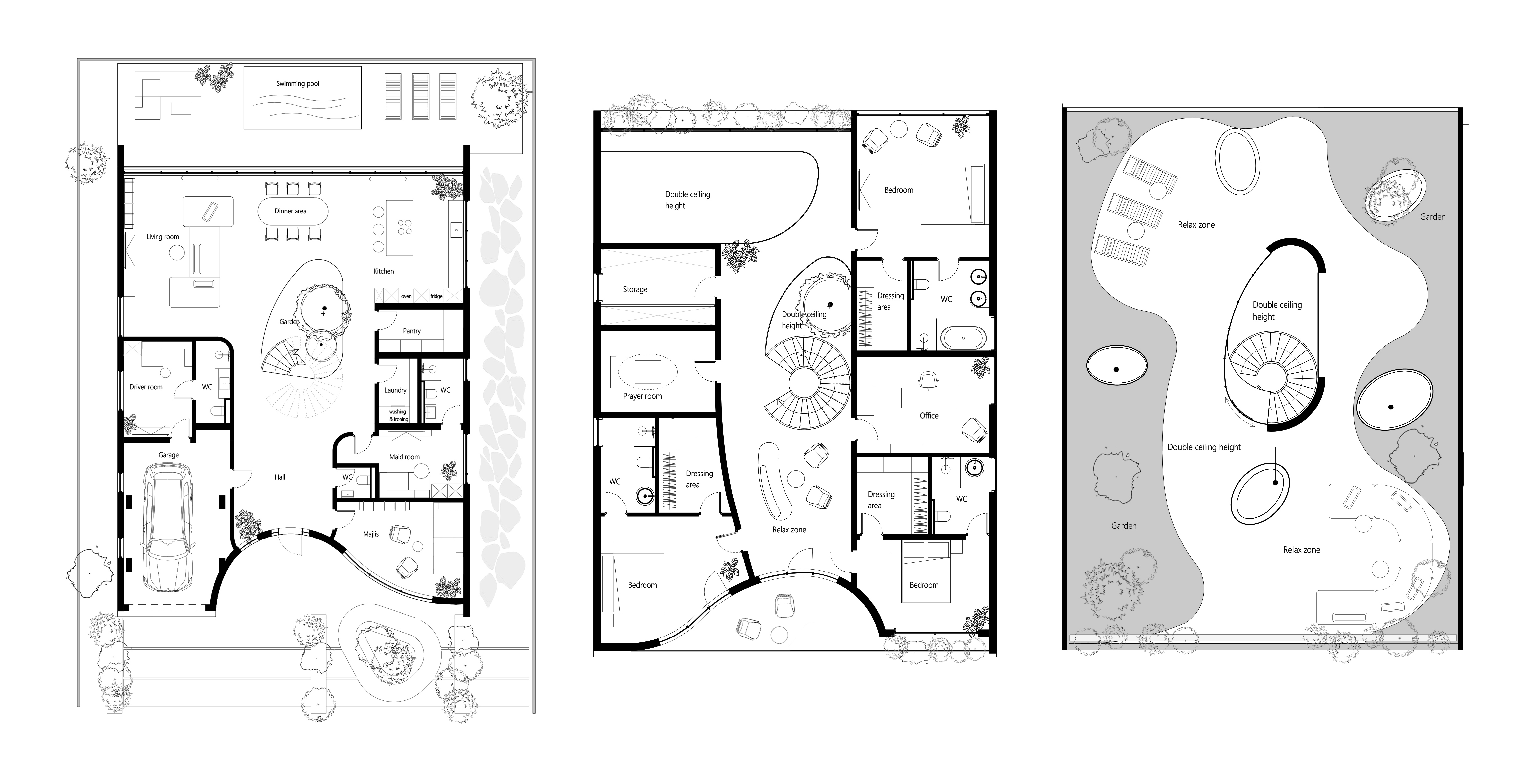
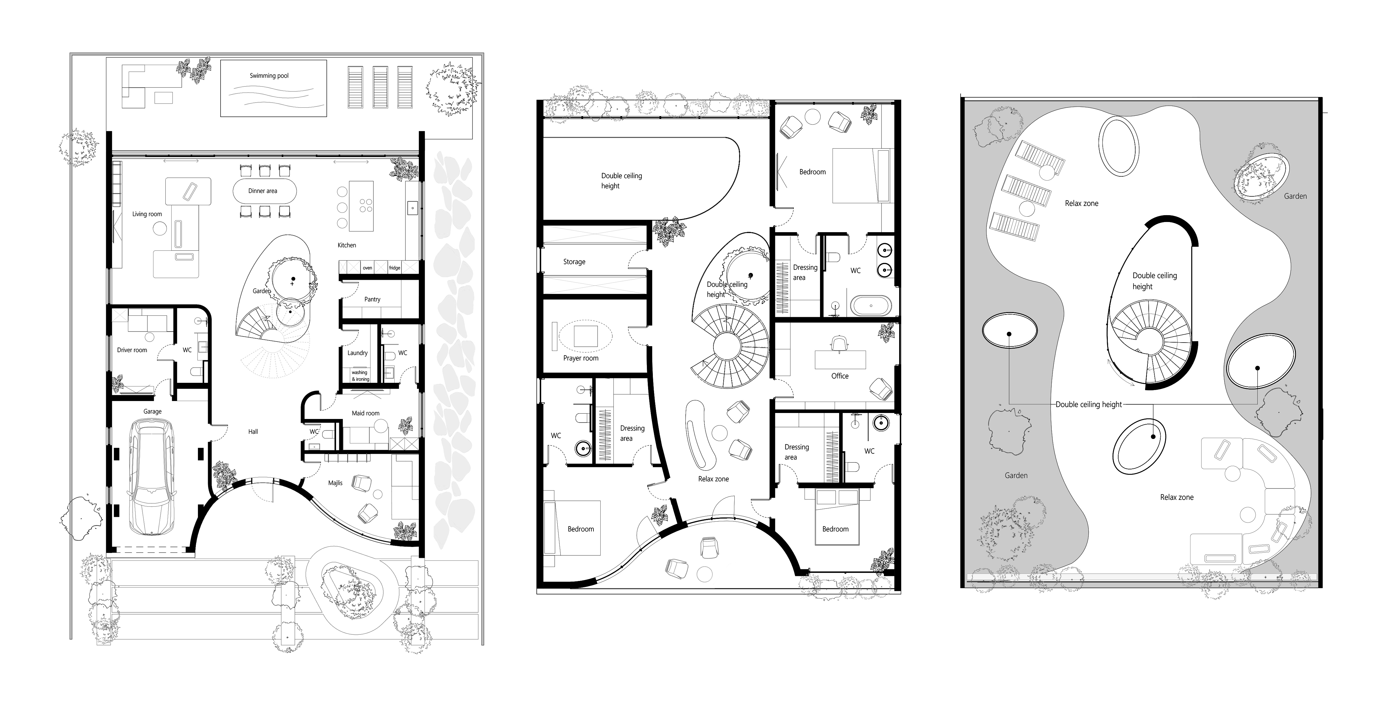
OASIS HOUSE
В избранное
В избранном
maxarh90
1480
08.09.2025 12:12
3ds max
,
coronarender
,
photoshop
,
design
,
vizualization
,
architecture
,
interior
,
vizline
,
livingroom
,
house
,
villa
,
architectural project
117
Нравится
_E11E_
AndreyKov88
Kurtep
yeshbekov
pupsan
Анджелфилд
LisaAlisa77
dikdog
Смотреть всех
OASIS HOUSE Архитектура: Vizline studio & Ivan Lobachevsky Дизайн: Vizline studio & Ivan Lobachevsky Визуализация: Vizline studio Year 2025
https://www.behance.net/gallery/233260515/OASIS-HOUSE
Другие работы maxarh90
Комментарии (8)
+2
Avent
2025.09.08 12:49
хорошечно. Люблю такие проекты
0
maxarh90
2025.09.09 12:43
спасибо!
+2
3DMalina
2025.09.08 13:24
Красиво!
+1
maxarh90
2025.09.09 12:43
Спасибо!
+2
Brualist
2025.09.09 10:44
Шикарно
0
maxarh90
2025.09.09 23:32
спасибо!
0
Bunyfa
2025.09.10 20:00
super
0
DizZ_arch220
2025.09.19 23:16
Океан, просто огонь)
Наверх