3D Модели
Доступы и подписка
Галерея
Работа
Форум
Блоги
Искать в разделе
Модели
Галерея
Работа
Форум
Блоги
Люди
Регистрация
Войти
arrow
bascket-dark
bascket
basket-dark
basket
carousel-next-corner
carousel-next
carousel-prev-corner
carousel-prev
drop-white
fb
hi_res
mail
modal-close
move
next_white
pen
photo
prev_white
vk
ok
Галерея
Архитектура
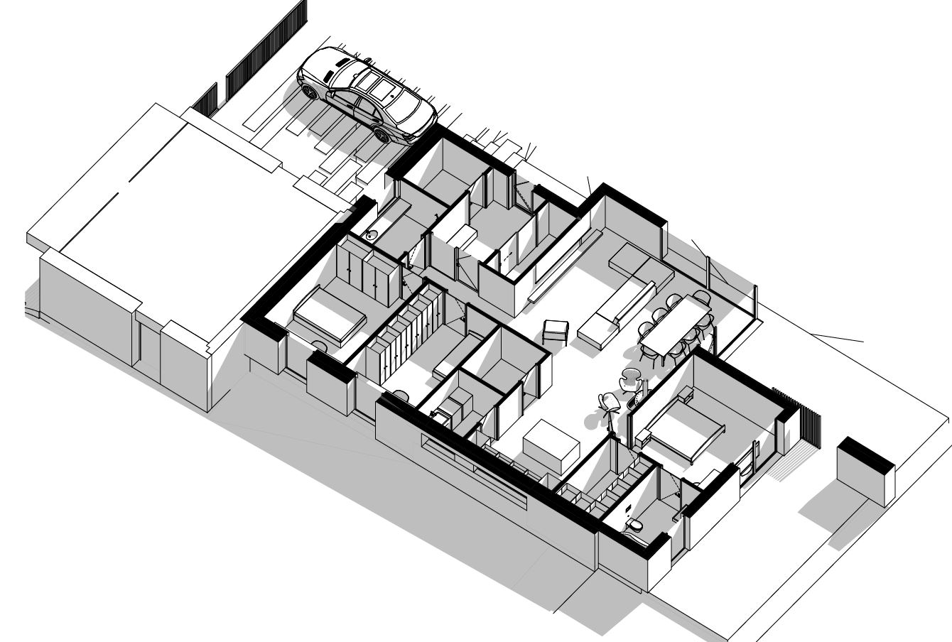
Проект одноэтажного дома с плоской кровлей
В избранное
В избранном
neomartello
1219
25.11.2024 05:40
52
Нравится
seimase
nesprashivaj
grand_lion
2021bahromarch
redjam
cmierles
nadin_k
sapernikova_ira
Смотреть всех
Проект одноэтажного дома с плоской кровлей 150м2.
Другие работы neomartello
Комментарии (0)
Наверх