Зарплата

400 руб за кв.м

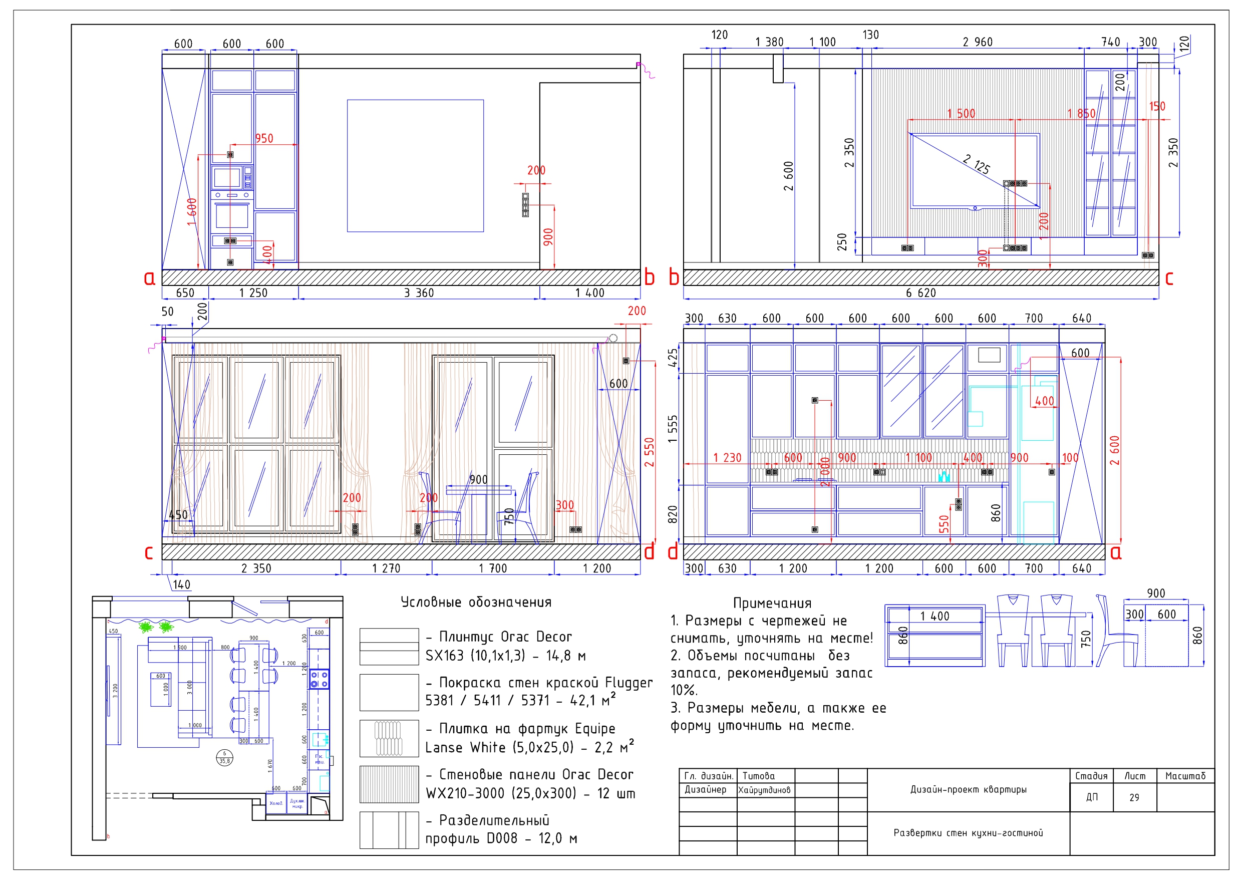
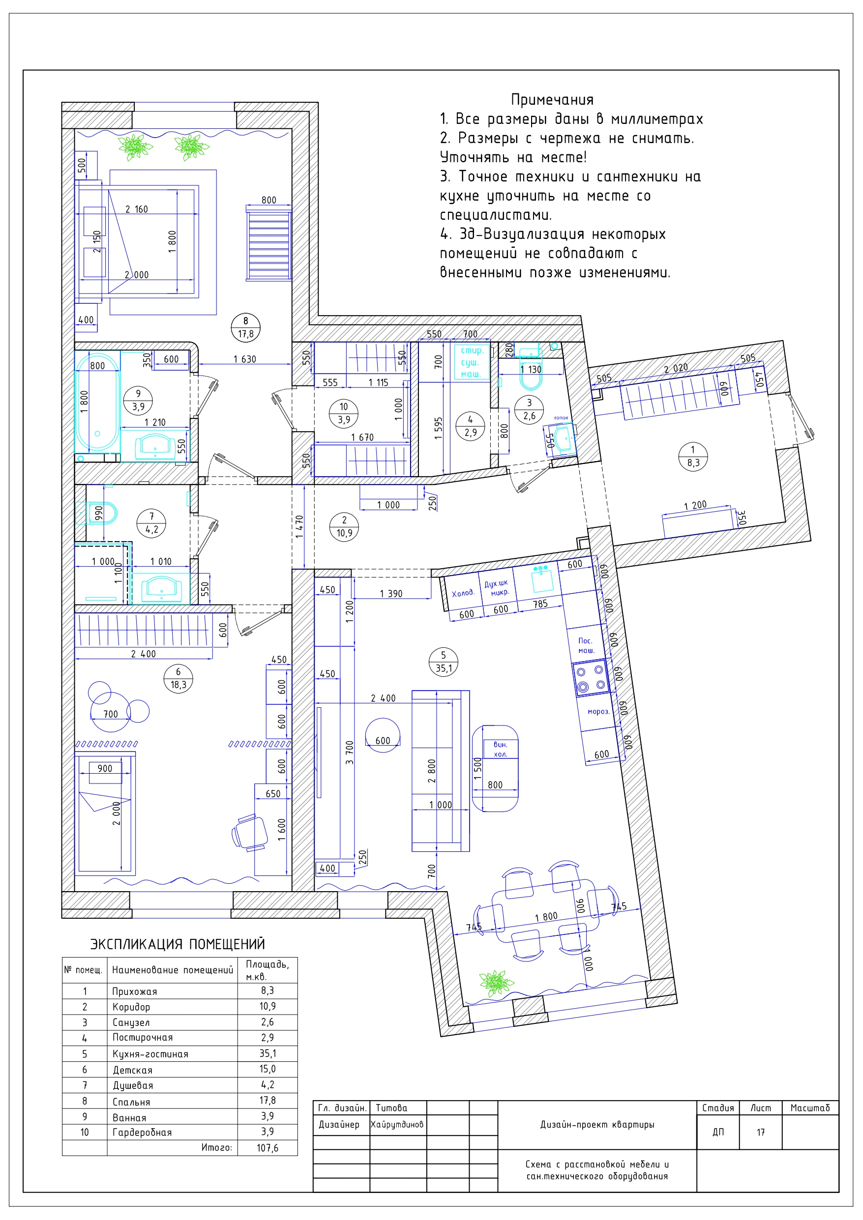
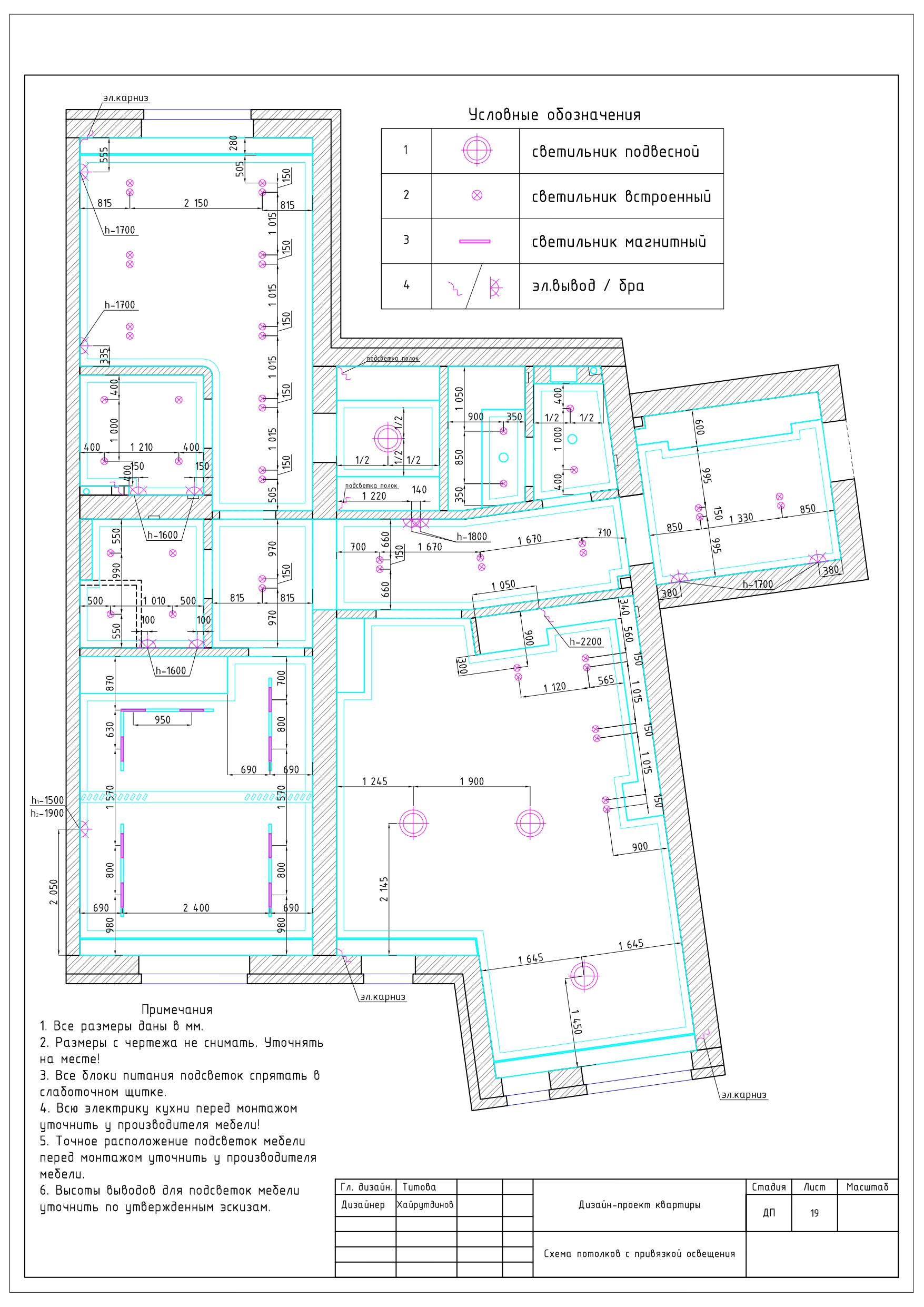
Рабочие чертежи к дизайн-проекту в AutoCad

Навыки:

Разрабатываю рабочие чертежи для дизайн-проектов в AutoCad на основе вашего ТЗ и визуализаций.

Опыт работы:

6

Тип занятости:

Удаленная работа

Образование:

высшее

Дополнительная информация:

Добрый день. Меня Зовут Наталия. Я- дизайнер интерьера. Оформлю чертежи по вашим требованиям. При больших площадях- сумма договорная