Зарплата

350 руб за кв.м

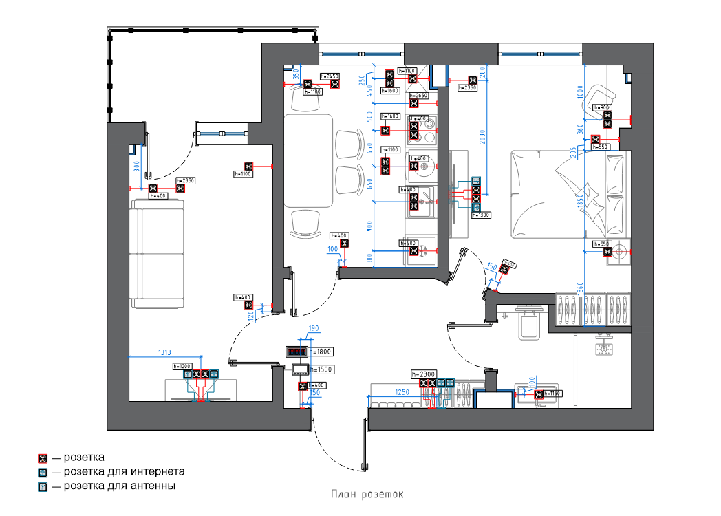
Рабочая документация для дизайн проекта, чертежи

Навыки:

Разработка планировочных решений, Подготовка чертежей для дизайн-проектов, AutoCAD, 3ds Max, CorelDRAW, Photoshop.

Опыт работы:

более 3 лет

Тип занятости:

Удаленная работа

Образование:

Архитектурно-строительное

Дополнительная информация:

Здравствуйте!

Я занимаюсь разработкой планировочных решений и чертежей для дизайн-проектов. Работа в AutoCAD. Выполнено более 80 проектов.

Для разработки планировочного решения потребуется обмерный план (если его нет — могу выполнить), а также фото- и видеофиксация объекта.

Для разработки полного альбома чертежей необходимы все исходные данные (обмерный план, фото-/видеофиксация объекта, утверждённое планировочное решение, итоговые визуализации и 3D-файлы)

Оплата производится в два этапа:
50% — в процессе разработки проекта,
50% — после выполнения полного альбома чертежей.

Стиль оформления проекта — по вашим шаблонам.

Стоимость:

• Планировочное решение — 100 руб./кв.м
(для помещений площадью более 100 кв.м предусмотрена скидка).

• Разработка альбома чертежей:
— до 30 кв.м — 10 000 руб. за проект;
— от 30 до 100 кв.м — 350 руб./кв.м;
— от 100 кв.м — 300–320 руб./кв.м.

Контакты:

@Ka_ddiN