Зарплата

300 руб за кв.м

Архитектор АИ

Навыки:

Revit / AutoCAD/ Homestyler

Опыт работы:

5+

Тип занятости:

Удаленная работа

Образование:

Высшее архитектурно-строительное

Дополнительная информация:

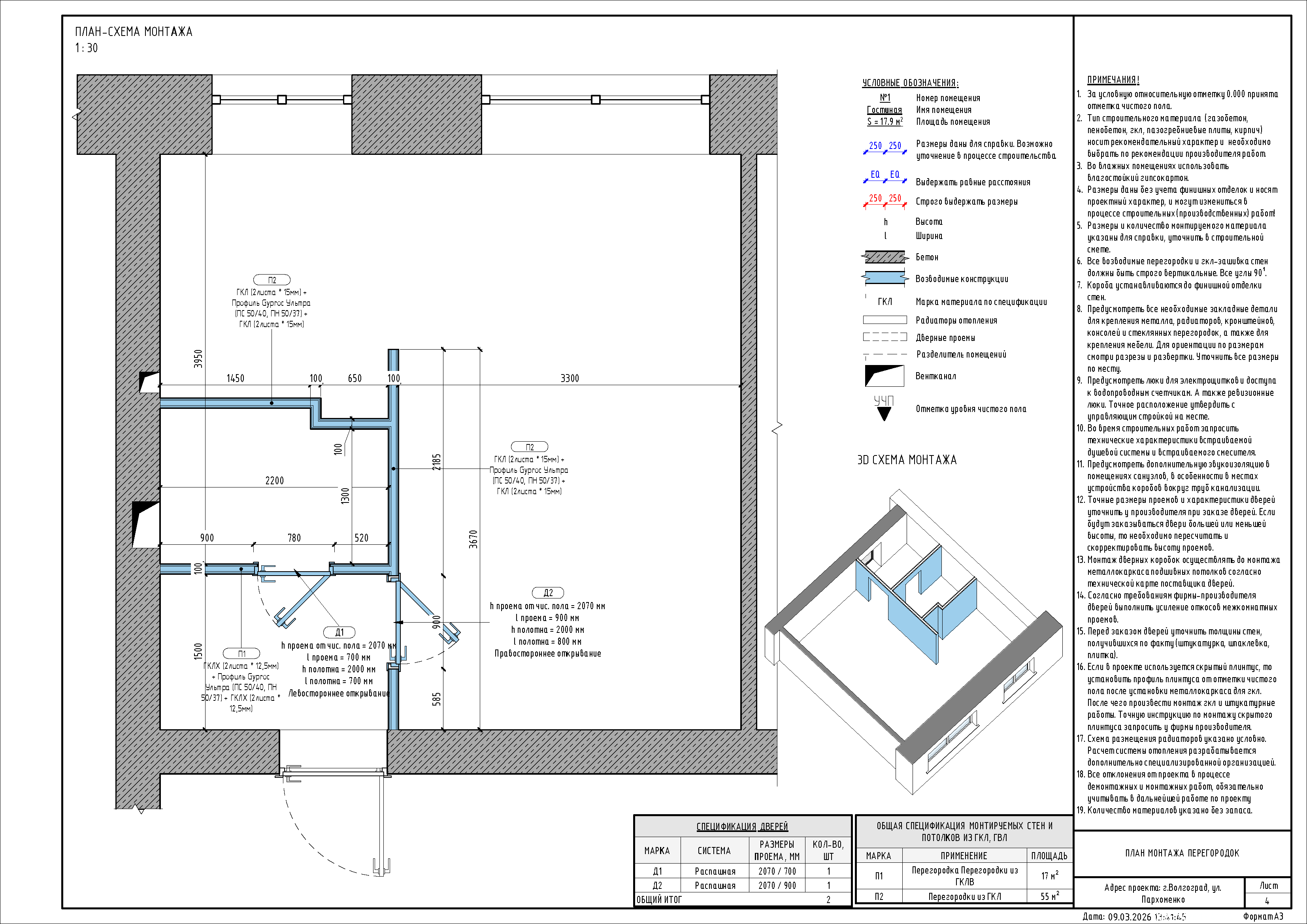
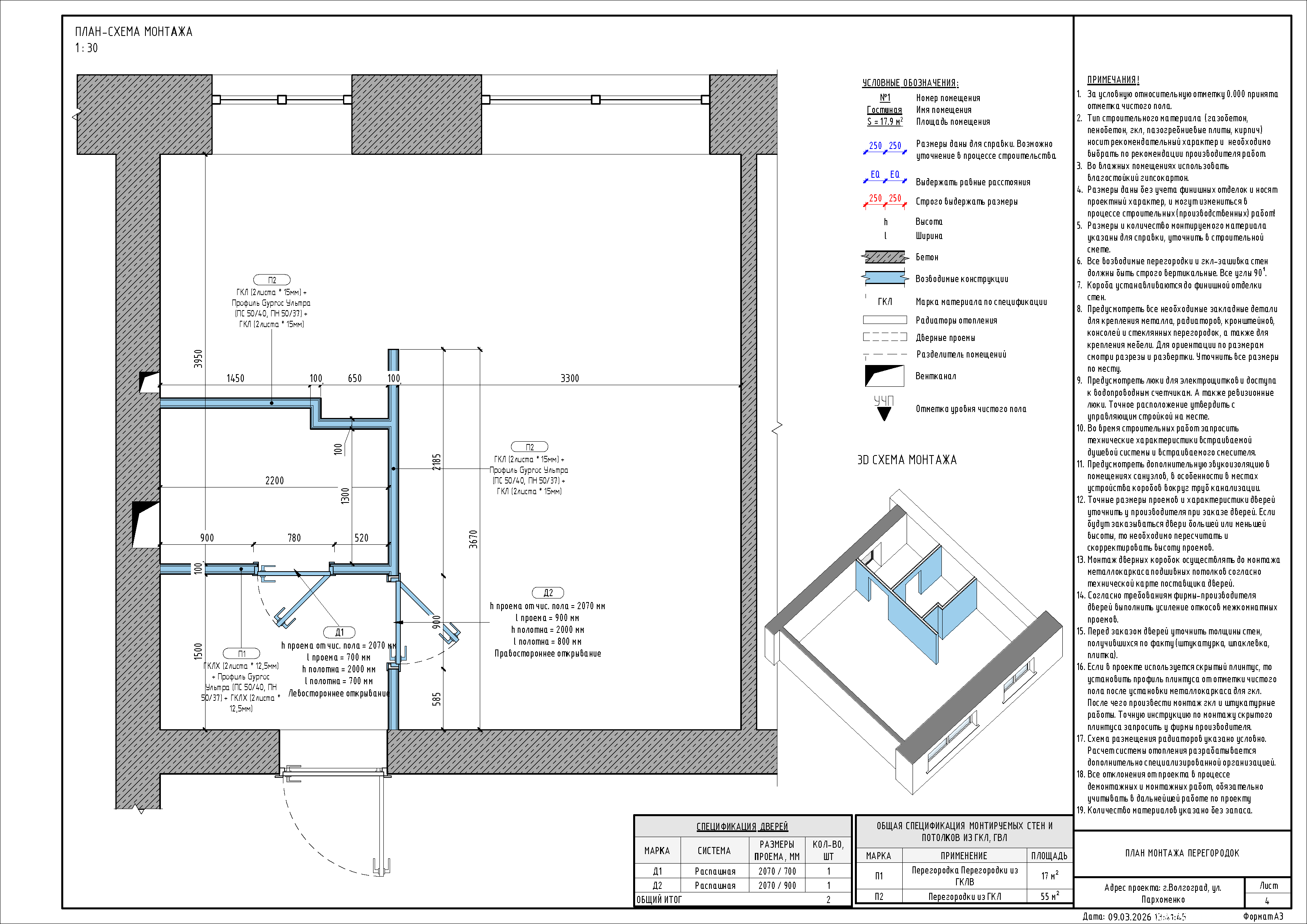
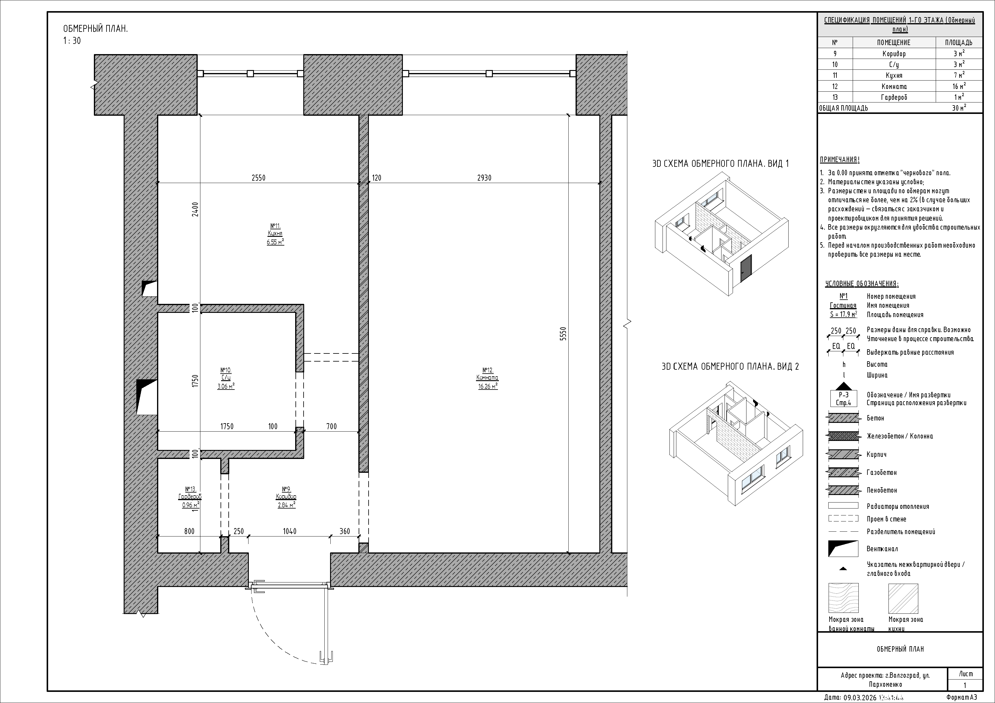
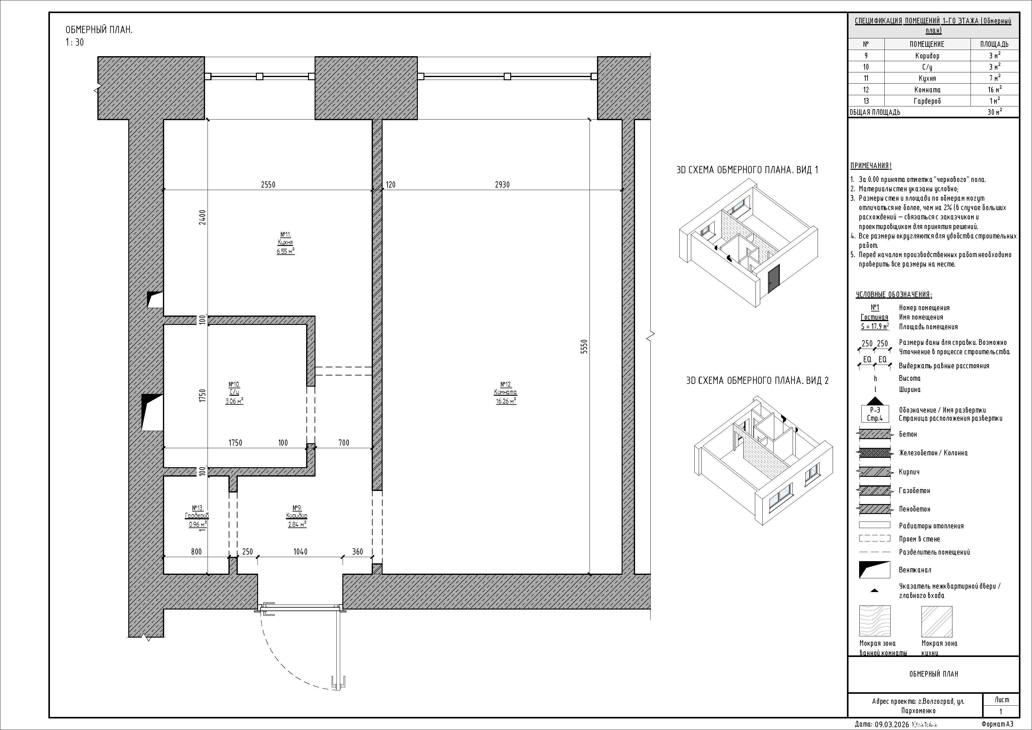
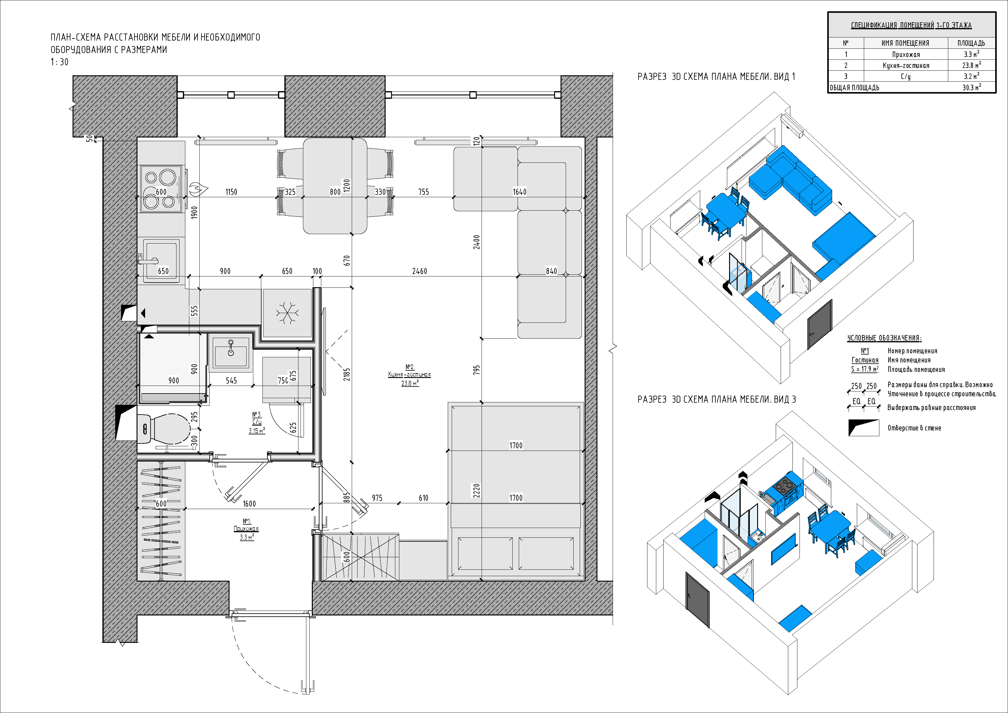
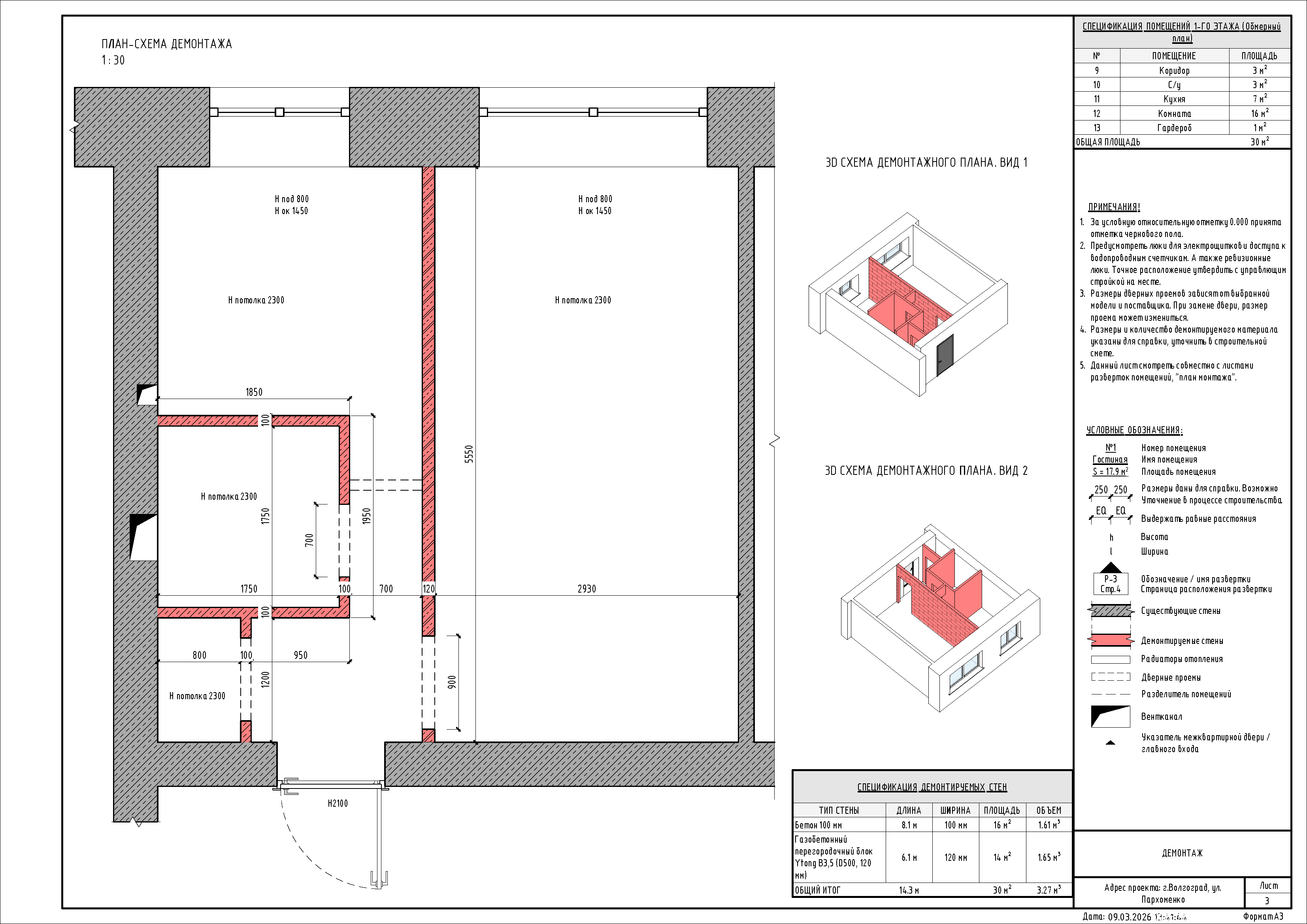
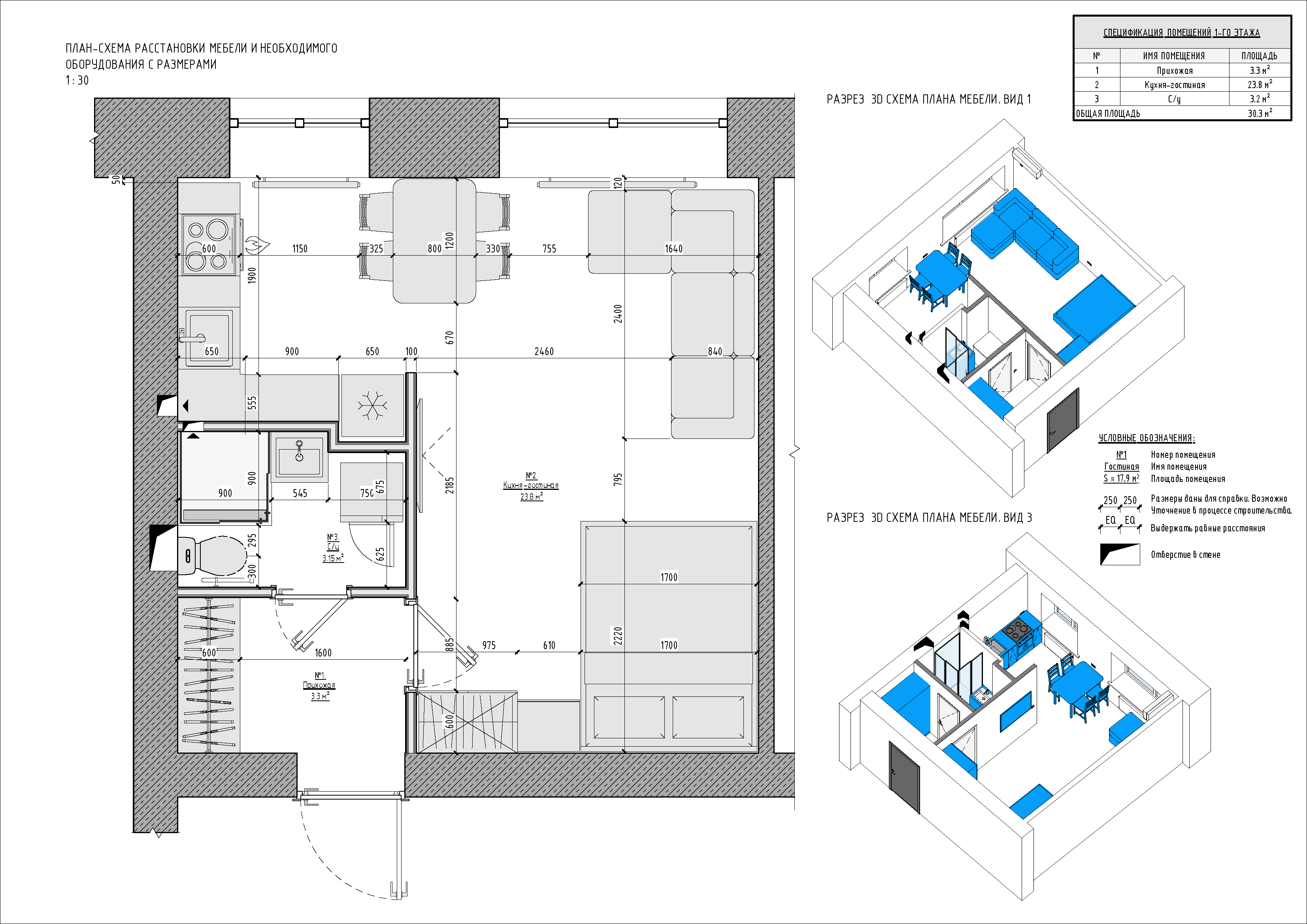
Разрабатываю рабочую документацию для дизайнеров и архитекторов в Revit /AutoCAD на основе визуализаций и ТЗ.

С новыми заказчиками работаю по предоплате

Стоимость полного комплекта чертежей за м² в Revit:
До 50 м² — 450 ₽/м²
От 51 м² до 300 м² — 400 ₽/м²
От 301 м² до 900 м² — 350 ₽/м²
Свыше 900 м² — 300 ₽/м²

Контакты:

+79889886011

@Arch_GVR