Зарплата

250 руб за кв.м

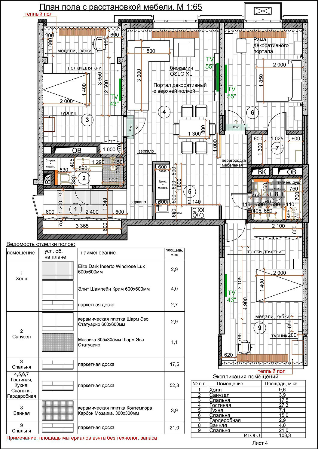
Чертежи

Навыки:

Делаю чертежи интерьерные: планы, развертки, спецификации + визуализация.

Опыт работы:

15

Тип занятости:

Удаленная работа

Образование:

высшее, архитектор

Дополнительная информация:

Работаю с интерьерными чертежами, делаю визуализацию.

Контакты:

naumow1v@yandex.ru