Зарплата

550 руб за кв.м

Чертежи/рабочая документация для дизайн-проектов в ArchiCAD (архитектурное образование, самозанятая)

Навыки:

ArchiCAD

Опыт работы:

9 лет

Тип занятости:

Удаленная работа

Образование:

ННГАСУ (высшее архитектурное образование, магистр)

Дополнительная информация:

Здравствуйте! Меня зовут Ольга, имею высшее архитектурное образование. Около 8 лет работала с АР, после 2016 г - с чертежами для дизайн-проектов.

Владею программами: ArchiCAD, 3ds max и Photoshop.

Имеется статус самозанятой.

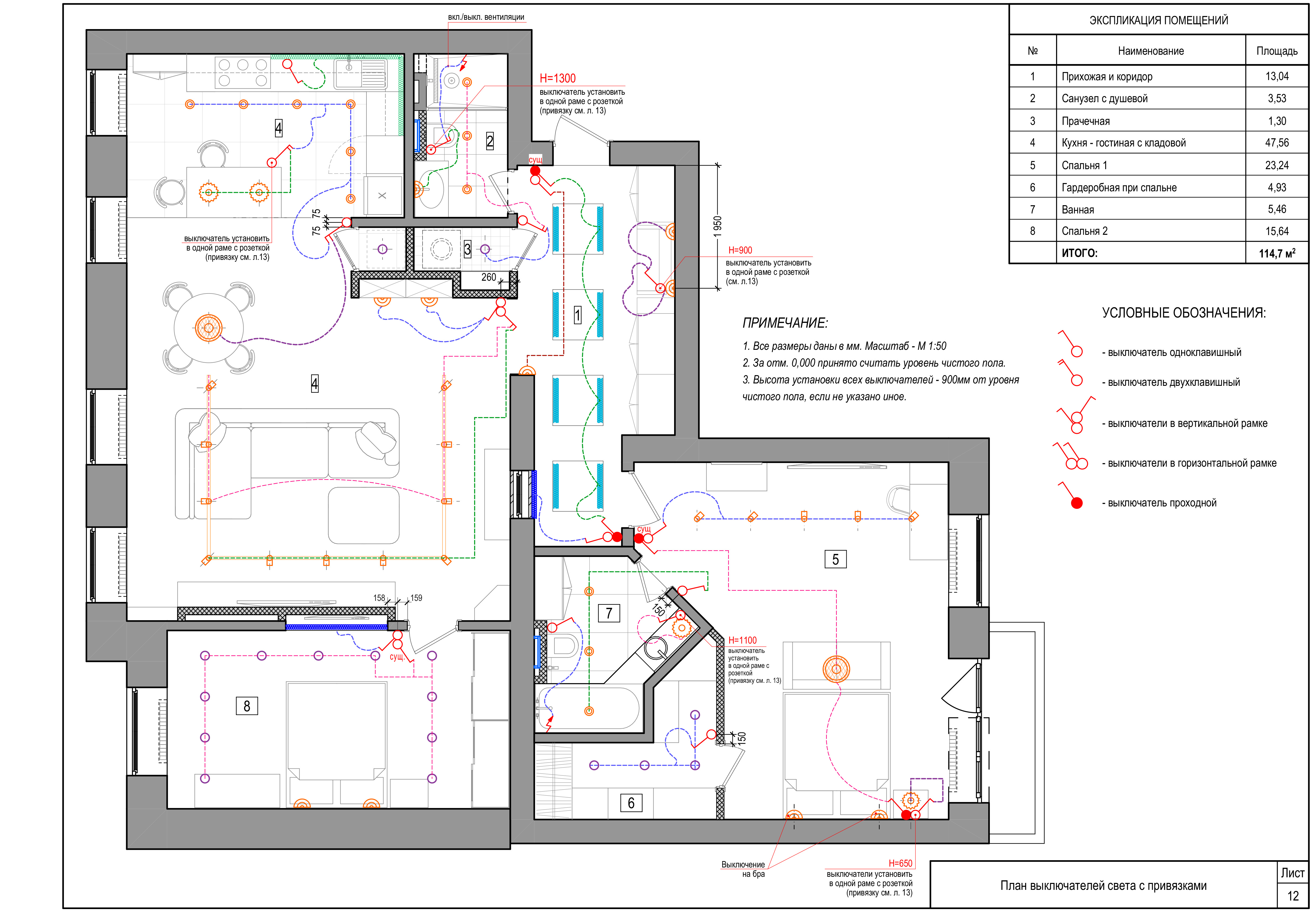
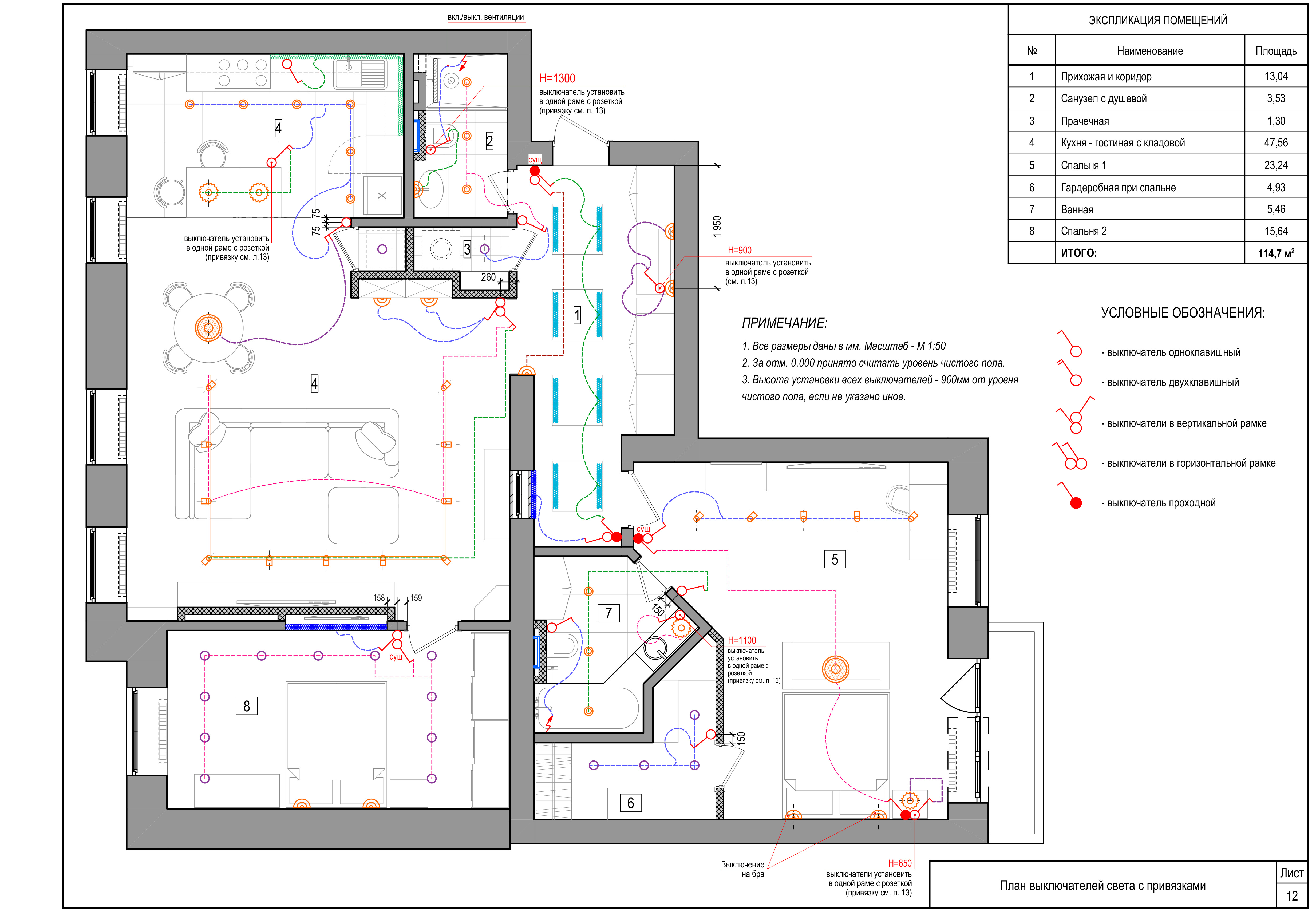
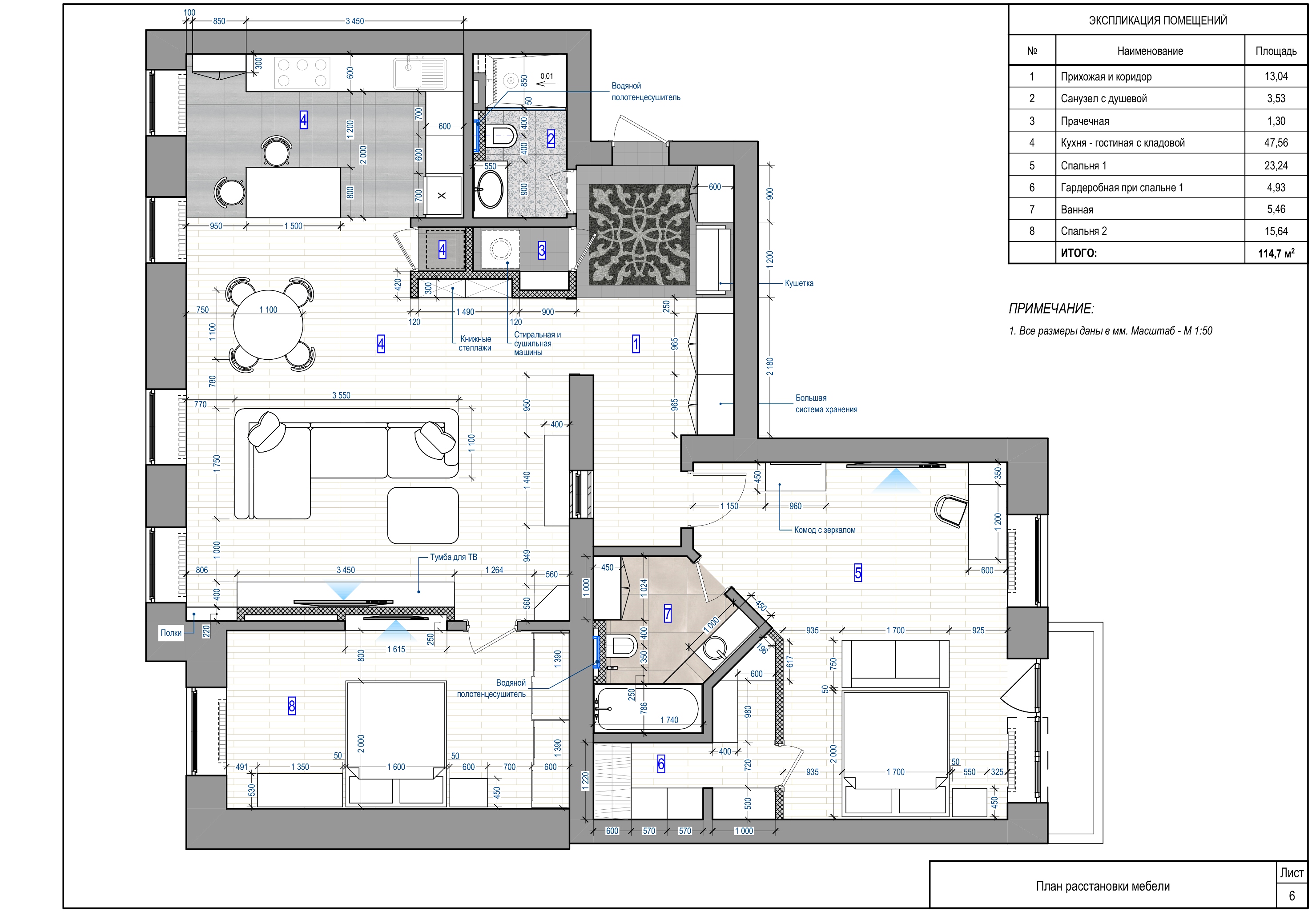
Примеры чертежей можно посмотреть ниже. Примеры полных комплектов АИ по ссылке: https://disk.yandex.ru/d/3jABRSikNwgJKw.

От Вас:
- ТЗ (обмерный план, расстановка мебели, ссылки на оборудование, визы);
- 50% предоплата + 50% по завершении комплекта и сдачи заказчику (после сдачи комплекта заказчику правки оплачиваются отдельно по договорённости - в адекватных размерах);
- за сложную классику - 650 р/кв. м.

От меня:
- работа в Вашем шаблоне (при необходимости);
- быстрота и аккуратность;
- внимание к деталям;
- возможность брать проект в параллель;
- цена на объекты с площадью более 200кв.м. обсуждается отдельно в пользу дизайнера.

Контакты:

N---O@yandex.ru

89535574432