Зарплата

300 руб за кв.м

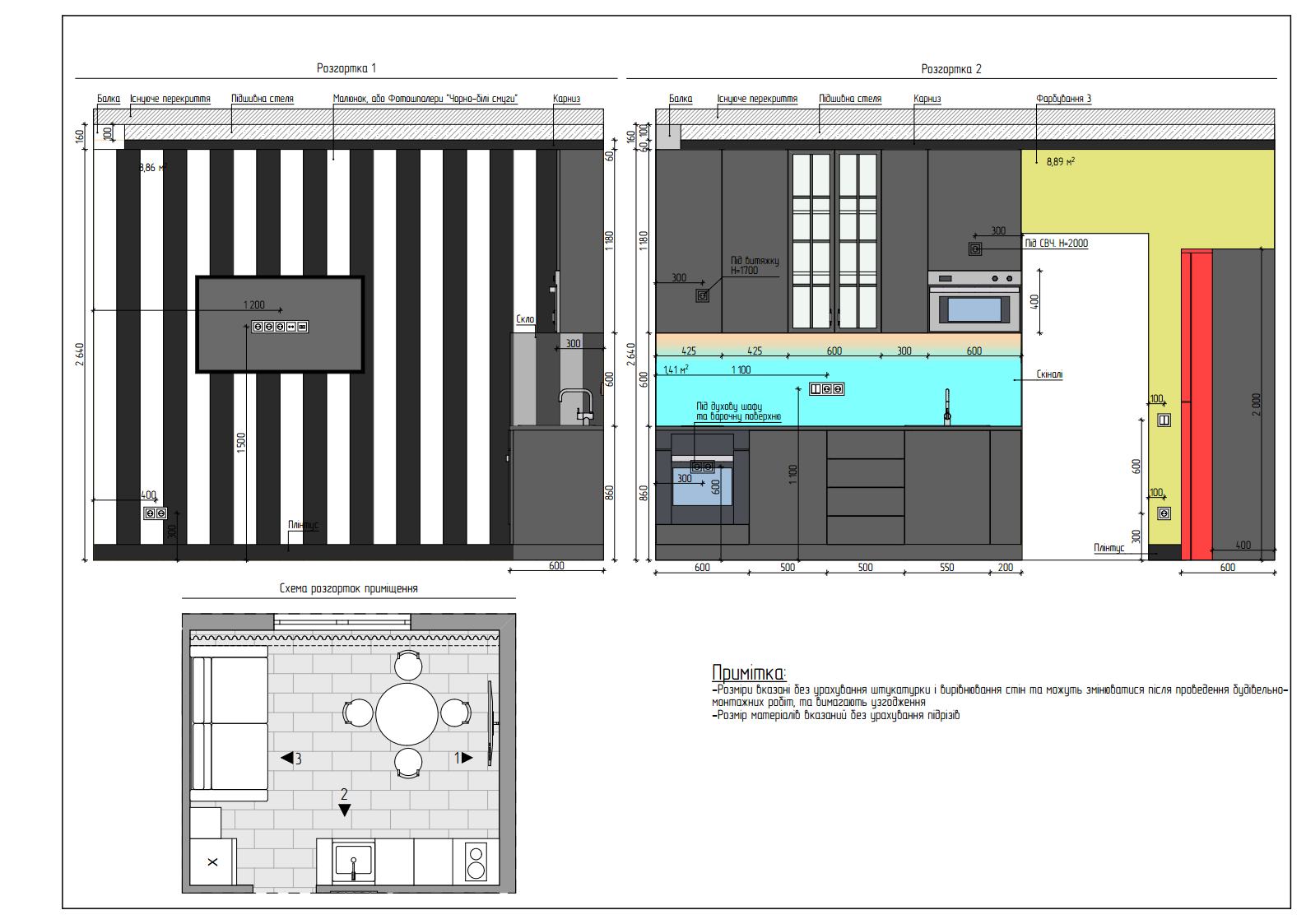
Выполнение рабочей документации дизайн проектов Архикад

Навыки:

AutoCAD, ARCHICAD, Photoshop

Опыт работы:

2 года

Тип занятости:

Удаленная работа

Образование:

Высшее строительное.

Дополнительная информация:

Выполнение рабочей документации дизайн проектов по вашему ТЗ.
Стиль оформление проекта по вашим требованиям
Работа выполняется в срок и качественно.

Ссылки:

Портфолио