Зарплата

700 руб за кв.м

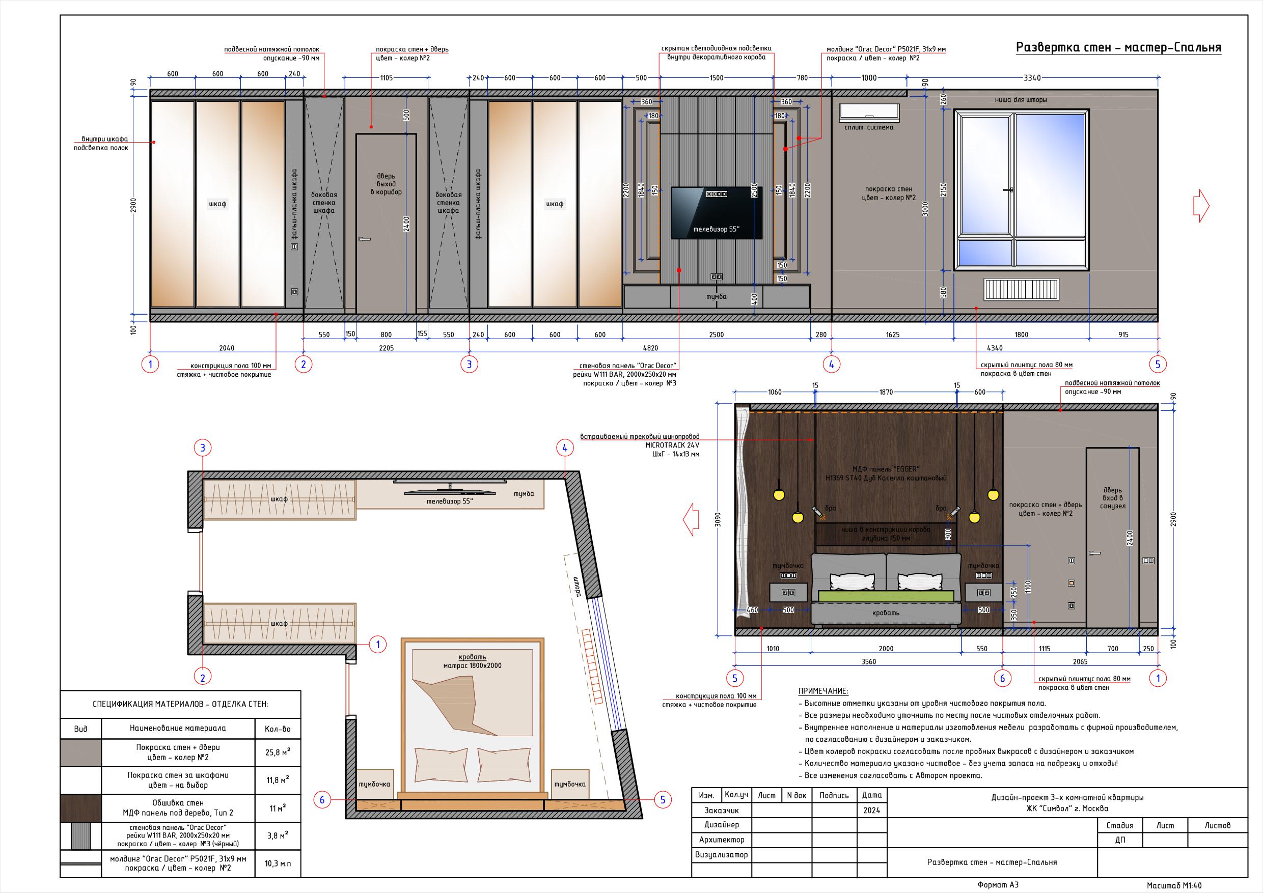
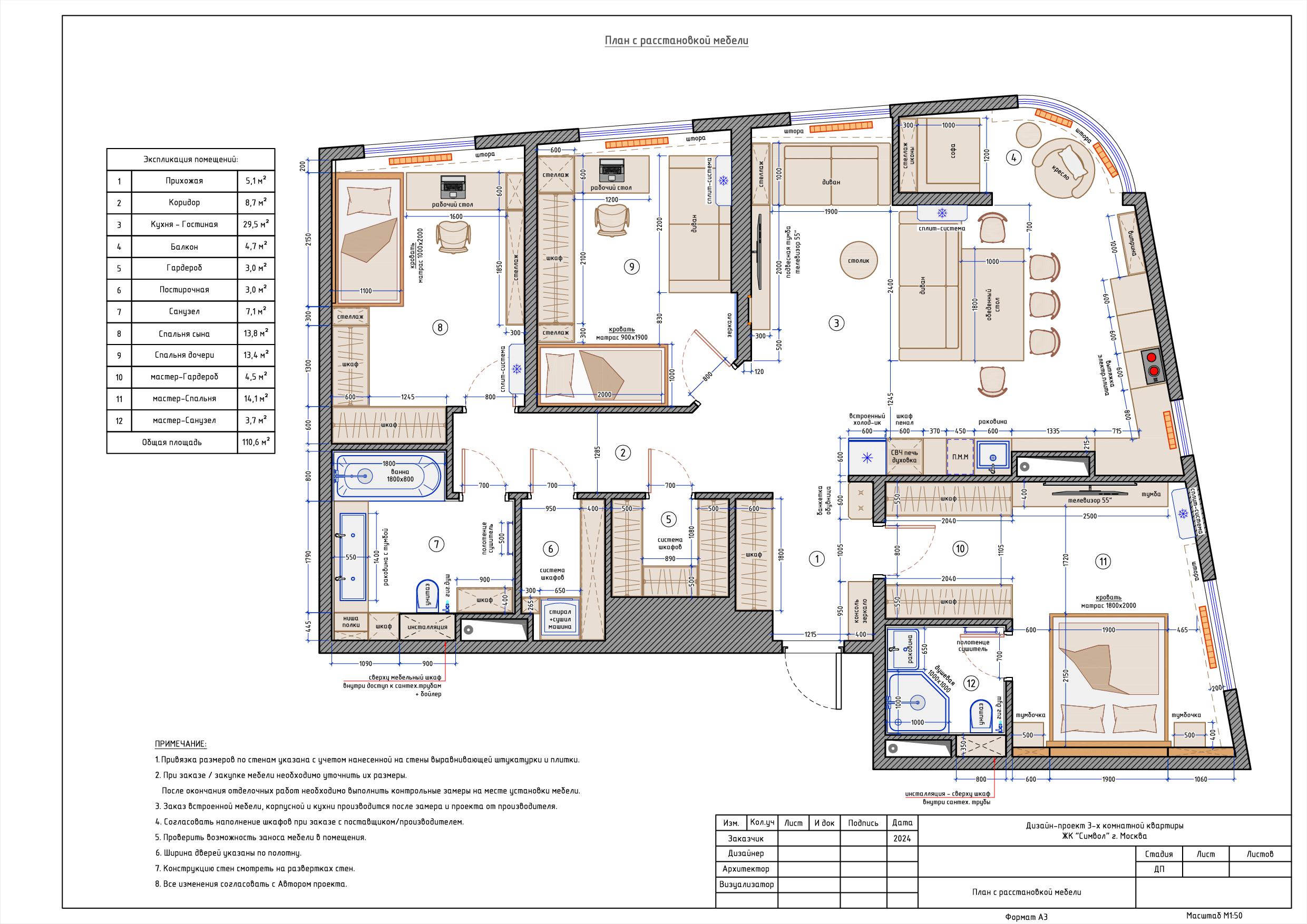
Рабочие проекты для дизайн-интерьера

Навыки:

AutoCAD и другие профильные программы.

Опыт работы:

15 лет

Тип занятости:

Удаленная работа

Образование:

Высшее образование. Архитектура и Дизайн интерьера.

Дополнительная информация:

Архитектор-Дизайнер

Занимаюсь профессиональной разработкой рабочих чертежей для дизайна-интерьеров

Делаю качественный продукт

Могу выполнить чертежи любой сложности и максимальной степени детализации

Знание на практике, как выполняются все виды строительно-монтажных и отделочных работ

Знание производства и монтажа мебели

Знание всех норм эргономики

Самостоятельность в процессе проектирования

Внимательность к деталям и техническим моментам

Ответственный подход к работе

Всегда на связи