Зарплата

300 руб

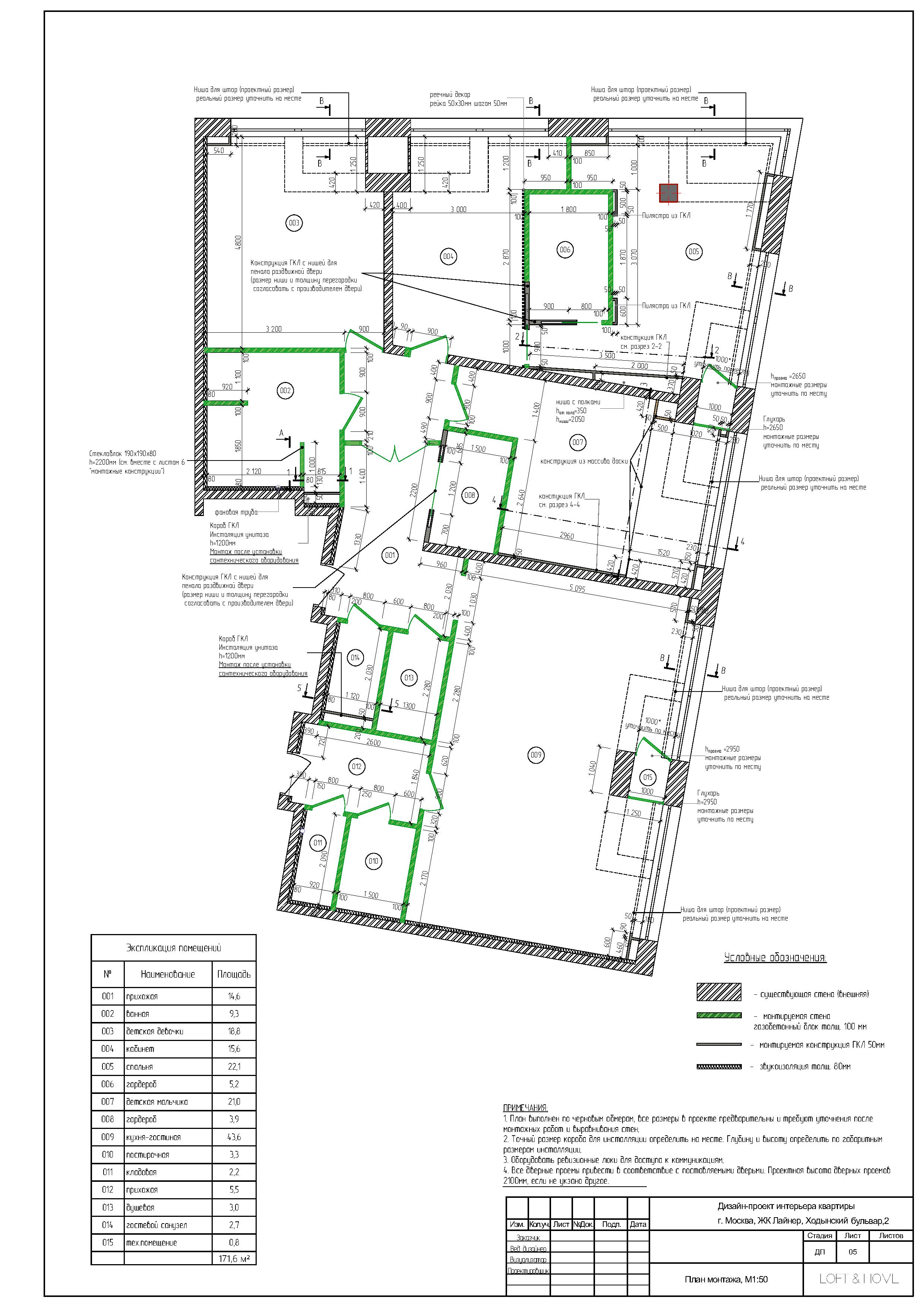
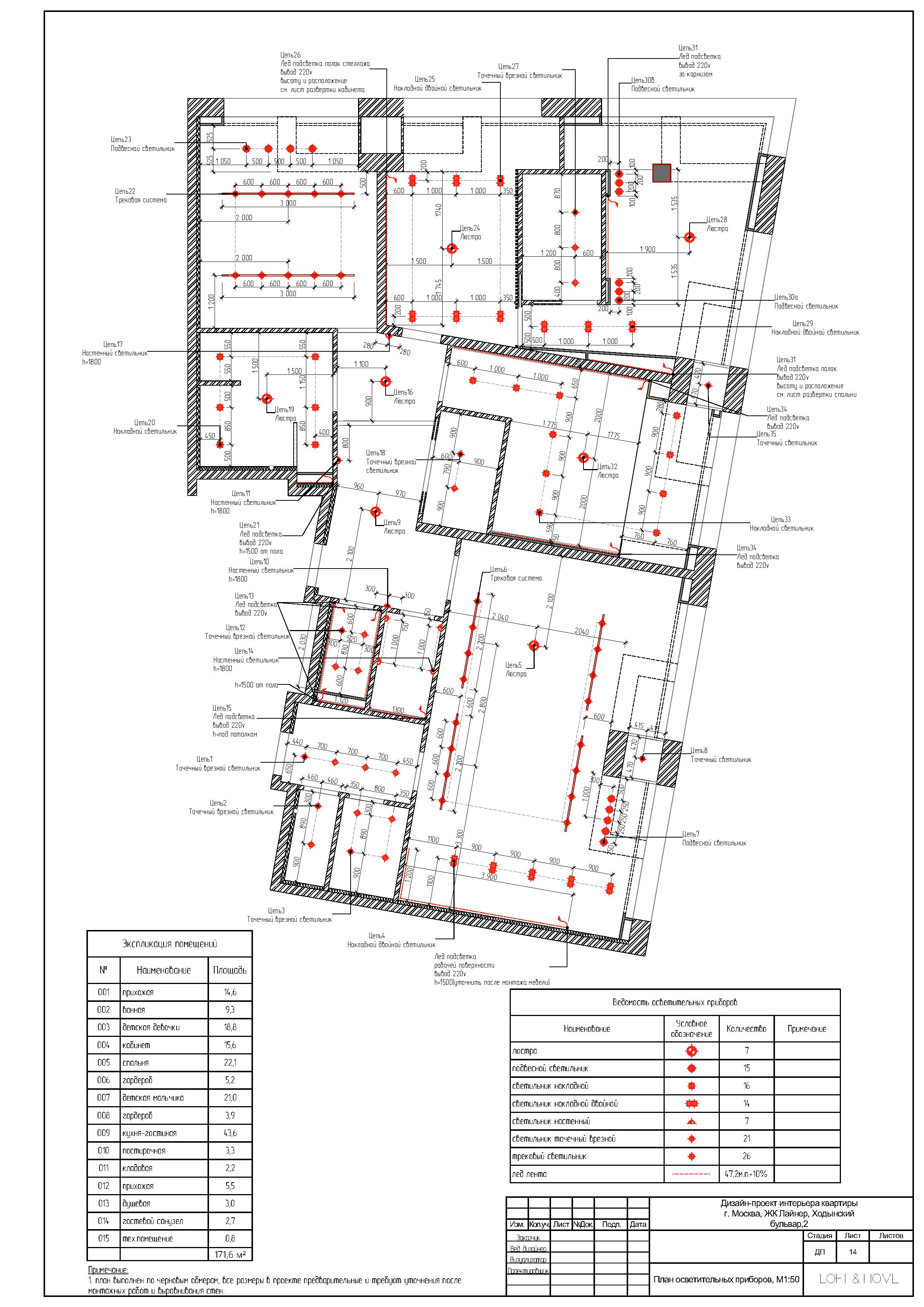
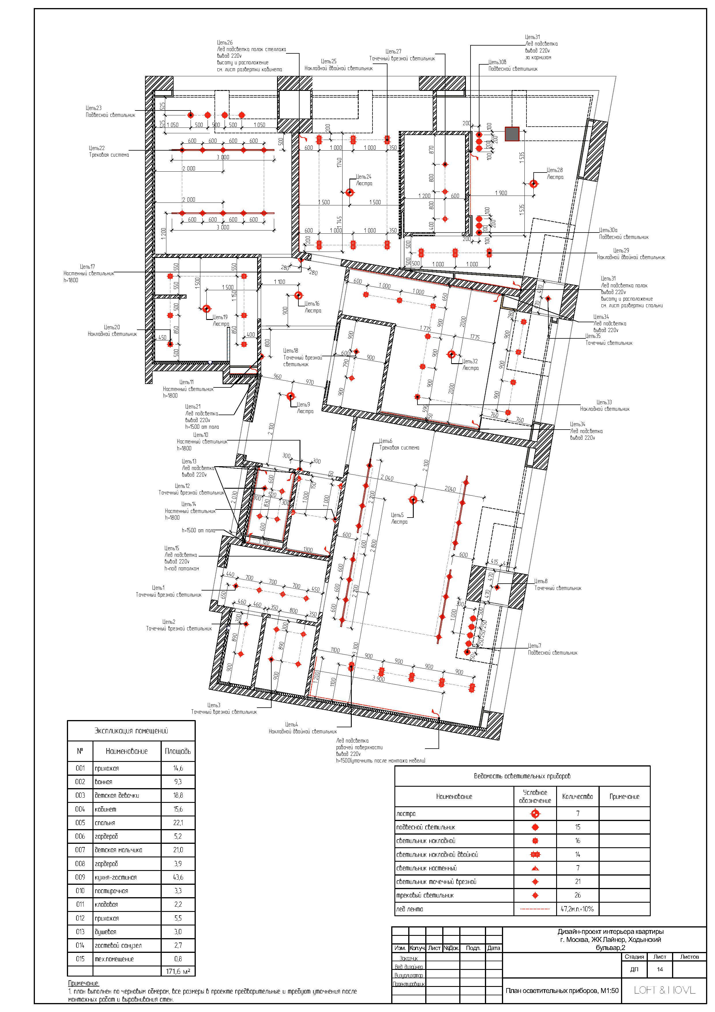
Рабочие чертежи, планировки.

Навыки:

Archicad уверенный пользователь, CorelDRAW, 3ds MAX-базовый

Опыт работы:

9

Тип занятости:

Удаленная работа

Образование:

КИСИ, архитектурный факультет

Дополнительная информация:

Предлагаю сотрудничество дизайнерам и архитекторам в разработке чертежной документации по дизайн-проектам (квартиры, коттеджи, офисы). Документацию выполняю в ArchiCAD. Работаю в слоях и с видами, составляю ведомости отделки и спецификации. Работу выполняю на основе Вашего ТЗ по визуализациям, наброскам и эскизам, модели 3ds Max. Оформление по ГОСТу или вашему шаблону.
Планировочные решения выполняю на основе ваших обмеров + ТЗ до полного согласования с заказчиком.

Заинтересована в долгосрочном сотрудничестве.
Отвечу на ваши вопросы в вайбер/телеграм/скайп.

Ссылки:

портфолио