Зарплата

400 руб за кв.м

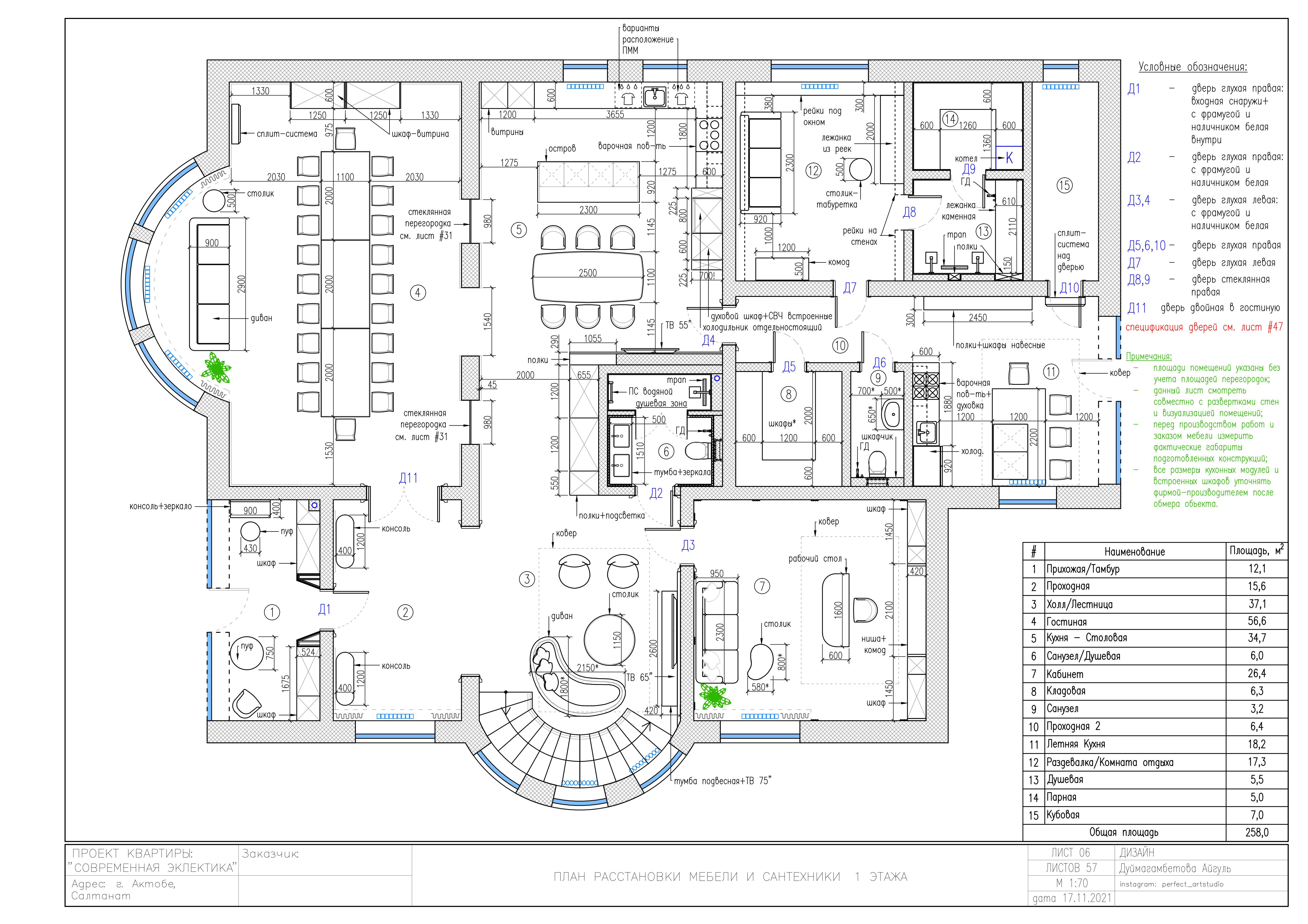
Рабочие чертежи проектов - AutoCAD. Дизайнер мебели.

Навыки:

Большой опыт в подготовке полного комплекта рабочей документации для дизайн-проектов помещений любого назначения, много лет занималась мебелью, начинающий визуализатор 3dsmax. В портфолио в разделе PDF мои работы.

Опыт работы:

8 лет

Тип занятости:

Удаленная работа

Образование:

Архитектура

Дополнительная информация:

Люблю свою работу! Каждый проект продумываю до мелочей, стараюсь удовлетворить запросы заказчика и соблюсти высокое качество исполнения своей работы. Оформлю альбом чертежей по Вашим или моим шаблонам.

Есть опыт работы удаленно.