Зарплата

650 руб за кв.м

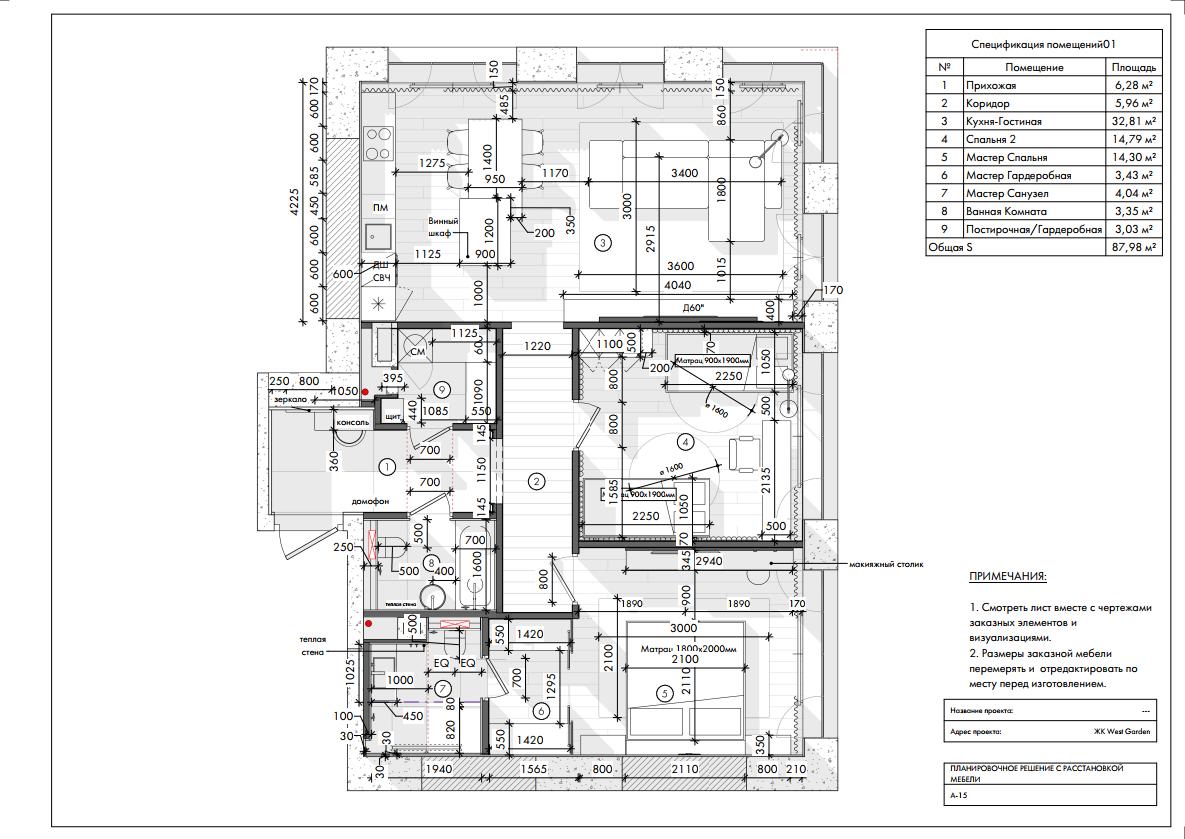
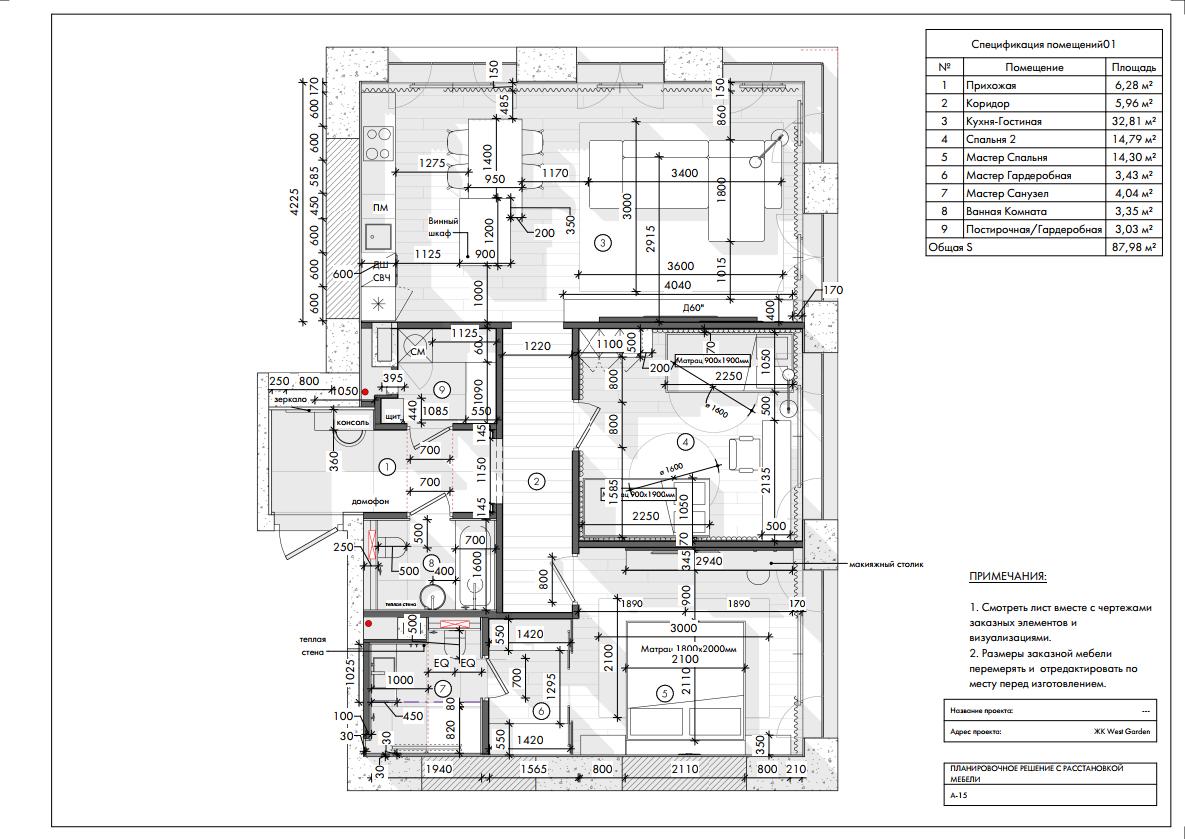
Рабочая документация для ДП, Чертежи.

Навыки:

Revit,3D max, Corona, AutoCad, Photoshop

Опыт работы:

13 лет

Тип занятости:

Удаленная работа

Образование:

Высшее, МГЭИ Дизайн (профиль: дизайн среды)

Дополнительная информация:

Добрый день! Меня зовут Виктория!

Предлагаю услуги по Разработке полного комплекта чертежей для ваших дизайн-проектов.

Разрабатываю чертежи предельно подробно, чтобы к дизайнеру было минимум вопросов от строителей и подрядчиков.

Имею большой опыт в полном цикле разработки дизайна, от обмера до сдачи готового объекта заказчику. Чертежи выполняю с этими знаниями.
Есть понимание примыканий материалов, разработка сложных узлов, понимание специфики взаимодействия со строительной бригадой.


Соблюдение оговоренных сроков.

Чертежи выполняю в Revit, также владею данными программами: 3D max + Corona, AutoCad, Photoshop


Стоимость:

- Стандартный состав с развертками и спецификациями - 650 р./кв.м.

- Стандартный состав с развертками и спецификациями + расчётные схемы корпусной мебели (кух.гарнитур, шкафы, тумбы) - 750 р./кв.м.

- Стандартный состав с развертками и спецификациями, расчётные схемы корпусной мебели (кух.гарнитур, шкафы, тумбы) + подбор материалов и оборудования по визуализациям (отделка, свет, мебель, сантехника) - 950 р./кв.м.

Предлагаю услуги по созданию планировок - сумма обсуждается индивидуально.


Предоплата 40%
Доплата после утверждения электрики 40%
Доплата по завершению разработки всего ДП 20%



Пишите, дополнительно отправлю ссылку на портфолио чертежей.
Буду рада сотрудничать!