Зарплата

740 руб за кв.м

Архитектор-чертежник

Навыки:

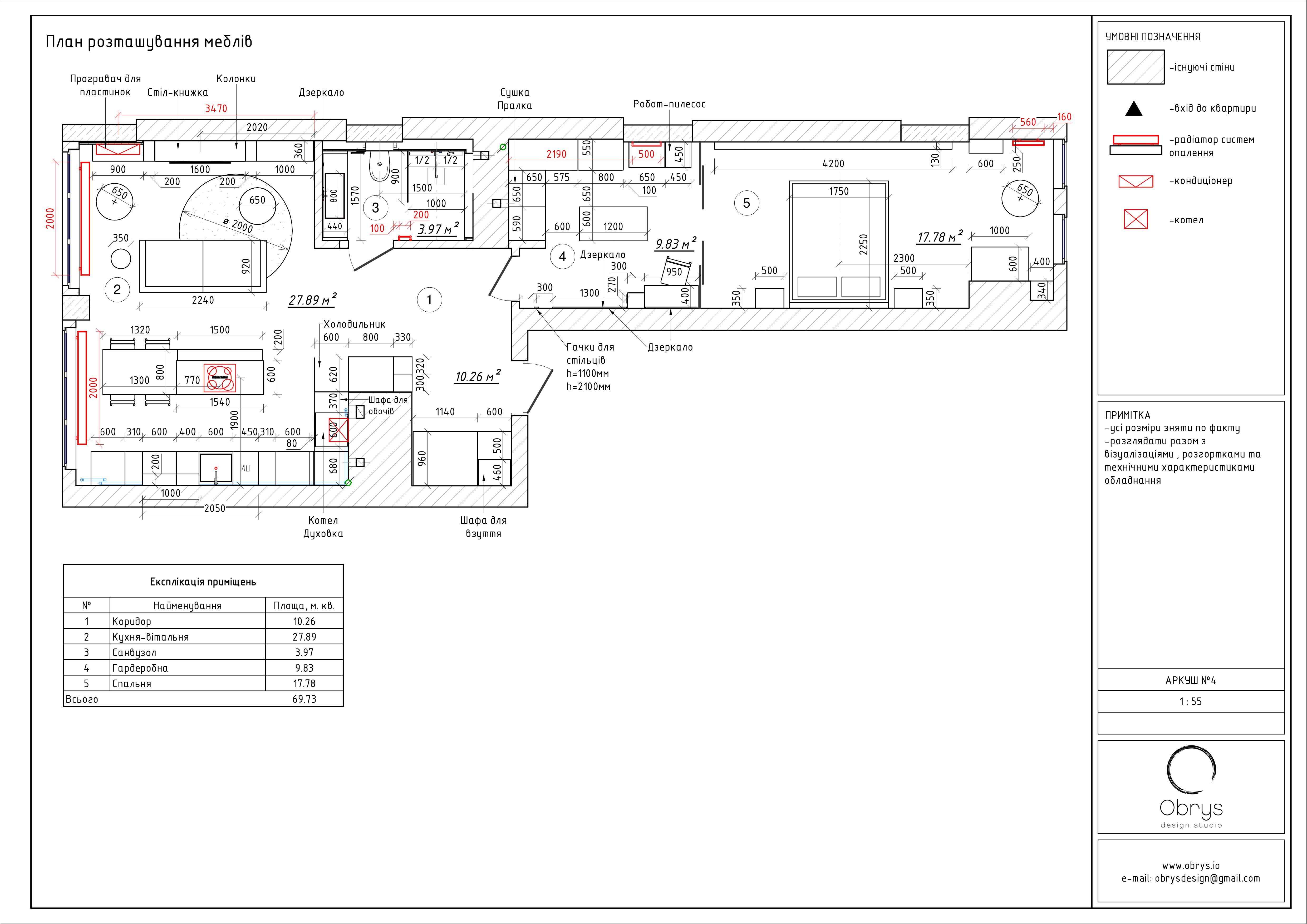
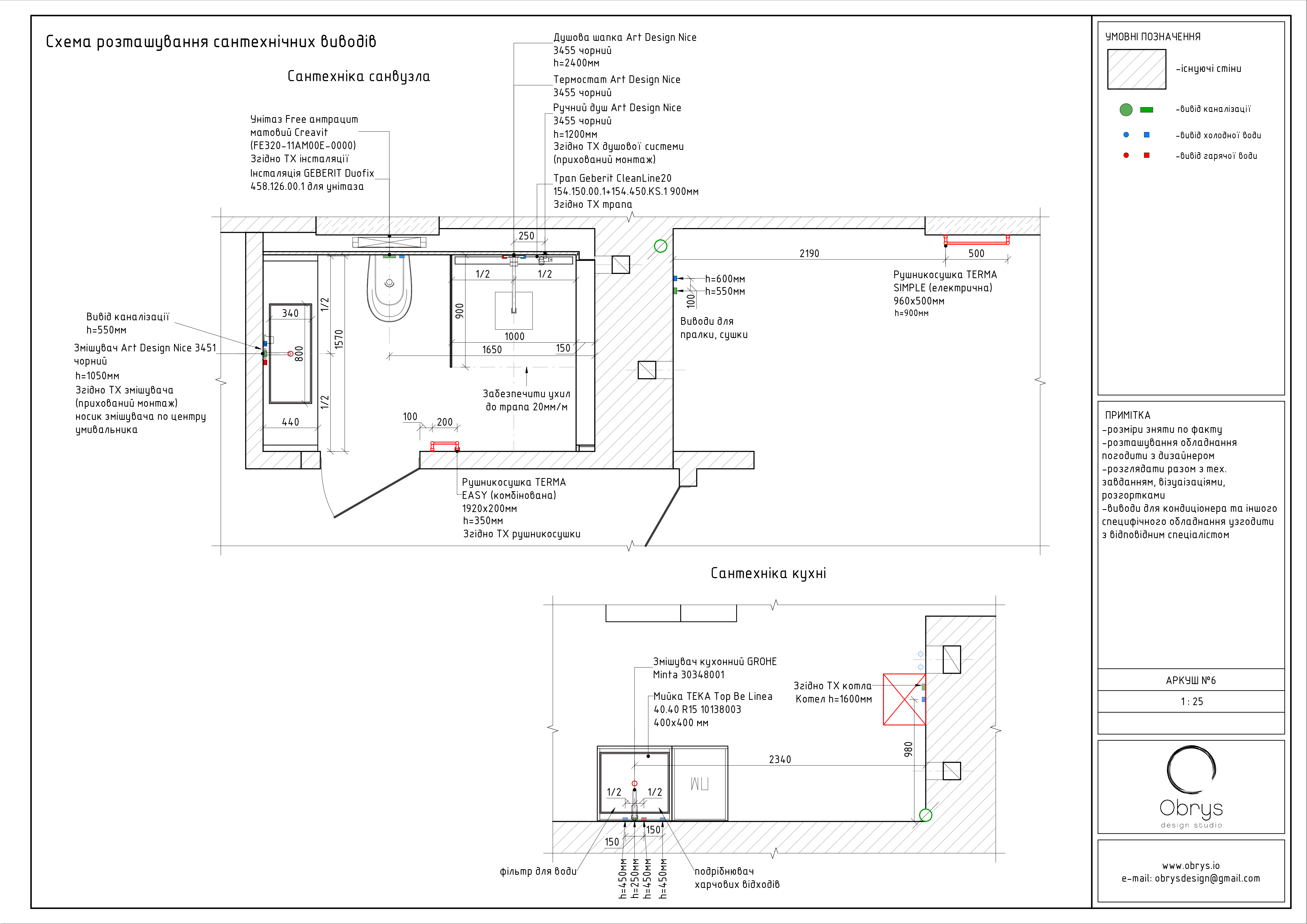
Разработка рабочей документации для дизайн проектов с развертками, чертежами мебели под заказ. Проекты перепланировок квартир, домов.

Опыт работы:

5 года

Тип занятости:

Удаленная работа

Образование:

Высшее "Архитектурное проектирование"

Дополнительная информация:

- продвинутое владение Autodesk Revit;
- базовое владение Autodesk 3dsMax, SketchUp;
- знание языков: украинский, русский - свободно, английский - Pre-Intermediate

Ссылки:

behance

3ddd