Зарплата

400 руб за кв.м

Архитектор-дизайнер

Навыки:

AutoCAD, 3ds Max

Опыт работы:

15

Тип занятости:

Удаленная работа

Образование:

Высшее архитектурное

Дополнительная информация:

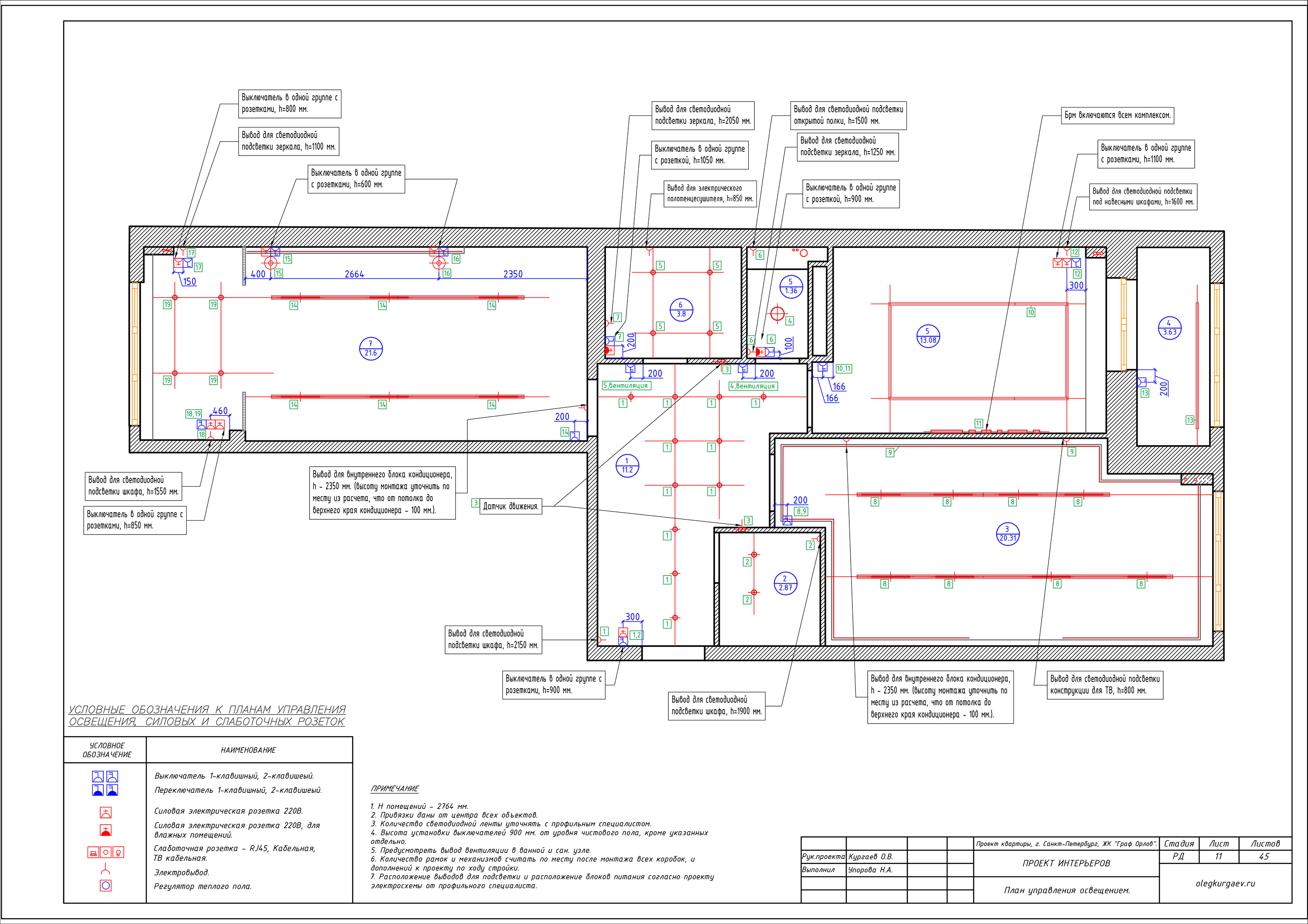
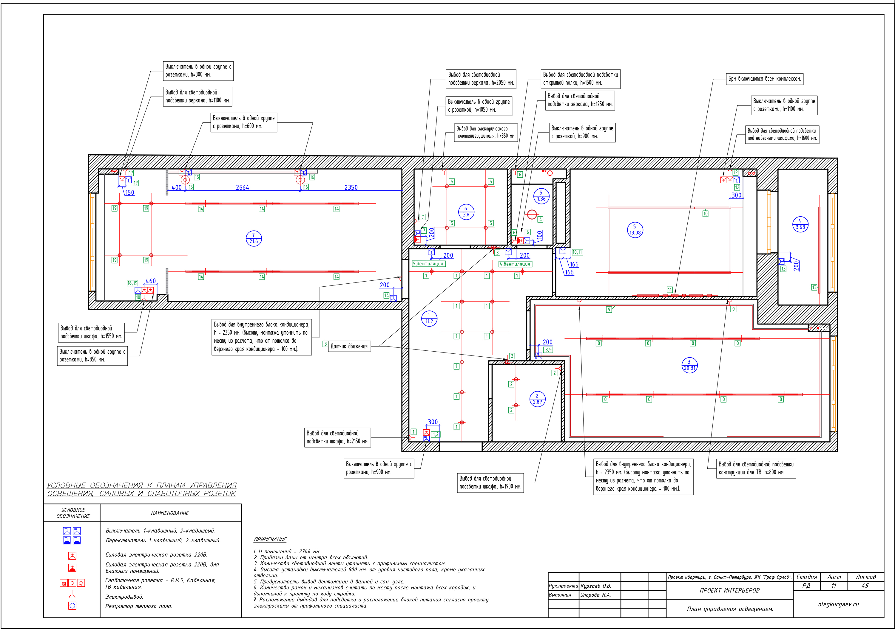
Выполню чертежную документацию в AutoCAD.
Разработка планировочных решений, концепций интерьеров, полный комплект чертежей дизайн-проекта.
Качественные, подробные рабочие чертежи со всеми спецификациями, деталями и узлами.
Оформление по Вашему или моему шаблону. Стоимость от 400 р. м. кв., в зависимости от комплекта чертежей, сложности и объема проекта. Работу выполняю на основе визуализации, набросков и эскизов.
Примеры работ вышлю на почту.