Зарплата

220 руб за кв.м

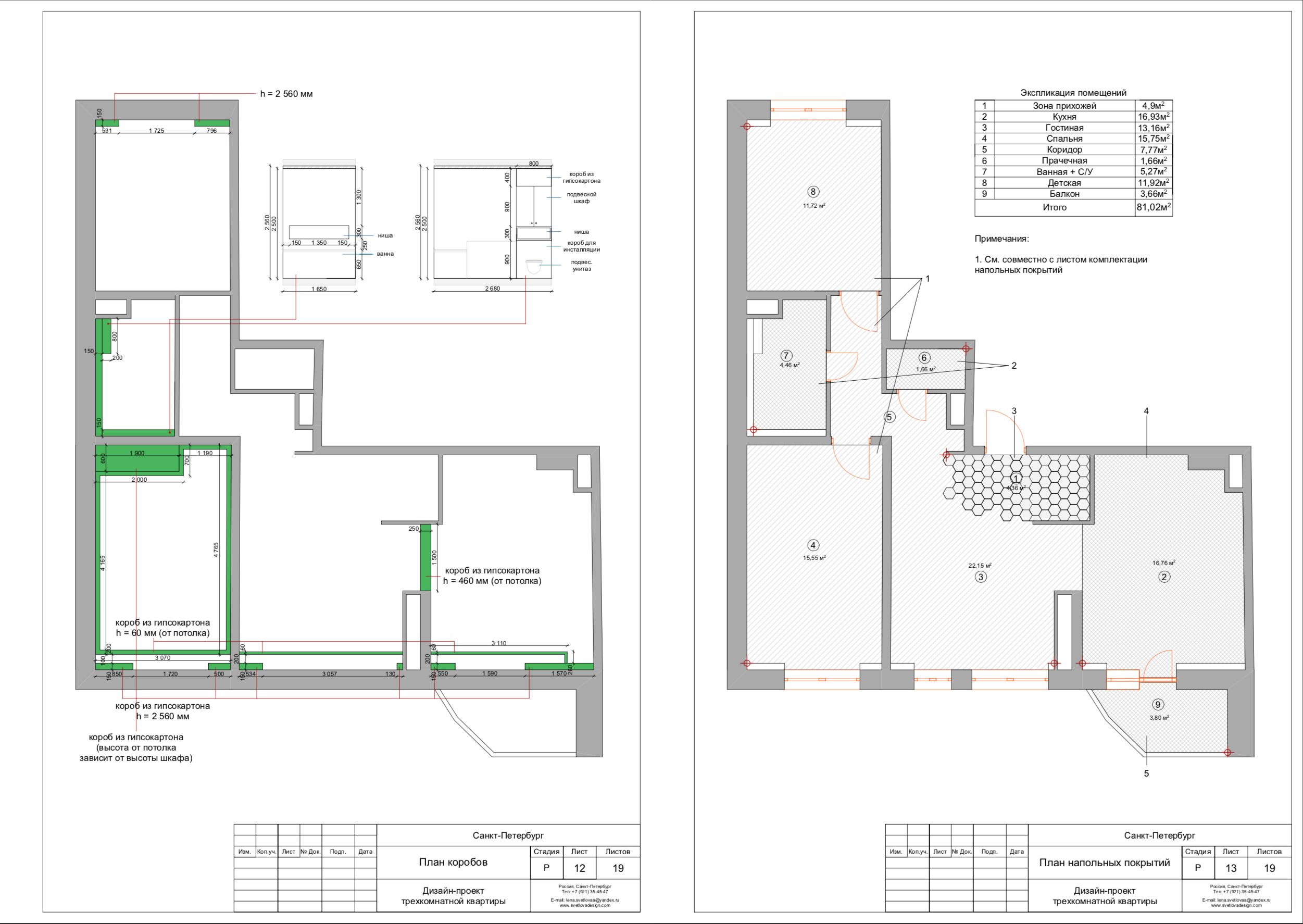
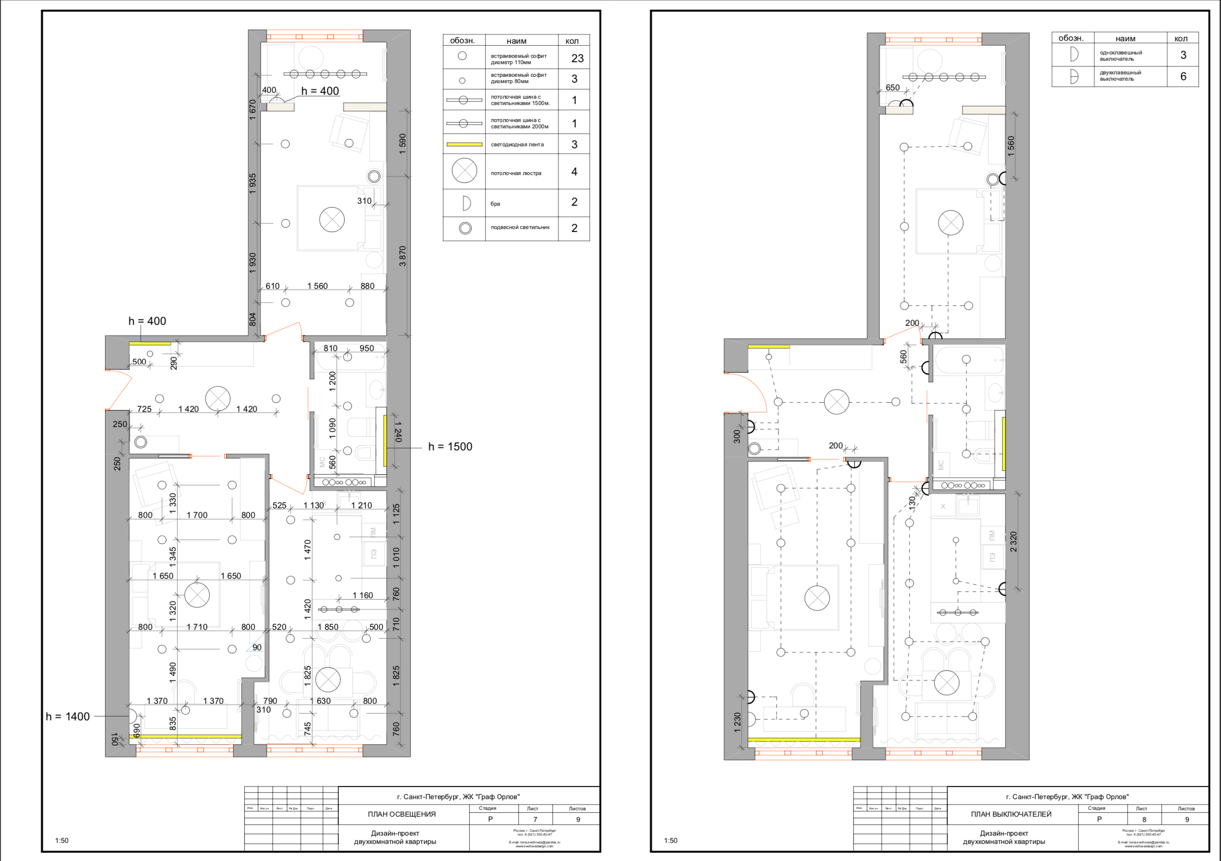
Чертежи, рабочая документация

Навыки:

Создание рабочей документации в Archicad: - Обмерный план - Ведомости напольных/настенных покрытий, дверных проемов - Планы коробов, отопления, возводимых конструкций - Планы электрики, розеток, освещения - План расстановки мебели - Фасады - План ограбления банка в Далласе - План отопления, теплых полов

Опыт работы:

1 год

Тип занятости:

Удаленная работа

Образование:

Чертежник

Дополнительная информация:

Ответственный подход, в запой не ухожу, всегда на связи. Делаю красиво и чётко!
Предоплата: пачка зернового кофе и табак Bali Shag или договоримся.
Связь:
telegram - n_devourer
instagram - niklymiss
Голубиная почта

Контакты:

n_devourer

+ 79626972916