Зарплата

300 руб за кв.м

Рабочая документация, чертежи.

Навыки:

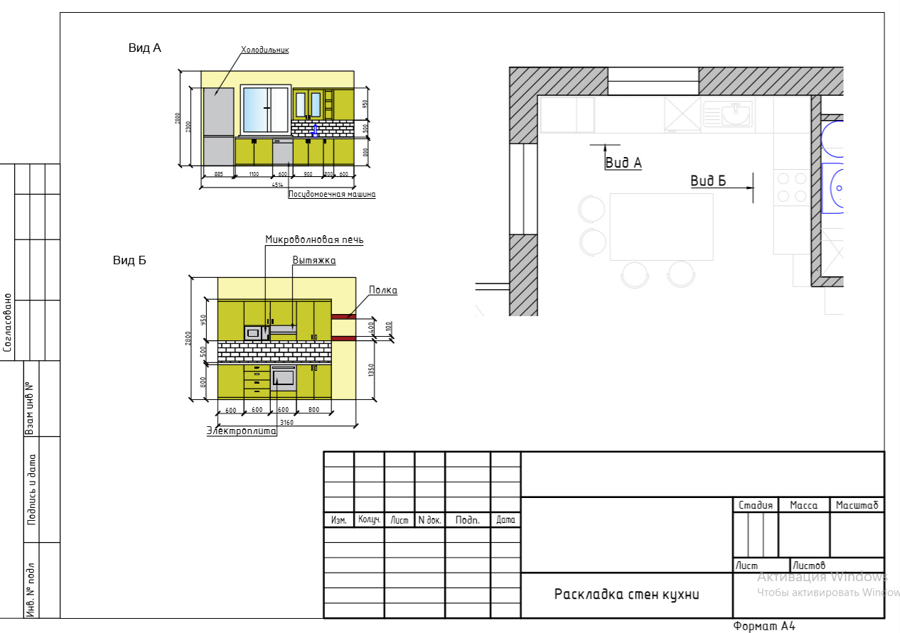
В комплект чертежей входит 1. Обмерочный план до перепланировки. 2. План демонтажа и монтажа стен. 3. Обмерочный план после перепланировки. 4. План расстановки мебели, с площадями. 5. План расстановки дверей. 6. План полового покрытия. 7. План конфигурации потолков, с размерами. 8. План расстановки осветительных приборов потолка, с размерами. 9. План расстановки электророзеток, с размерами. 10. План расстановки электровыключателей, с размерами. 11. План распределения включения освещения. 12. План теплых полов. 13. Развертки. Плюс, если нужны еще какие либо чертежи, обсуждается отдельно.

Опыт работы:

5

Тип занятости:

Удаленная работа

Образование:

Высшее, Архитектура.

Дополнительная информация:

Свою работу выполняю качественно, в срок, без задержек.

Контакты:

+7(916) 157-72-90