Зарплата

250 руб за кв.м

Дизайн интерьера

Навыки:

Archicad уверенный пользователь, CorelDRAW.

Опыт работы:

2 года

Тип занятости:

Удаленная работа

Образование:

Курсы МГТУ им Баумана

Дополнительная информация:

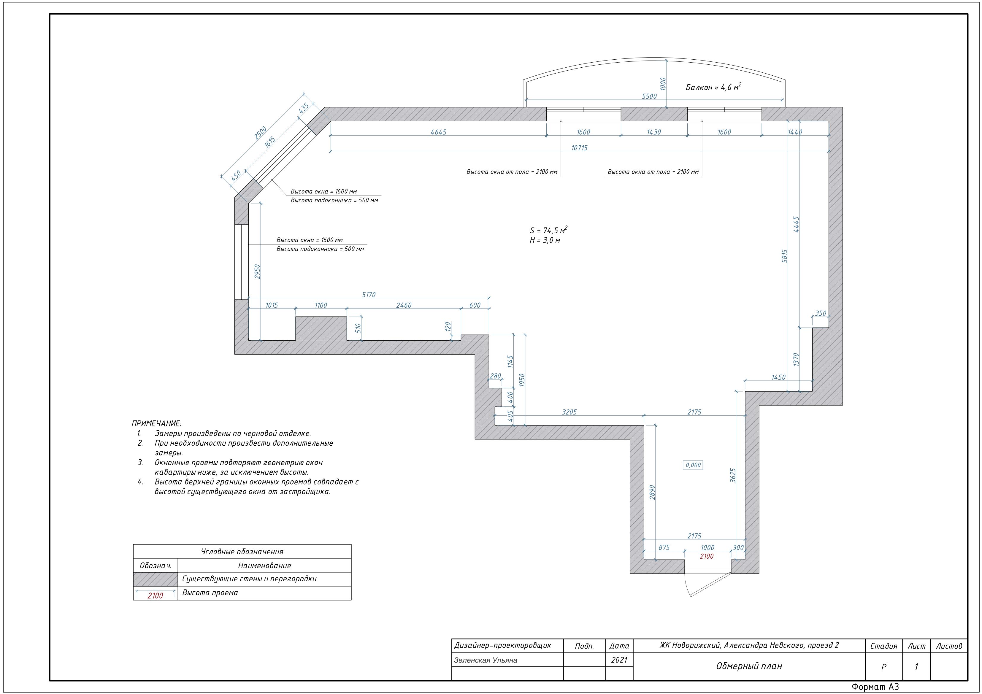
Предлагаю сотрудничество дизайнерам и архитекторам в разработке чертежной документации по дизайн-проектам (квартиры, офисы). Документацию выполняю в ArchiCAD. Работаю в слоях. Составляю ведомости отделки и спецификации. Работу выполняю на основе Вашего Тех.задания. Оформление по ГОСТу или вашему шаблону.
Планировочные решения выполняю на основе ваших обмеров + Тех.задания до полного согласования с заказчиком. Корректировки чертежей бесплатно.

Заинтересована в долгосрочном сотрудничестве.
Отвечу на ваши вопросы в WhatsApp или по телефону.

Контакты:

ulianaruszel2003@gmail.com