Зарплата

400 руб за кв.м

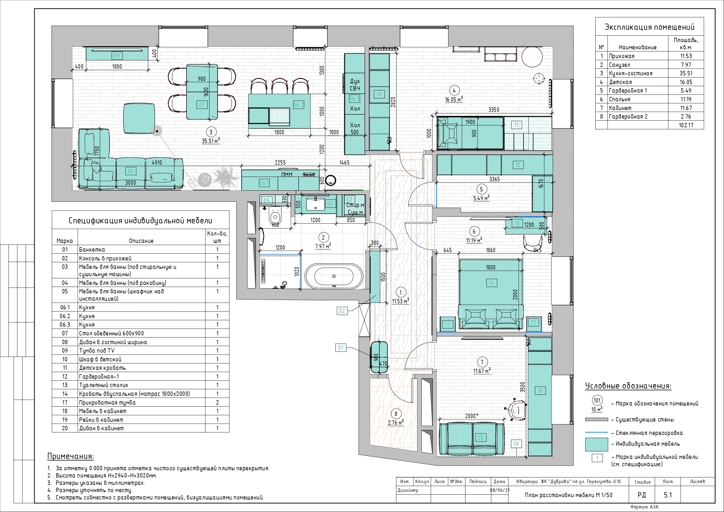
Рабочие чертежи для дизайнеров интерьера в REVIT

Навыки:

Revit, Autocad, 3ds Max, Photoshop

Опыт работы:

10 лет

Тип занятости:

Удаленная работа

Образование:

КГАСУ, магистр архитектуры

Дополнительная информация:

Разрабатываю в REVIT проектную документацию для жилых и общественных интерьеров на основе 3D визуализаций / коллажей, планировочного решения.

Имею опыт работы дизайнером, разбираюсь в стройке, электрике, грамотно запроектирую техническую часть ваших идей.

Помимо стандартных рабочих чертежей вы получаете спецификации: чистовых отделочных материалов, электрофурнитуры, освещения, мебели и сантехники. Разрабатываю технические задания для мебельного производства. Могу настроить чертежи под ваш визуальный стиль.

-Стандартный набор чертежей без разверток - 400 р/кв.м.
-Чертежи+развертки - 450 р/кв.м.
- чертежи+развертки+ТЗ для мебельного производства. - 500 р/кв.м.

Портфолио
https://yadi.sk/d/HjRoWxCIvobfiw

Ссылки:

Портфолио