Инженер - выполнение рабочей документации (чертежи для дизайнеров интерьера)

Навыки:

AutoCad 3DsMax

Опыт работы:

с 2013

Тип занятости:

Удаленная работа

Образование:

Харьковский национальный университет строительства и архитектуры
Промышленное и гражданское строительство Специалист

Дополнительная информация:

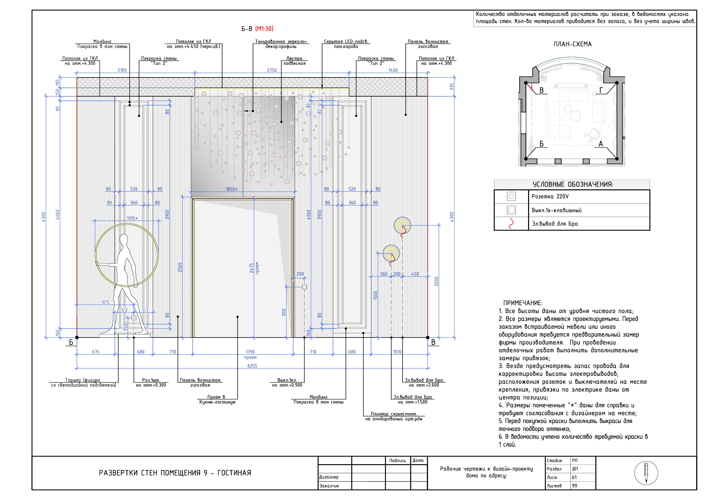
Опыт работы в БТИ а так же большой опыт выполнения рабочей документации позволяют глубоко погружаться в проект. Есть собственная форма ТЗ (техническая анкета проекта), которая облегчает дизайнеру составление задания. Пример полного комплекта - по запросу. Я гибко подхожу к вопросам правок, а так же если надо предоставляю исходники.
Работаю без предоплат.

Ссылки:

VK

Instagram