Зарплата

450 руб за кв.м

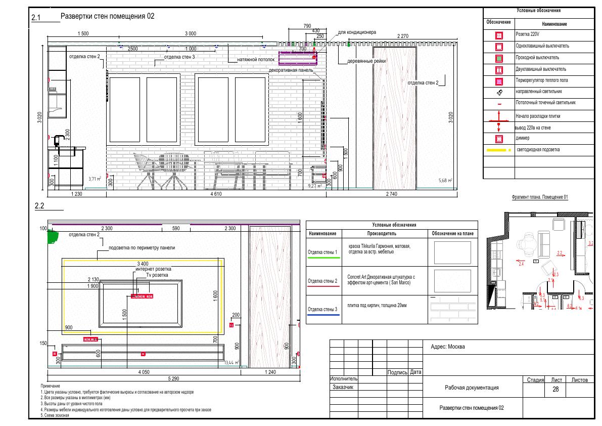
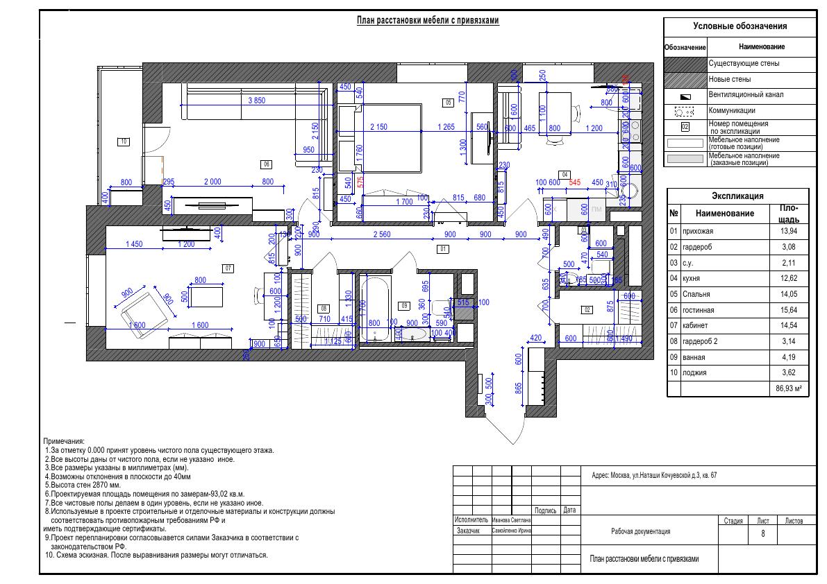
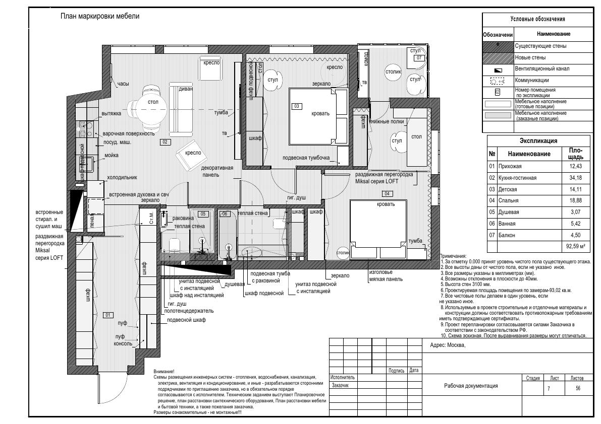
Разработка чертежей в ArchiCad

Навыки:

Знание ArchiCAD, 3d Max, Photoshop

Опыт работы:

8

Тип занятости:

Удаленная работа

Образование:

Высшее, специальность архитектура

Дополнительная информация:

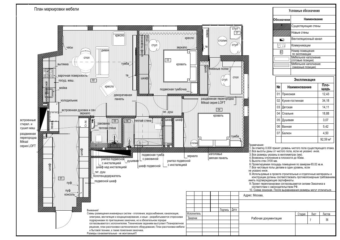
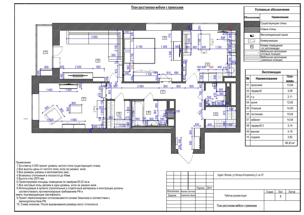
Выполняем чертежи для дизайнеров интерьера в ArchiCad 25. Архитектурное образование, опыт работы дизайнером интерьера, знаем все нюансы, работаем качественно и без срывов.
Полный комплект чертежей с развертками от 450 руб.кв.м.
Доступна оплата безналом, по расчетному счету