Зарплата

350 руб за кв.м

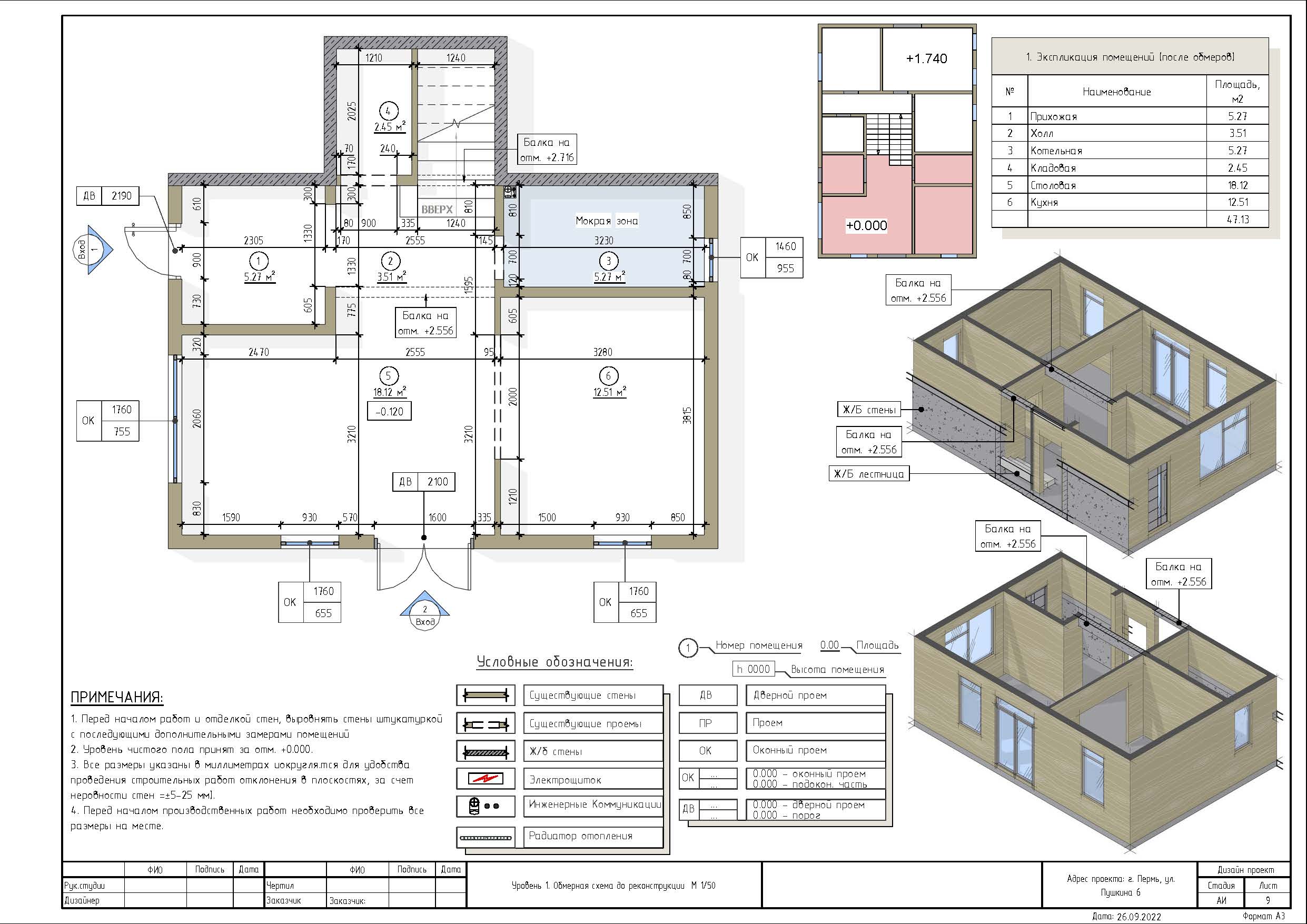
Рабочая документация в Revit.

Навыки:

Revit

Опыт работы:

5+

Тип занятости:

Удаленная работа

Образование:

Архитектура магистр.

Дополнительная информация:

РАБОЧАЯ ДОКУМЕНТАЦИЯ КВАРТИРЫ (ДОМА) ДЛЯ РЕМОНТА.
ПРОФЕССИОНАЛЬНО ПОДГОТОВЛЕННЫЙ АЛЬБОМ РАБОЧИХ ЧЕРТЕЖЕЙ.
Проработанный альбом чертежей включает в себя минимум 70-100 страниц. Альбом включает все ведомости и спецификации по метриалам, все сложные узлы, которые требуют дополнительную проработку. Альбом является инструкцией по ремонту, и искллючает ошибки при реализации.
Работа ведется в самых совремнных програмах, заказчикам будет доступен обход квартиры, 3D прогулки, подробная 3D модель квартиры, частного дома или коммерчерских помещений.

Графически стильная подача чертежей в программе Revit. Легко читаемые схемы, как для строителей, так и для заказчиков.

Планировочное решение - 350 ₽ / м²

Пример проекта вышлю по запросу.
Обмерный план;
1. План монтажа / демонтажа;
2. План мебели и оборудования;
3. 3 варианта планировок.
Срок: 2-3 рабочих дня.

Разработка полного пакета рабочей документации дизайн-проекта - 650 ₽ / м².
Проект разрабатывается в современной программе Revit и включает в себя понятные 3D схемы помещений и мебели, подсчет любых материалов.
Образец рабочей документации интерьера вышлю по запросу.
ПОЛНЫЙ ПАКЕТ ЧЕРТЕЖЕЙ:

1. Обмерная схема до реконтрукции
2. Схема демонтожа
3. Схема монтожа стен; Размерная схема монтожа/отделки стен (санузлы)
4. Схема отделки стен
5. Обмерная схема после реконструкции
6. Схема расстановки мебели с освещением
7. Схемы расстановки мебели с обозначениями
8. Схема расстановки мебели с размерами
10. Схема дверных проемов; Спецификация дверных проемов
11. Схема отделки оконных проемов
12. Схема инженерных сетей;
13. Схема размещения теплого пола
14. Схема напольных покрытий; Ведомость отделки полов
15. Схема потолочных контсрукций; Ведомость потолочных конструкций
16. Схема размещения светильниковв; Ведомость осветительных приборов по помещениям
17. Схема размещения розеток (по помещениям)
18. Фрагмент кухонного гарнитура с размещением розеток
19. Схема размещения выключателей (по помещениями)
20. Схема размещения выключателей, сценарии
21. Спецификация эл.рамок и вставок (механизмов)
22. Развертки по каждому помещению
23. Ведомость отделки помещений

Для работы нужны:
1. Фото объекта.
2. Обмерный план в формате dwg, либо на бумаге от руки.
3. Заполненное ТЗ.
4. Если есть — утвержденная планировка, визуализации, комплектация объекта.
Сроки: 100 кв.м. — 7-14 дней.Проект разр
Образец рабочей документации интерьера вышлю по запросу.

Также при необходимости разработаем проект инженерных систем:
Каждый проект включает в себя подробную разработку инженерии, отдельный альбом технической документации на следующие разделы:
1. Проект ВК (Водоснабжение/канализация)
2. Проект ОВ (Отопление/вентиляция)
3. Проект ЭОМ (Электроснабжение)

E-mail: nerotgeorgiy@outlook.com

Ссылки:

Портфолио