Зарплата

600 руб за кв.м

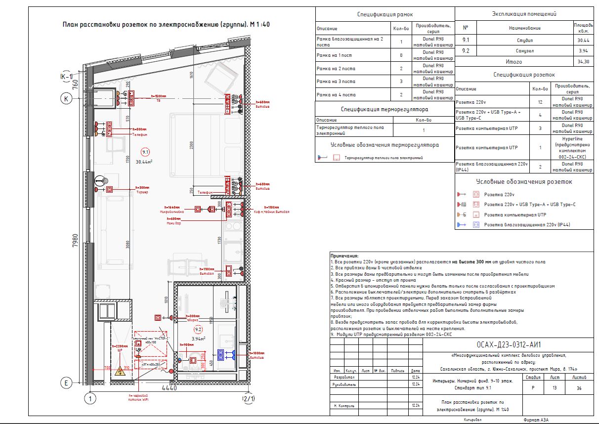
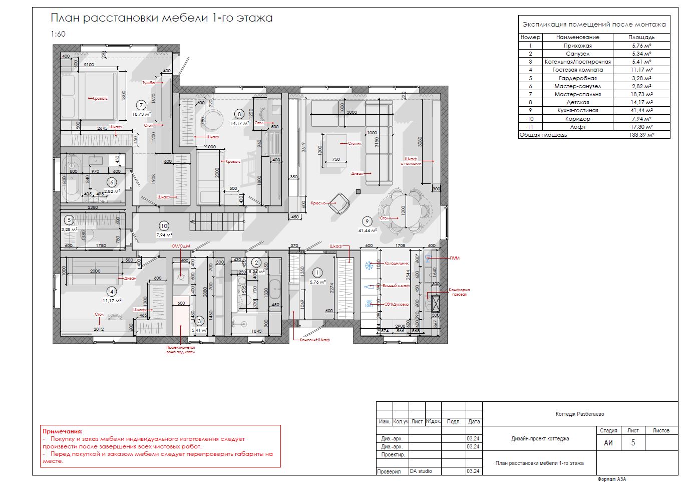
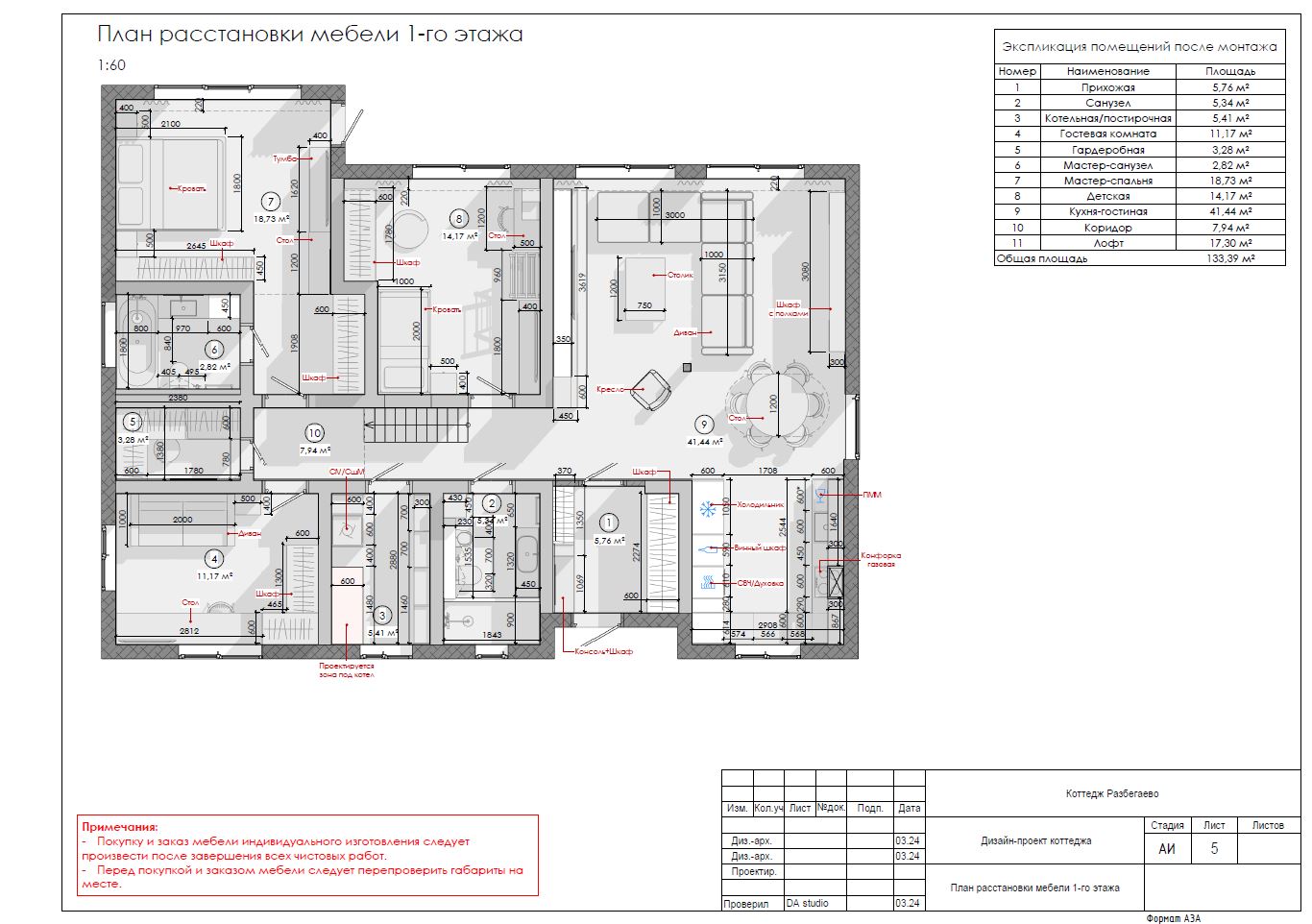
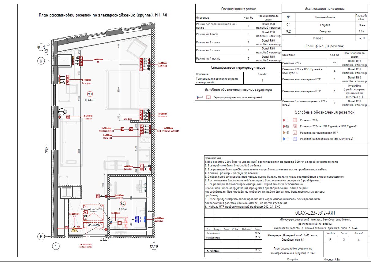
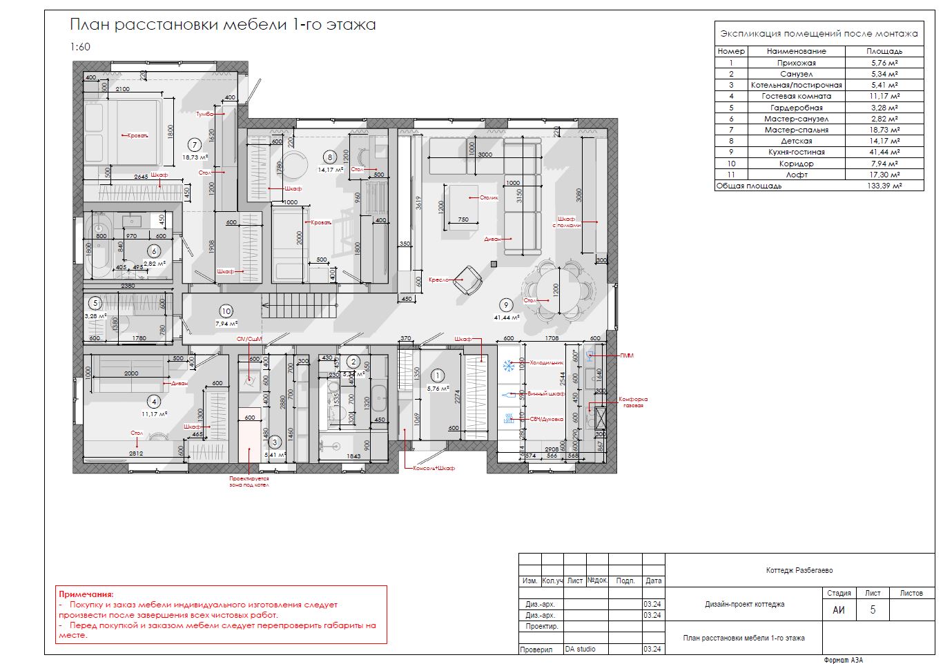
Рабочая документация для дизайн-проектов в Revit

Навыки:

Revit

Опыт работы:

Архитектор - 4 года, Техник-проектировщик - 3 года

Тип занятости:

Удаленная работа

Образование:

Высшее: (ПГС) ИСАиЖКХ
Среднее Специальное: (Архитектура) ДКСА

Дополнительная информация:

Разрабатываю рабочую документацию для дизайнеров и архитекторов в Revit на основе визуализаций и ТЗ.

⚡️ Что получаете:
- Полный комплект чертежей, готовых к реализации без лишних вопросов от строителей
- Аккуратные планы и разрезы в вашем стиле оформления
- Спецификации и ТЗ для подрядчиков — без путаницы и недопониманий
- Поддержку на всех этапах — от первых эскизов до сдачи проекта

Выполнение проектов больших площадей, коммерческих, офисных, общественных зданий, частных интерьеров

⚡️ Что входит в комплект:
- Стандартные листы
- Планировка и мебель (включая индивидуальное изготовление)
- Спецификации и ведомости
- Технические задания подрядчикам

⚡️Для дизайнеров и студий:
- Чертежи по вашим визуализациям и ТЗ
- Минимум вопросов от строителей (по опыту работы)
- Работаю в удалённом формате, всегда на связи
- Гибкое оформление — адаптация под стандарты вашей студии

С новыми заказчиками работаю по предоплате ❗️

⚡️ Стоимость полного комплекта чертежей за м² в Revit:
До 50 м² — 600 ₽/м²
От 51 м² до 300 м² — 580 ₽/м²
От 301 м² до 900 м² — 550 ₽/м²
Свыше 900 м² — 470 ₽/м²

⚡️ Важные заметки:
Если площадь ровно 50/300/900 м² — применяется цена следующей категории.
Минимальная стоимость проекта — 30 000 ₽ (для помещений до 50 м²).
Сложные и нестандартные задачи обсуждаем индивидуально!

Примеры проектов в TG визитке