Чертежник-проектировщик

Навыки:

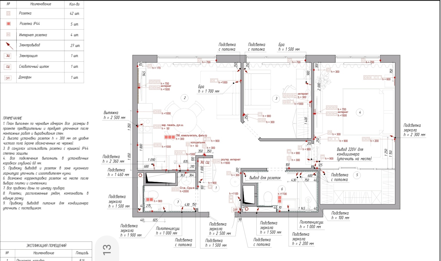
Полная рабочая документация к дизайн проекту по визуализациям, смета, размеры заказной мебели. Сдача проекта в срок.

Опыт работы:

9 лет

Тип занятости:

Удаленная работа

Образование:

Высшее

Дополнительная информация:

Опыт работы 9 лет. Работаю в ArchiCad. Ответственная, всегда на связи.

Контакты:

8-910-902-55-61