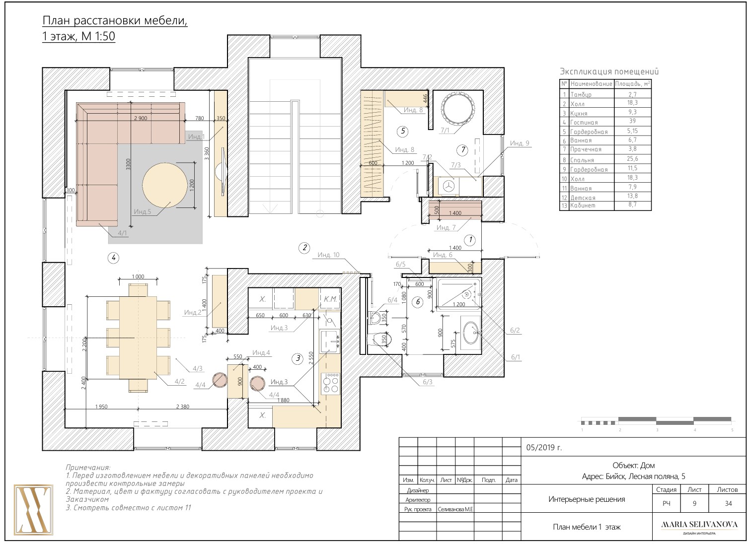
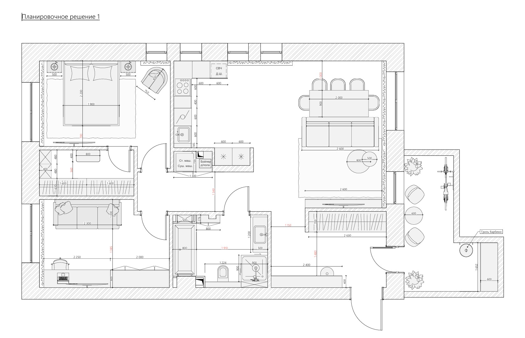
Планы квартиры или дома до результата, работаю для души)

Навыки:

Умею все от замера до реализации проекта, но заниматься хочется тем, что нравится больше всего - планировками.

Опыт работы:

11

Тип занятости:

Удаленная работа

Образование:

Высшее, Архитектор

Дополнительная информация:

Разработаю планировочное решение вашего помещения (квартира, офис, дача дом).
Опыт работе в проектировании и дизайне интерьеров 11 лет.
Планировки - любимая часть проекта, хочется заниматься именно этим, а вы сможете сэкономить время.

Планировка помещений(квартира, офис, дача дом) до 30 м.кв. -2500 руб.
Планировка помещений 30- 60 м.кв. - 3000 - 4 000 руб.
Планировка помещений 60- 100 м.кв. - 4 000 - 6 000 руб.
Планировка помещений 100 - 160 м.кв. - 6 000 - 10 000 руб.
Свыше 160 м. кв. от 10 000 руб. обговаривается индивидуально.

Цена за всю работу с правками и основными размерами.
При перепланировки помещения, дополнительно предоставляю план перегородок +500 рублей.

План предоставляется минимум в 3х вариантах, обычно получается 4-6.
Для начала работы нужен обмерный план предоплата 50%.

Срок исполнения 2-5 дней в зависимости от объема и загрузки.
Срочный заказ +1 000 руб. (срок выполнения 1 день).
Выполнение отдельных чертежей после планировочного решения 500-1000 руб./чертеж.