Зарплата

450 руб за кв.м

Проектировщик

Навыки:

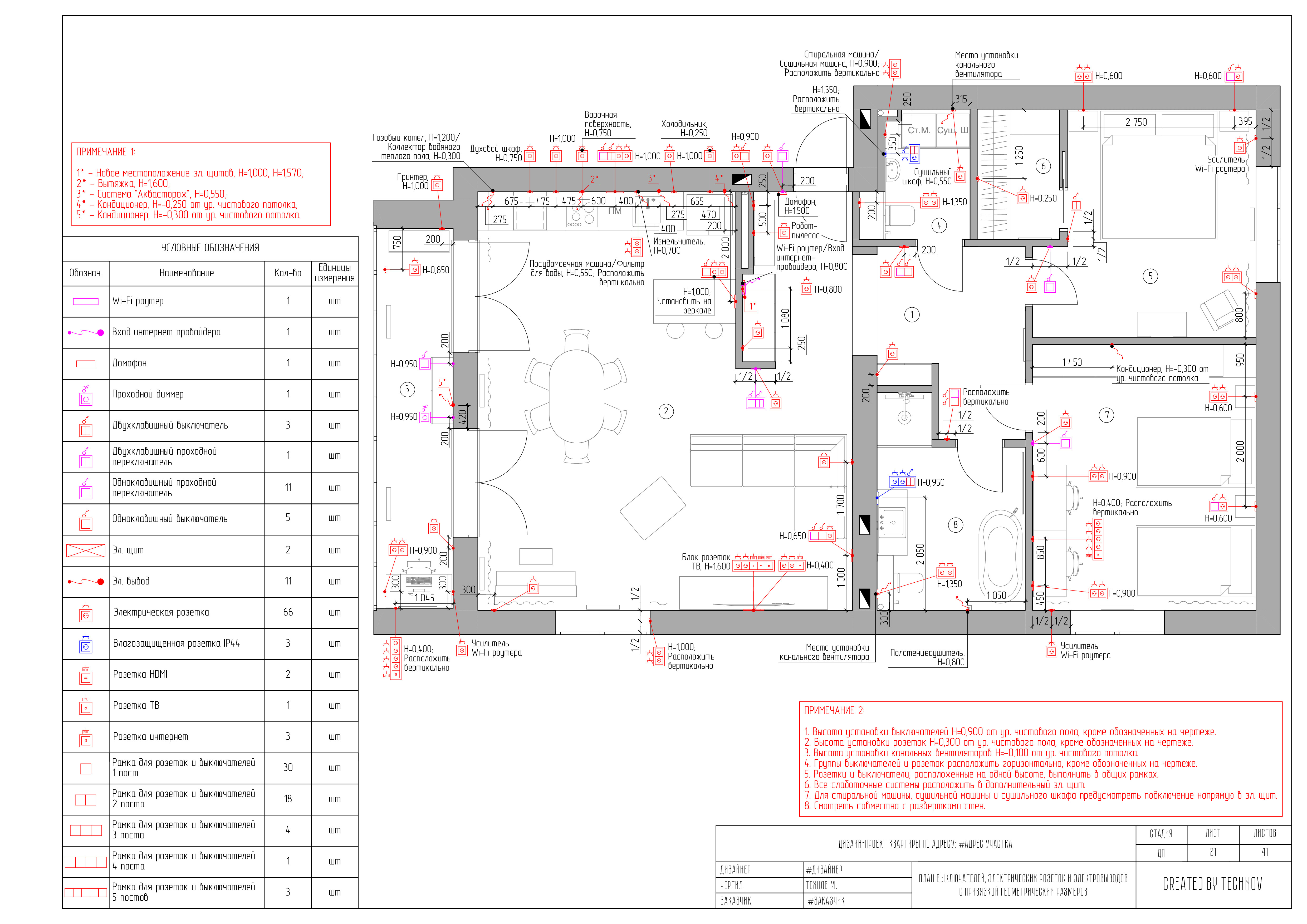
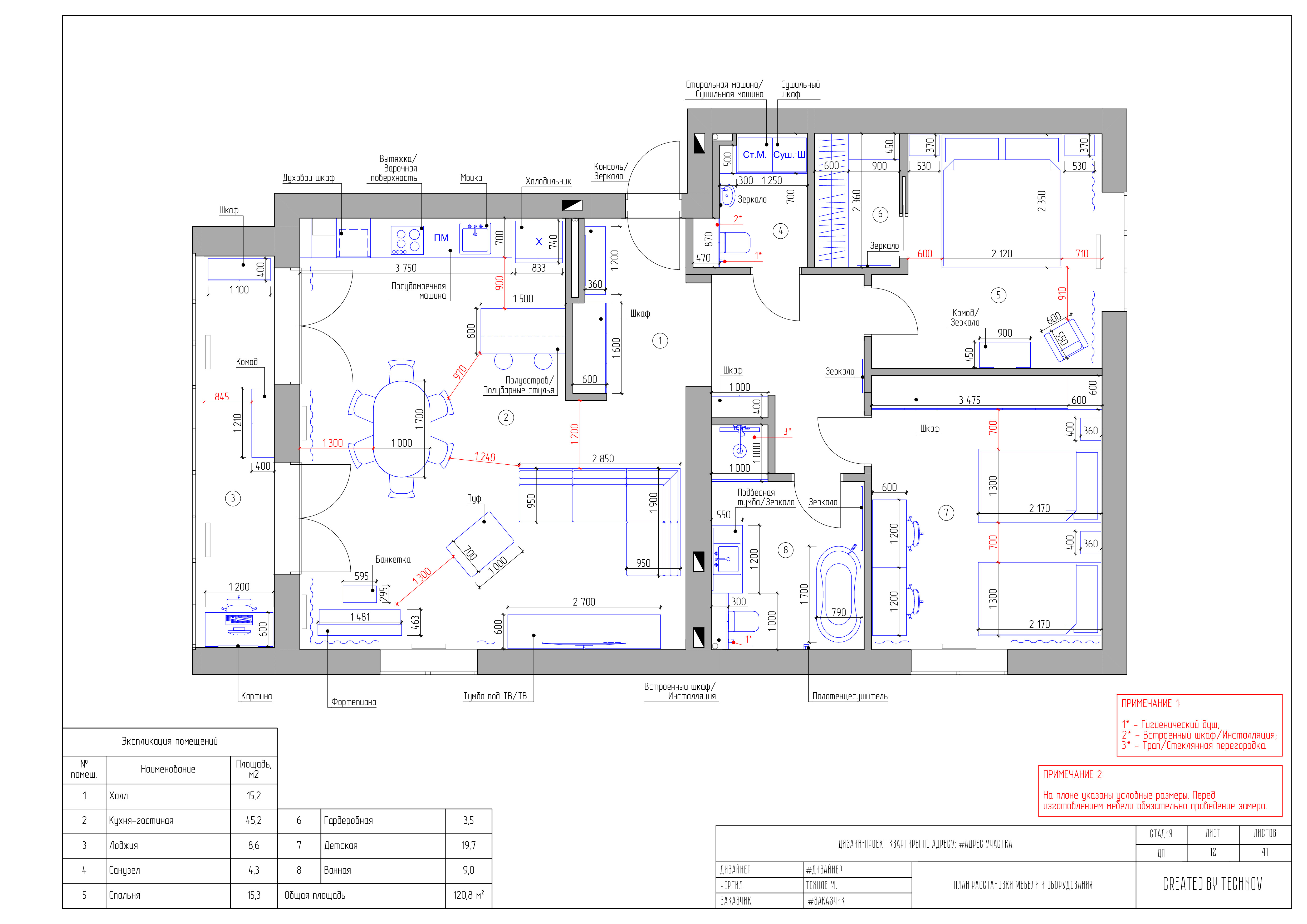
ArchiCAD 25 (BIM-технология). 3D анимация планировок (видео для reels)

Опыт работы:

более 2-х лет

Тип занятости:

Частичная занятость

Образование:

Воронежский Государственный Технический Университет (2017-2021)
Направление: Строительство и эксплуатация зданий и сооружений

Дополнительная информация:

Привет! Меня зовут Максим, занимаюсь разработкой рабочей документации для дизайн проектов более 2-х лет.
Проектирую по BIM-технологии, в документацию входят все основные чертежи, которые необходимы для реализации проекта.
Преимущественно ищу проекты в стиле минимализм.
Оформление проекта и анимации можно посмотреть по ссылкам ниже.

Контакты:

technovv@yandex.ru