Зарплата

550 руб за кв.м

Разработка рабочей документации в Revit. Опыт в отделке с 1998 года

Навыки:

Revit, AutoCAD, 3DS Max, Photoshop

Опыт работы:

Более 20 лет

Тип занятости:

Удаленная работа

Образование:

Высшее техническое

Дополнительная информация:

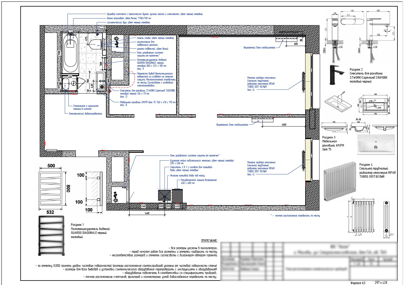
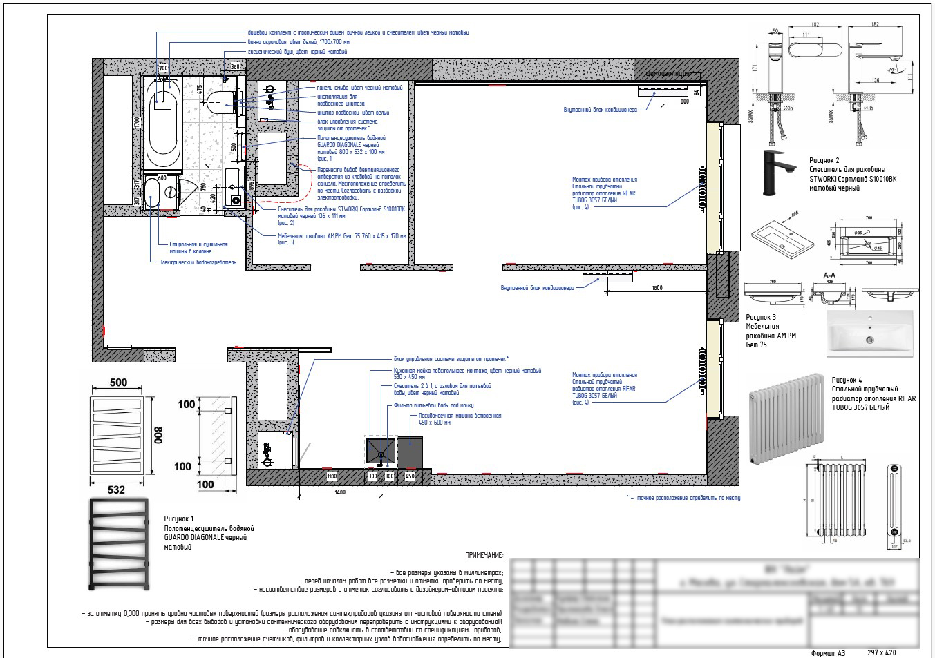
Выполняю подробные рабочие чертежи для дизайн-проектов интерьеров в REVIT. Мой приоритет — наглядность, техническая грамотность и понятность для строителей.

Revit: чертежи с пояснениями и 3D-видами, узлы, разрезы, развертки стен, ведомости и спецификации.

3D Max: уверенно работаю в программе, поэтому могу использовать исходники визуализатора для обеспечения максимальной точности чертежей.

Стаж: в сфере отделочных работ с 1998 года, в дизайне интерьеров — с 2013-го. Глубоко разбираюсь в технологиях производства и реальных процессах на стройке.

Результат: наглядный и логичный проект. Рабочие ценят мои чертежи за подробную детализацию (включая 3D-виды) и отсутствие лишних вопросов.

Гибкость: работаю в своем шаблоне или подстраиваюсь под ваш графический стиль оформления (штамп, шрифт). При необходимости делаю отдельные развертки по заказной мебели.

Стоимость:
До 50 кв.м — 30 000 руб. (фикс).
От 50 до 100 кв.м — 600 руб./кв.м.
Свыше 100 кв.м — 550 руб./кв.м.
Сложные проекты (обилие лепнины, сложные геометрические формы, нестандартные решения) — цена обсуждается отдельно.

По вашему запросу в личной переписке направлю портфолио выполненных проектов — вы сможете оценить стиль, качество и детализацию моей работы.

Контакты:

+79033988695

+79033988695