Зарплата

550 руб за кв.м

Разработка чертежей для дизайн-проектов (AutoCAD)

Навыки:

AutoCAD, 3ds Max (Corona)

Опыт работы:

более 4 лет

Тип занятости:

Удаленная работа

Образование:

Высшее архитектурно-строительное (ПГС)

Дополнительная информация:

Выполняю рабочую документацию для дизайн-проектов на основе готовых визуализаций, ТЗ в AutoCad.
Чертежи оформляю по моему или вашему шаблону.

Есть три варианта состава проекта:
1. Сокращенный комплект чертежей (без разверток, чертежей мебели) — от 450 руб./кв.м.*;
2. Стандартный комплект чертежей — от 550 руб./кв.м.*

*-стоимость зависит от площади объекта.

В состав проекта входит:
· Общие данные, сводные ведомости и спецификации;
· Обмерный план;
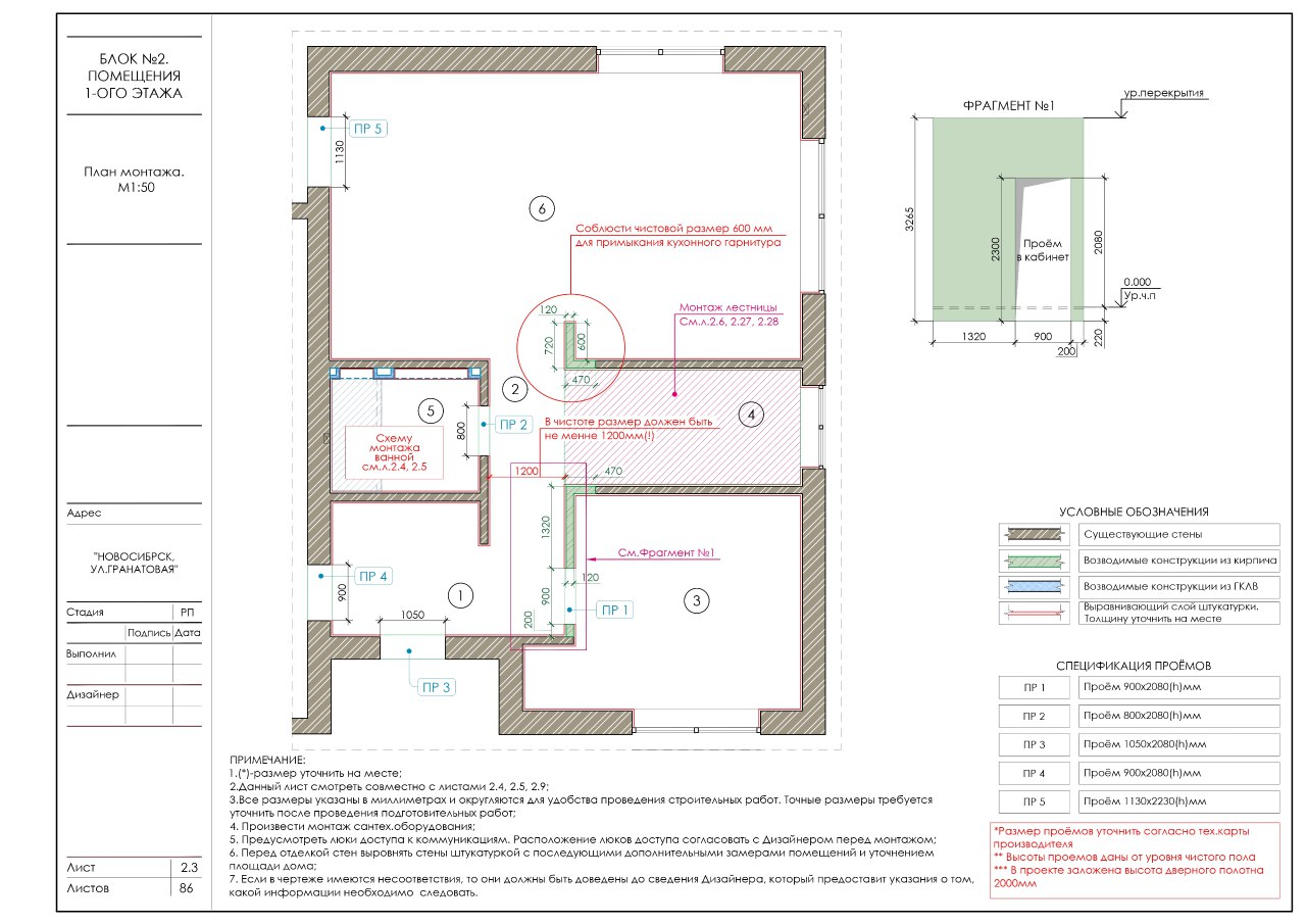
· План монтажа/демонтажа+доп.схемы, узлы, разрезы;
· План перепланировки;
· План расстановки мебели;
· План привязки сантехнического оборудования;
· План теплого пола;
· План напольных покрытий;
· План дверных проемов (ведомость проемов, спецификация дверей, схема отделки подоконных блоков);
· План потолочных конструкций + узлы, разрезы;
· План расстановки осветительных приборов;
· План с указанием групп включения света;
· План расстановки розеток и выключателей;
· План отделки + доп. схемы, узлы;
· Развертки с детальной проработкой
· Чертежи мебели (без внутреннего наполнения).
Также, если необходимо, выполняю отдельные чертежи.

Выполнение обмерного плана - от 2 500 руб., в зависимости от сложности объекта.
План расстановки мебели - от 2500 руб., в зависимости от сложности объекта.

Сроки выполнения обговариваются на стадии заказа.

Ссылки:

Портфолио