Зарплата

3 500 руб

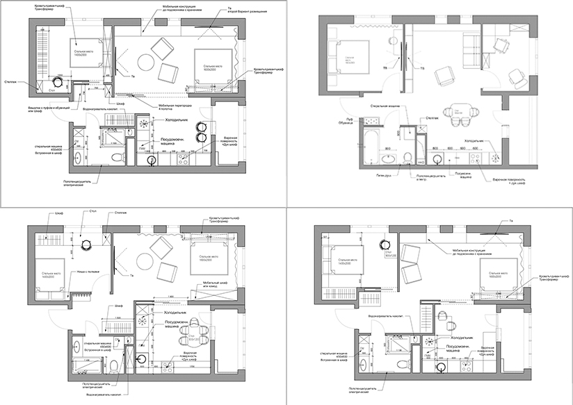
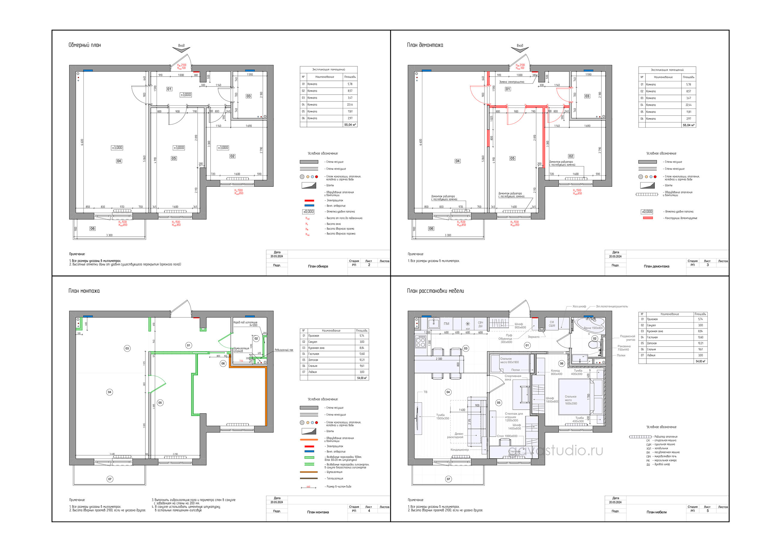
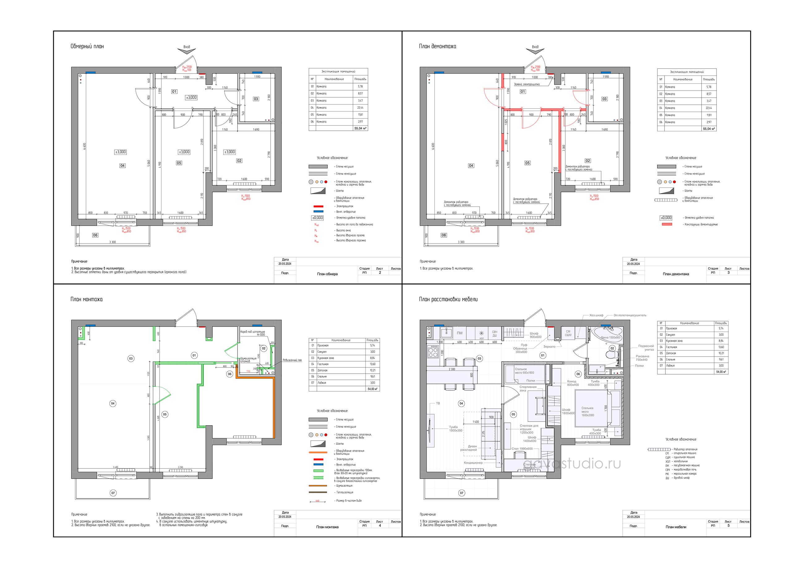
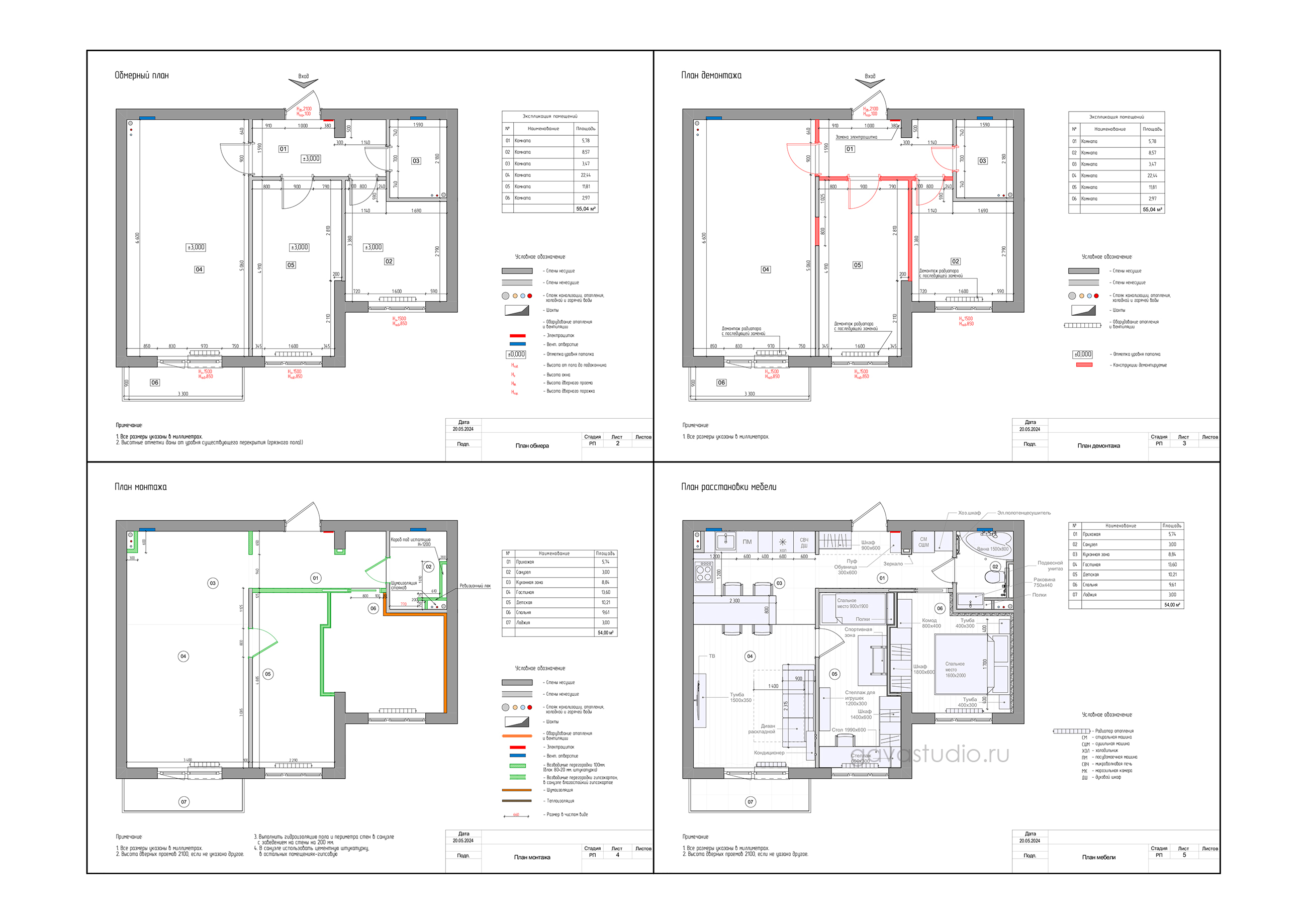
Планировочные решения

Навыки:

Имею опыт от обмеров и общения с заказчиками до проектирования и реализации. Люблю разрабатывать планировочные решения квартир, домов, офисов. Поэтому предлагаю вам услуги именно на этом этапе.

Опыт работы:

более 10 лет

Тип занятости:

Удаленная работа

Образование:

Высшее архитектурное

Дополнительная информация:

Ответственно подхожу к работе, соблюдая сроки.

Разработка 2-5 вариантов (обычно 2-3), редактирование финального варианта планировочного решения с расстановкой мебели и необходимыми размерами.

Итоговые документы отправляю в формате PDF
Предоплата 50 %
Стоимость работы 150 рублей за кв.м.

Ссылки:

Ссылка

Контакты:

+7 991 099 01 71