Зарплата

650 руб за кв.м

Архитектор-дизайнер / Рабочая документация

Навыки:

3Ds Max, Corona-renderer, Photoshop, Autocad, Sketchup

Опыт работы:

10 лет

Тип занятости:

Удаленная работа

Образование:

Высшее, специальность "Дизайн архитектурной среды"

Дополнительная информация:

** Профессиональная разработка чертежей для дизайнеров интерьера **

Я предлагаю услуги по созданию полного пакета рабочей документации для дизайнеров интерьера. Моя работа позволяет точно и грамотно реализовать ваш проект на объекте, минимизируя ошибки и недопонимание со стороны строителей.

Принципы работы:

· Основа — Техническое Задание: Работаю строго по вашему ТЗ, что гарантирует полное соответствие чертежей дизайн-проекту.
· Четкие сроки: Срок исполнения зависит от площади помещения. В среднем, разработка полного пакета чертежей для квартиры до 70 кв.м занимает 2 недели.
· Прозрачная оплата: 50% предоплата в начале работы, остальные 50% — после полного выполнения и согласования всех чертежей.

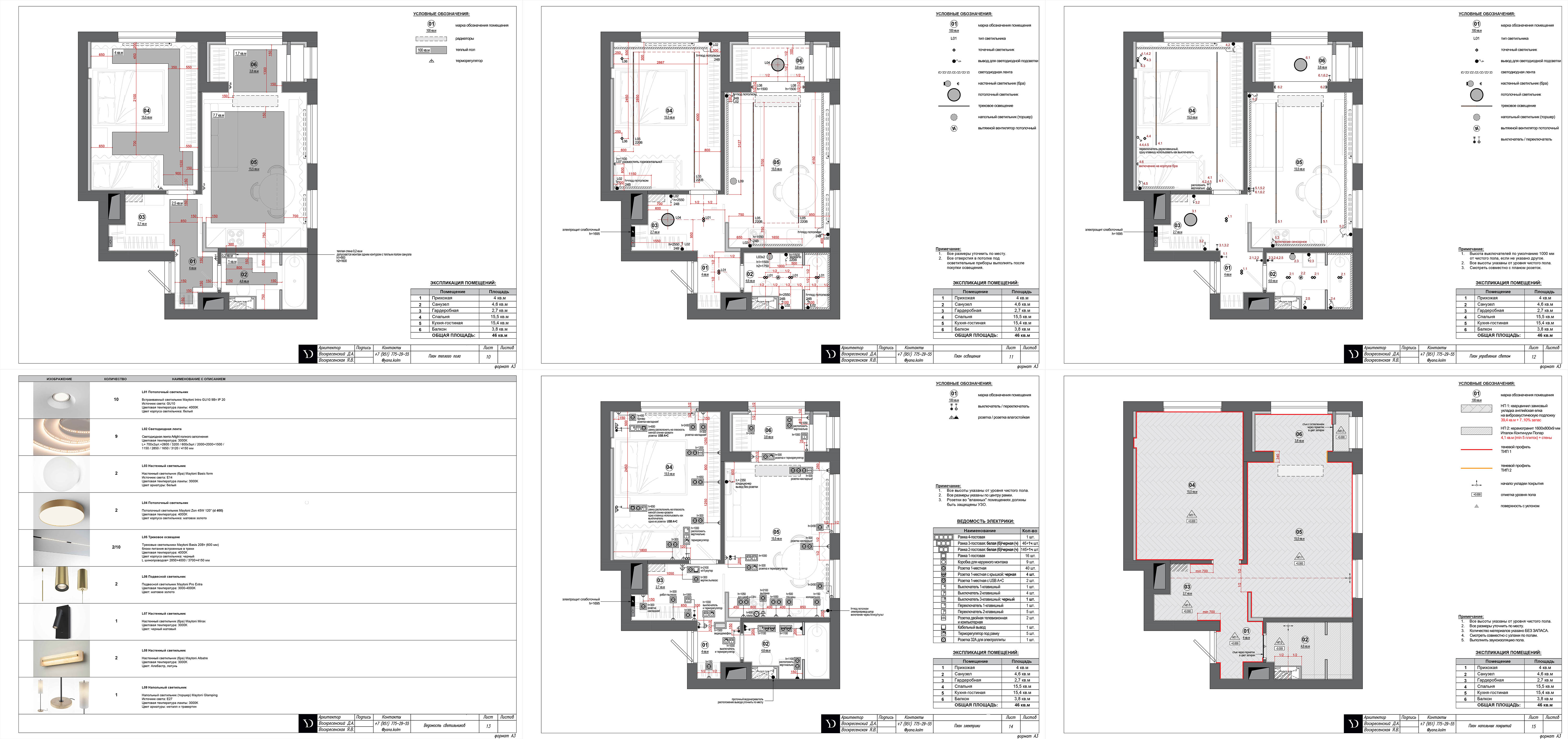
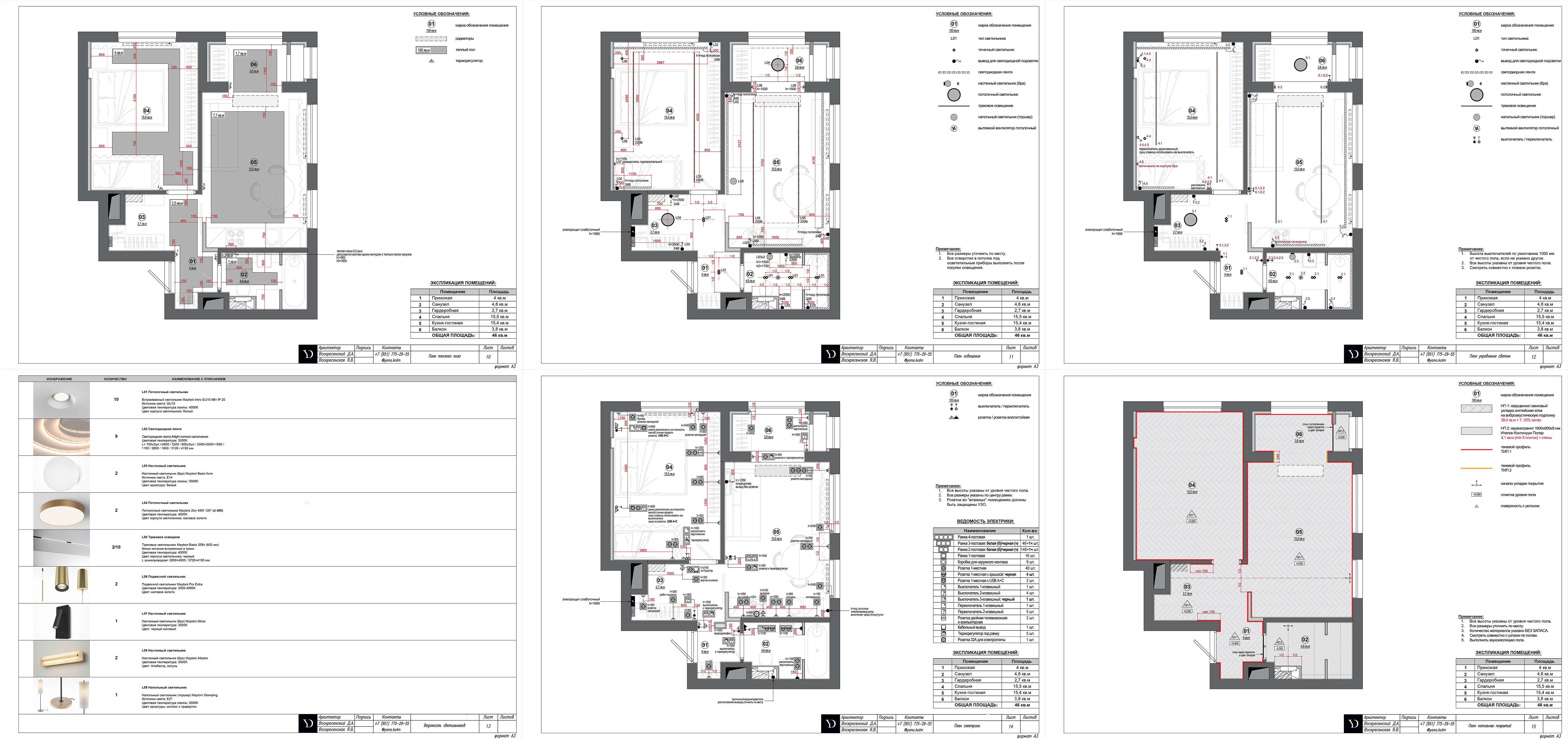
Состав рабочей документации:

В полный пакет чертежей входят следующие разделы:

1. Планы по объекту:

· Обмерный план (до перепланировки)
· План расстановки мебели
· План демонтажа перегородок и конструкций
· План монтажа перегородок и конструкций

2. Инженерные разделы:

· План подвода коммуникаций
· Ведомость сантехнических приборов
· План расположения кондиционеров и вытяжки
· План теплого пола
· План освещения
· План управления светом
· Ведомость светильников
· План электрики (розетки, выключатели, слаботочные сети)

3. Отделочные чертежи:

· План напольных покрытий
· Узлы и разрезы по полам
· План потолка (с указанием материалов и уровней)
· Узлы и разрезы по потолку
· План отделки стен
· План разверток стен с расстановкой материалов
· Развертки стен
· Узлы по стенам

4. Спецификации и мебель:

· План заполнения проемов (двери, арки)
· Ведомость дверей и перегородок
· Ведомость отделки (сводная таблица по всем материалам)
· Схемы корпусной мебели (сборочные чертежи)
· Ведомость остальной мебели

Для заказа или расчета точных сроков и стоимости для вашего проекта — свяжитесь со мной.

Контакты:

+79043022831

+79043022831