Разработка и визуализация ванной комнаты
Визуализация

Срок:

 14 дней

Цена договорная

Задание на новый интерьер ванной комнаты

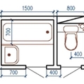
Планировка, размеры и состав помещения:
Туалет в хрущевке 80 см ширина
Глубина - 120 см до сантехнического шкафа
Высота потолков - 248 см


Стиль и цвет:
Стиль: Современный
Основные цвета: белая или бело-серая + под дерево



Плитка:
Важно, чтобы плитка использовалась с учетом ее характеристик, нельзя настенную плитку использовать на полу.
Белая https://santehnika-online.ru/plitka/nastennaya/belaja/
Под дерево https://santehnika-online.ru/plitka/nastennaya/pod_derevo/

Ценовая категория:
1. Заказчик делает ремонт в хрущевке и не объединяет туалет и ванную, значит он живет не один (несколько пользователей).
2. Вряд ли там супер-дорогие решения стоит использовать (то есть сегмент средний или средний минус)

Товары для полного интерьера:
https://santehnika-online.ru/

Требования по ракурсам и зонам:
https://docs.google.com/spreadsheets/d/1-qG8RirznuZljmJs2yuhzxk7ipTiCgwe/edit#gid=1438794482

Во вложениях прикрепляю чертеж и референсы.

1, Прошу в личные сообщения направить сумму, которую вы хотите получить за данную работу:
-Чертеж
-Разработка дизайна
-Рендеры 17 штук
2. Сможете ли вы самостоятельно сделать чертеж?