Revit Моделирование двух ванных комнат по фото с замерами
3D моделирование, Рабочая документация, Дизайн и архитектура

Срок:

 1 день

Цена договорная

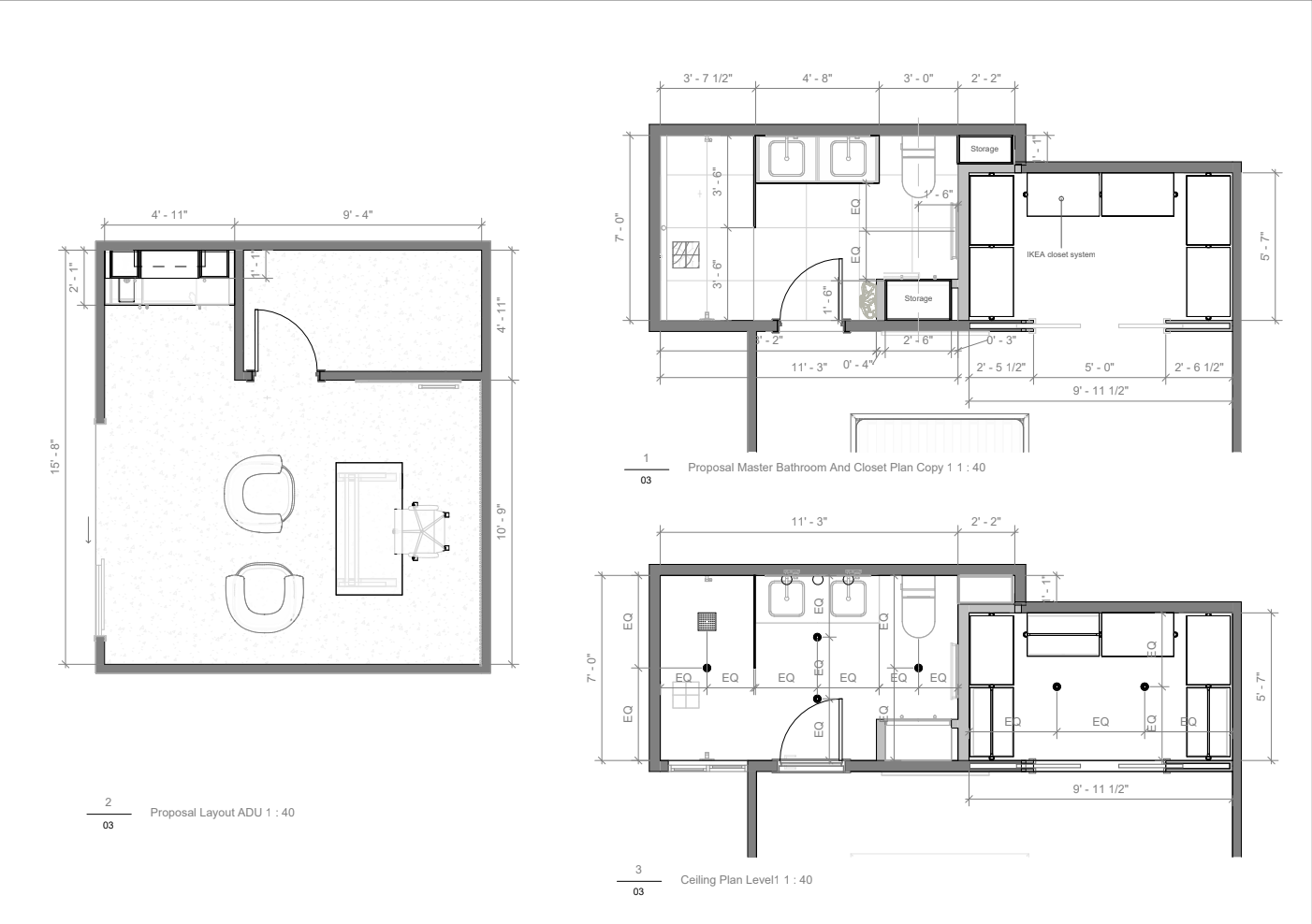
Необходимо смоделировать две маленькие ванные комнаты с материалами и сантехникой. Потенциальная возможность дальнейшего сотрудничества, занятость 1-3 проекта в неделю.

Обязанности:
Моделирование и оформление рабочей документации по предоставленным шаблонам в Revit:
Floor plans, elevations, axonometry's

Контакты:

@virtualdynamicsstudio