Модель интерьера дома с террасой
3D моделирование

Срок:

 2 дня

Цена договорная

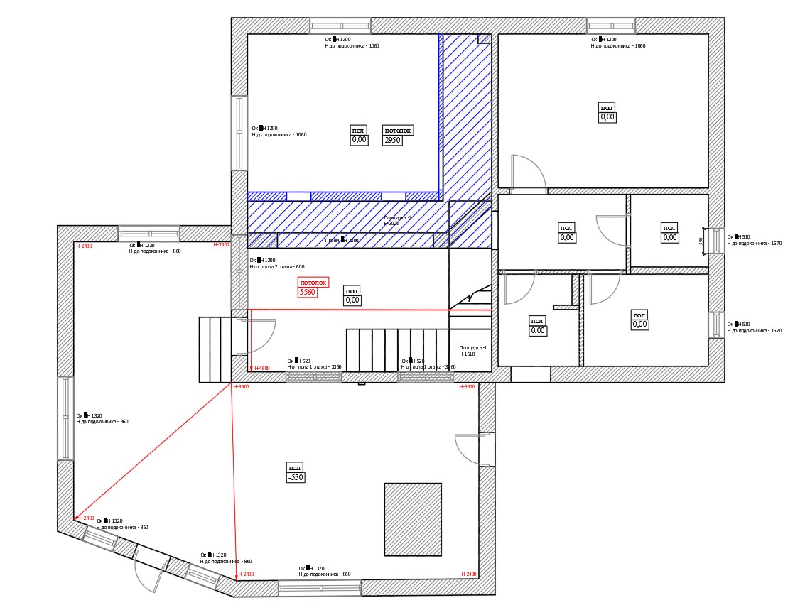
Здраствуйте! Нужно смоделировать интерьер дома по плану DWG и фото.
Полы, стены, потолки, окна, лестницы. Там где стены бревно - там бревно, где вагонка - там вагонка. Лестница как на фото.
Без текстур. Без материалов
Результат - модель 3D Max.
Портфолио, стоимость , сроки - в ЛС.