Придумать варианты потолка с подсветкой
Рабочая документация, Другое, Дизайн и архитектура

Срок:

 2 дня

Гонорар:

 500 руб

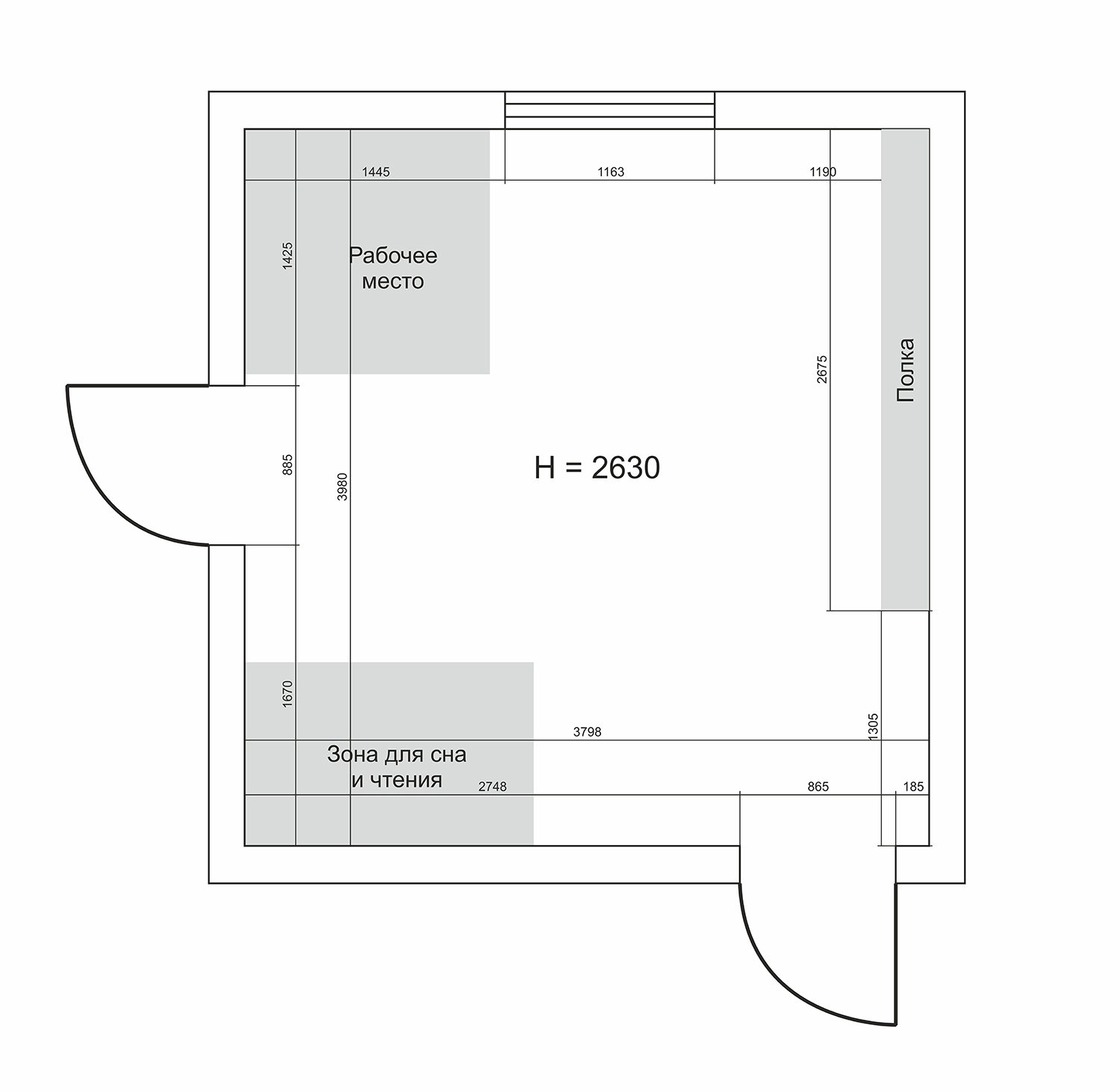
Необходимо разработать 2-3 варианта двухуровневого подвесного потолка с ргб подсветкой согласно требованиям эргономики, т.е. рассчитать количество света и светильников, достаточное в основном для рабочей зоны и зоны для чтения. Будут использоваться встраиваемые потолочные светильники, а также светодиодная лента внутри формы, которую тоже надо придумать. Ргб лента будет выполнять как роль дополнительного освещения, так и мигать в такт музыке в темноте. Основной упор сделать на рабочем месте - нужно достаточно света для работы. Кстати, не знаю, нужно ли будет подрезать или убирать деревянную полку, или можно её оставить? Вобщем, нужно придумать несколько хороших интересных вариантов, которые подойдут больше всего, используя фото, которые я прикрепил и готовый план, который также есть в кореле, и скинуть мне исходники, не забывая про эргономику. Только планы в векторе, 3д не надо делать.

Контакты:

xtrend1@gmail.com

x-trend1