Изменение архитектурного проекта жилого дома
Рабочая документация, Другое, Дизайн и архитектура

Срок:

 5 дней

Гонорар:

 20 000 руб

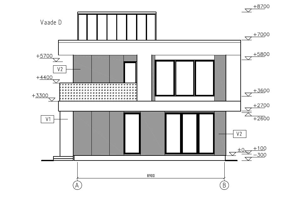
имеется проект в Autocad, необходимо сделать изменения в размерах окон, проемов, высот исходя из реально установленого строения. Также есть задача для контсруктора - на небольшом строении поменять наклон крыши и рассчитать каркас крыши.