господа Архитекторы

Автор
Сообщение
На сайте c 02.05.2014
Сообщений: 376

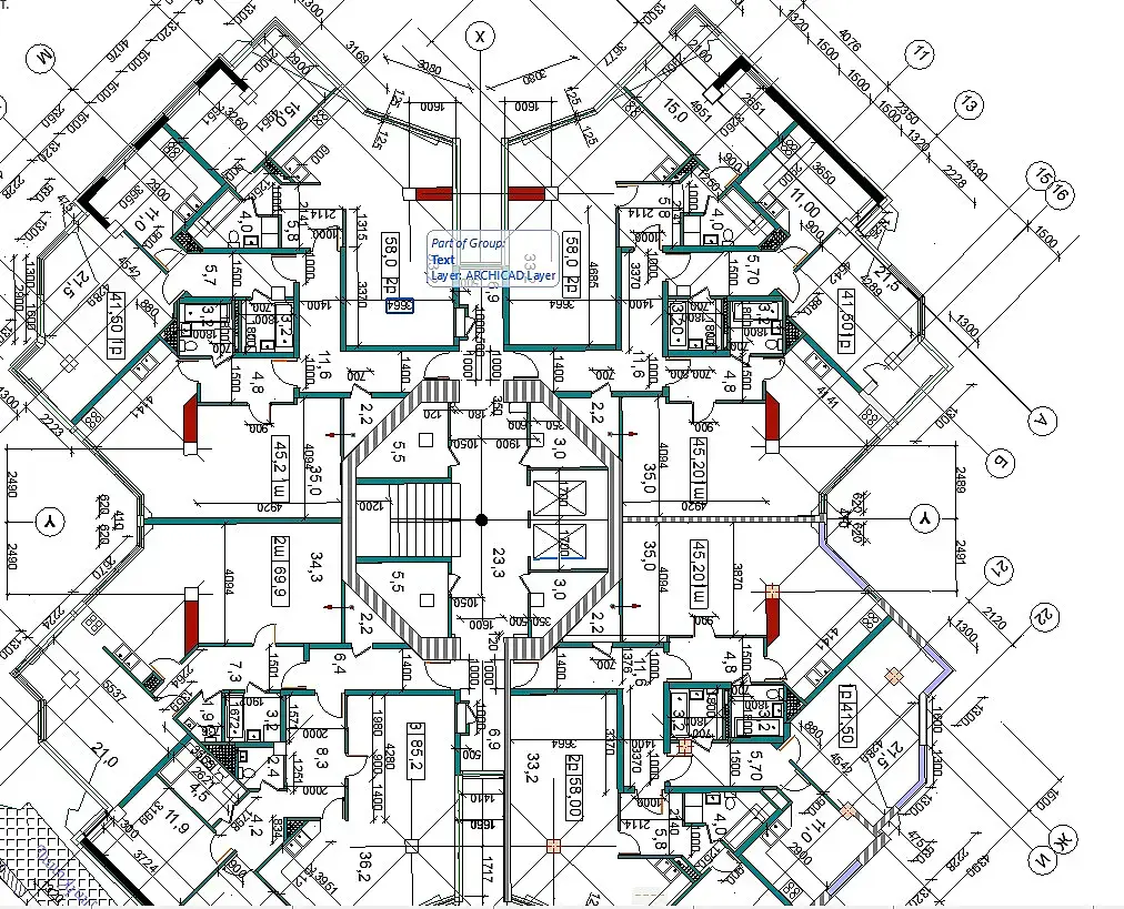
нужно заново планировать интерьер, сказали оставить только  колонны, но мне очень интересно что обозначают эти красные " стены" ? так как сказали что несущих стен нету 

На сайте c 13.07.2018
Сообщений: 73
Ukraine
Еще бы увидеть здание в разрезе и фасад.Если данное здание имеет каркасную схему,то данные стены работают на обеспечение пространственной жесткости,а по простому именуются диафрагмами жесткости.
На сайте c 02.05.2014
Сообщений: 376

naumov-interior

спасибо,

 оно будет ввиде балки? или стены 

здании пока что нет, точнее только что начали строение, чуть больше недели, но для быстрой продажи квартир нужен интерьер , это чертёж другой здании по мотивам которой должна быть наша, но мне сказали что взять основу только "восьмиугольник" посередине , и колонны.можно ли так?моё дело лишь планировка и интерьер,грубо говоря могу делать так как сказали и все. но хочется делать всё грамотно.

На сайте c 02.05.2014
Сообщений: 376

nikolart

а зачем Вам это нужно узнать ?

На сайте c 17.12.2009
Сообщений: 8091
РЕГИОН 13
Цитата Nebrovt:
оно будет ввиде балки? или стены

В виде стены.

Только зачем Вам это знать?

На сайте c 02.05.2014
Сообщений: 376

Зондер

это очень странно что до планировочных решений хочется узнать где неподвижные стены ?

На сайте c 14.06.2012
Сообщений: 16829
Москва
Странно, что некоторые из этих диафрагм скошенные. Острый угол это концентратор напряжений, что не оч согласуется с функцией ребра жесткости.
На сайте c 17.12.2009
Сообщений: 8091
РЕГИОН 13
Цитата Nebrovt:
это очень странно что до планировочных решений хочется узнать где неподвижные стены ?

Странно, что такое ответственное задание дают неподготовленным людям.

Дело не в Вас, конечно. Больше удивляют те, кто строит.

p.s. Прежний план расстановки мебели вообще капец. Застройщики, похоже, начинают думать о себе не очень хорошо.

На сайте c 08.08.2008
Сообщений: 258
Москва

Для меня тут самое странное - лестница, которая ни по каким нормам не проходит. Естественного освещения нет, коридоры вдалеке его не дадут, незадымляемой лестничной клетки тоже, а судя по двум лифтам здание многоэтажное. Как приняли проект - загадка. 

Я бы не стала приступать к работе без переговоров с проектировщиками насчет диафрагм жесткости.

На сайте c 14.06.2012
Сообщений: 16829
Москва

Да и форма плана здания тоже не фонтан. Грозит увеличенными теплопотерями в холодный период года.

Эти колонны в середине и без того небольших квартир "обрадуют" жильцов и дизайнеров. А судя по фасадам и окнам этой проблемы не избежать.

На сайте c 02.05.2014
Сообщений: 376

спросила у заказчика,

оказалась тут ничего нет, прежние планировщики так отметили часть мебелиsmiley-shok.gif smiley-lol.gif

своеобразно "скрывая" колонну smiley-wacko.gif

На сайте c 23.02.2010
Сообщений: 6350
Саракш
Цитата Зондер:

Странно, что такое ответственное задание дают неподготовленным людям.

 Ни какой ответственности тут нет, это всего лишь для рекламного банера, что в итоге будет у покупателей не гарантируют. Это как кусок курицы на упаковке с "Дошиком"

На сайте c 28.07.2013
Сообщений: 1615
KZ17

Цитата Nebrovt:
точнее только что начали строение, чуть больше недели,

Я конечно не архитектор, но мне вот интересно, как они начали строить? Имею ввиду тот факт что у них нет планировочного решения. Нет планировочного решения=нет решения по коммуникациям. Конечно, это не влияет сильно на работы по подготовке котлована, но на фундамент то уже влияет...   

Цитата Nebrovt:
оказалась тут ничего нет, прежние планировщики так отметили часть мебели  своеобразно "скрывая" колонну 

Цитата Nebrovt:
оказалась тут ничего нет, прежние планировщики так отметили часть мебели  своеобразно "скрывая" колонну 

А вот тут еще вопрос, так не о чем, с какого рожна мебель на плане этажа? А вообще полностью согласен со всеми кто выше отписался, и по симметрии и по положению, если не брать в расчет скошенные углы, то 99% это диафрагмы... 

На сайте c 02.05.2014
Сообщений: 376
забыла сказать что точно такая же здание уже строили, два года назад. находится неподолеку от этой. я своими глазами видела ,ничего нету, только колонны, и здесь моя основная задачка професиональна скрыть колонны, дать своеобразный дизайн
На сайте c 15.06.2008
Сообщений: 222
Донецк


слив моделей

Дата выдачи:
06.08.2024 17:58:08


Пожизненный бан
Если есть возможность - посмотрите раздел КЖ, если ваших "красной мебели" там нет - можете убирать.
На сайте c 02.05.2014
Сообщений: 376

m03g0ed

точно нету , не знаю правда за что так сделали, ну и Бог с ними.

Сейчас уже моя тема с "легким движением руки" превратилась в другую.

Как функционально скрыть колонны)))

Читают эту тему: