Цитата Bestviz:
В материалах jpg?
не очень понимаю вопрос)
если про то, чем сделан картинки материала - это настройка покрытия, системная, ничего доп не загружала
получается, единственный вариант как сохранить файл, что бы он открылся это сделать в параметрах разверки отображение без штриховки, но тогда весь смысл настройки покрытий пропадает, да и развертки уже нерасивые...

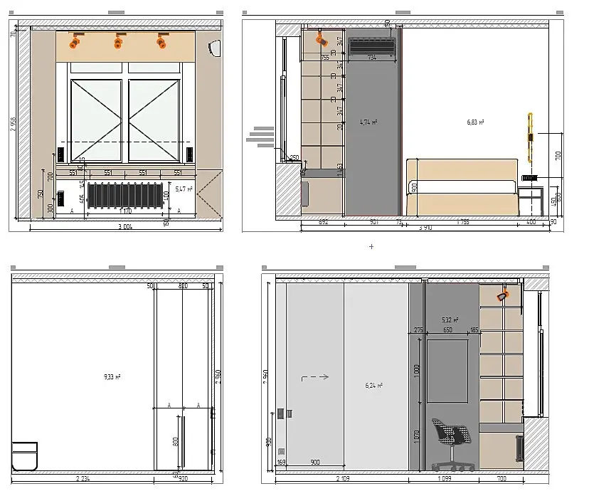
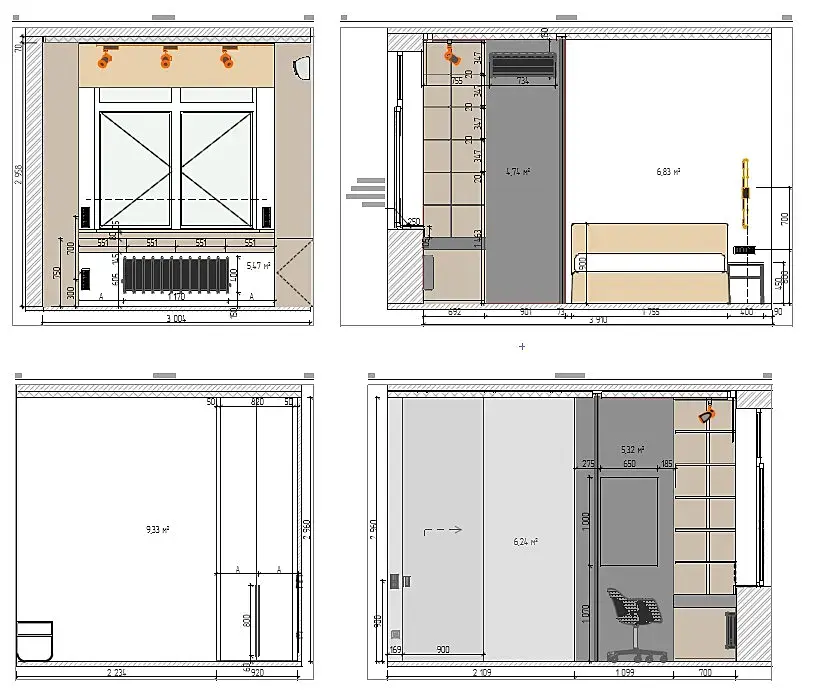
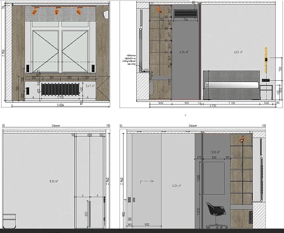
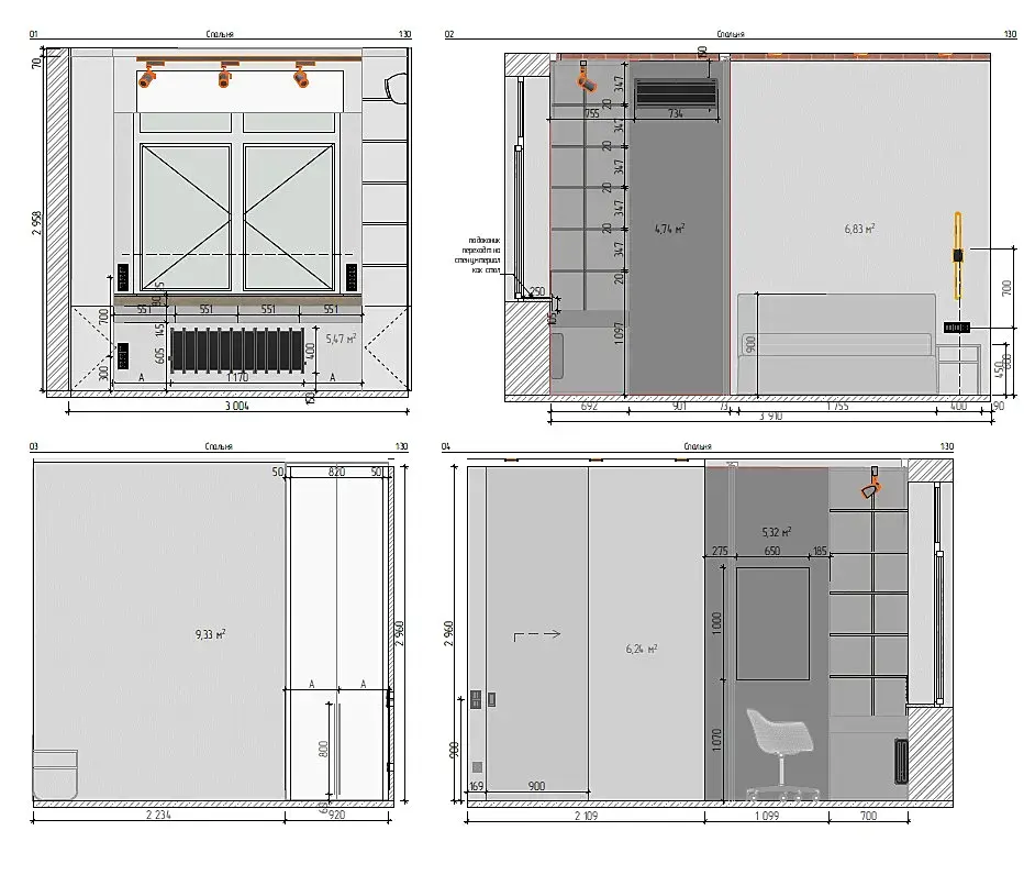
и выглядят они вот так

виновник был найден - косячный библиотечный элемент, убрала с развертки, все стало нормально.