Планировка

Автор
Сообщение
На сайте c 16.05.2011
Сообщений: 10

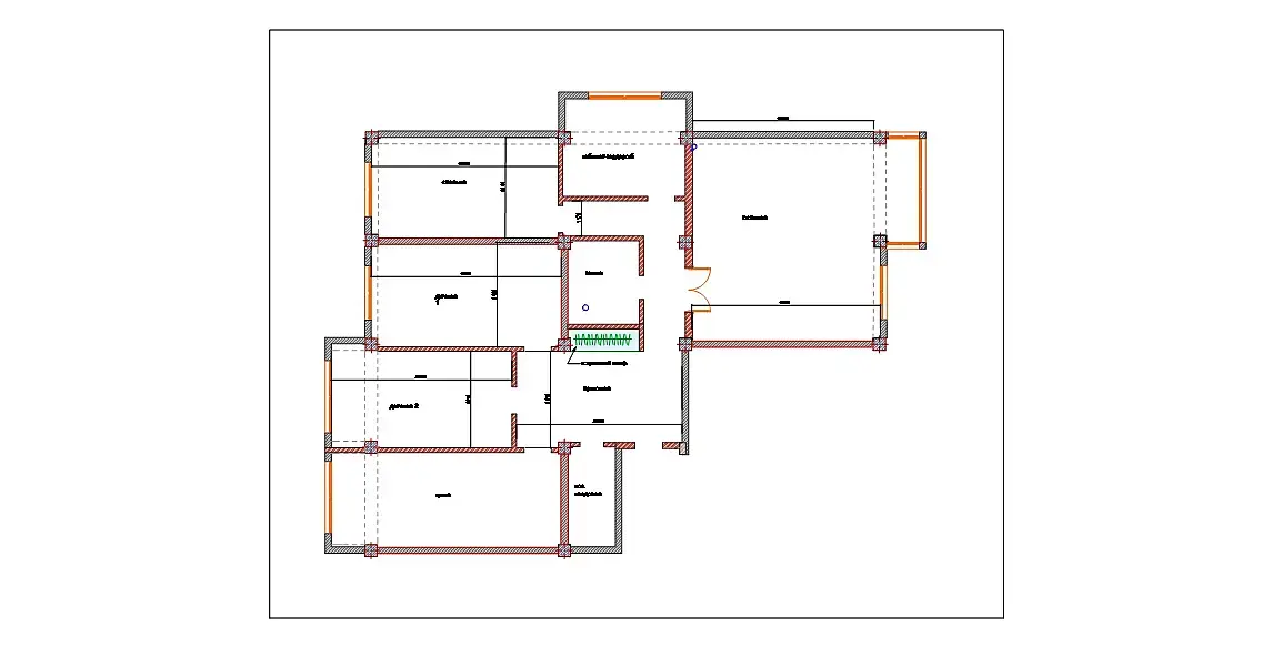
Здравствуйте коллеги! представляю 2 варианта планировки. варианты не окончательные. Две квартиры которые нужно соеденить

пожелания заказчика : 2 детские,выделить место для небольшого кабинета ,гардероб, ванна, большой зал ,

Хотелось бы советов услышать может еще что то можно переделать

и как отправить хорошего качества jpeg . загружается размыто

На сайте c 16.05.2009
Сообщений: 580
Киев
Могу посоветовать Вам расставить мебель в масштабе с размерами, думаю после этого поймёте насколько хороши (плохи) варианты.
На сайте c 16.05.2011
Сообщений: 10

Чесно сказать я расставила мебель, просто не выложила

комнаты в принципе большие и расположить можно по разному ,забыла сказать что общая квадратура составила 190кв.м

На сайте c 28.07.2013
Сообщений: 1615
KZ17
Еще было  бы замечательно увидеть планировку исходную, что бы на ней четко видны коммуникации, канализация, вода, вентиляция. Плюс нужно знать тех условия по конструкции, какие стены из чего, какое перекрытие, где диафрагмы, если такие есть. А то вы как то уж вольно все планируете. А мебель по любому нужна, без размеров которые не видно, сложно вообще понять масштаб.
На сайте c 16.05.2011
Сообщений: 10
Цитата Tema001:
Еще было  бы замечательно увидеть планировку исходную, что бы на ней четко видны коммуникации, канализация, вода, вентиляция. Плюс нужно знать тех условия по конструкции, какие стены из чего, какое перекрытие, где диафрагмы, если такие есть. А то вы как то уж вольно все планируете. А мебель по любому нужна, без размеров которые не видно, сложно вообще понять масштаб.

Исходную что имеете ввиду вроде первый чертеж и есть исходная ,дом газоблочный ,несущие стены указаны , просто по качеству не знаю отправилось размыто. Дом новостройка 2 этаж кухни учтены с учетом труб 

На сайте c 16.05.2011
Сообщений: 10

Цитата naumov-interior:
а обязательно все закрывать глухими перегородками как «от застройщика»? Можно же решить зонирование и методом open space , так много приемов разных

да нужно закрывать глухо на глухо smiley-biggrin.gif

от застройщика чертежей не предоставили к сожалению пока . сказали дадут вроде

На сайте c 28.07.2013
Сообщений: 1615
KZ17
Цитата Зайчик:
первый чертеж и есть исходная

Так на нем то не написано, что это. А размыто это да, можно только догадываться, попробуйте еще раз подгрузить. 

Цитата Зайчик:
кухни учтены с учетом труб 

По мимо кухни есть еще сан узлы, и по мимо труб, води и канализации, есть вентиляция, у вас по идеи таких должно быть минимум 4 комплекта, если квартиры две. Если конечно в одной из квартир не обошлись одним стояком... 

На сайте c 16.05.2011
Сообщений: 10

расположение в гостиной было с учетом существующей мебели попробую уговорить продать а пока такsmiley-biggrin.gif 2 вариант расположения гостиной было пожелание заказчика но я предлагаю на правой стороне, т.к вид с окна не самый красивый кирпичная стена и все спальни по левой стороне думаю будут лучше , и кухня ближе к входу с пакетами удобно а не тащится по всему коридору

Цитата Tema001:
Цитата Зайчик:
первый чертеж и есть исходная

Так на нем то не написано, что это. А размыто это да, можно только догадываться, попробуйте еще раз подгрузить. 

Цитата Зайчик:
кухни учтены с учетом труб 

По мимо кухни есть еще сан узлы, и по мимо труб, води и канализации, есть вентиляция, у вас по идеи таких должно быть минимум 4 комплекта, если квартиры две. Если конечно в одной из квартир не обошлись одним стояком... 

вентиляция  да на чертеже не указана но везде где указаны трубы) канализация и вода рядом

На сайте c 28.07.2013
Сообщений: 1615
KZ17
Цитата Зайчик:
но везде где указаны трубы)

Это синенькие круги которые? 

На сайте c 16.05.2011
Сообщений: 10
Цитата Tema001:
Цитата Зайчик:
но везде где указаны трубы)

Это синенькие круги которые? 

именноsmiley-biggrin.gif

На сайте c 28.07.2013
Сообщений: 1615
KZ17
Зайчик, тогда почему они у вас танственным образом пропадают? А иногда прям по центру сан узла остаются? Мой вам совет, поставьте все коммуникации на место, учтите всю инженерку и то как все это будет прятаться при подготовке планировочного решения. Пока вы все это не делаете, вы тратите время в пустую, плюс позже может быть не понимание с заказчиком, когда ему что то понравится, а вы им будете объяснять что так оказывается нельзя сделать. и здесь и там не хватает, или чего то мешает.
На сайте c 16.05.2011
Сообщений: 10
Цитата Tema001:
Зайчик, тогда почему они у вас танственным образом пропадают? А иногда прям по центру сан узла остаются? Мой вам совет, поставьте все коммуникации на место, учтите всю инженерку и то как все это будет прятаться при подготовке планировочного решения. Пока вы все это не делаете, вы тратите время в пустую, плюс позже может быть не понимание с заказчиком, когда ему что то понравится, а вы им будете объяснять что так оказывается нельзя сделать. и здесь и там не хватает, или чего то мешает.

нет почему они не пропали все стоит на месте никуда не передвигала, закроем гипсокартоном 

На сайте c 28.07.2013
Сообщений: 1615
KZ17

Вот смотрите, изначально она есть:

А в этом варианте:

 

1) Уже нет.2) Почему то по центру. А от неё dn110 тянуть до унитаза с лишним поворотом, вы серьезно? 3) В стене.

Вы пишете что закроете, так сразу и закрывайте, и это мы еще не видим вентиляцию, которая проходит с нижнего этажа. Не знаю, мое дело порекомендовать. А если рассуждать о тех вопросах что вас сейчас беспокоят, то я бы смотрел  в сторону размещения кухни и гостиной в верхней части плана. Что бы не разносить их далеко так как это сейчас у вас, я вижу в гостиной большой обеденный стол, будет не удобно бегать с подносами. А спальную зону размещать в нижней левой части. Сан узлов я бы два оставил, и постарался выкрутиться так, что бы у хозяйской спальни был свой собственный. 
На сайте c 16.05.2011
Сообщений: 10

да с лишним  поворот я конечно пересмотрю вариант если вы имеете ввиду цифру два где указали , а где цифра 1 я укажу , я варианты еще не завершила думала здесь не возникнет вопросов но не тут то было) конечно закончу и в красивом формате покажу заказчикам) а на счет планировки пока не получилось кухню и зал вместе расположить в верхней части ) но еще подумаю по этому поводу

Цитата Зайчик:
да с лишним  поворот я конечно пересмотрю вариант если вы имеете ввиду цифру два где указали , а где цифра 1 я укажу , я варианты еще не завершила думала здесь не возникнет вопросов но не тут то было) конечно закончу и в красивом формате покажу заказчикам) а на счет планировки пока не получилось кухню и зал вместе расположить в верхней части ) но еще подумаю по этому поводу

спасибо за советы )

На сайте c 28.07.2013
Сообщений: 1615
KZ17
Цитата Зайчик:
спасибо за советы )

Пожалуйста, просто серьезнее к этому отнеситесь и все у вас получится, а то пополните армию "девочек дизайнеров" будет печалька...  

На сайте c 09.05.2016
Сообщений: 1203
Ukraine. Kiev.

Зайчик- с такими исходными не работают, а с таким уровнем подготовки, в принципе, Вы даже не должны браться за перепланировку. Tema001- Вам пытается прописные истины объяснить. Но похоже Вы его не слышите, или скорее всего, даже не понимаете, о чём он. 

На сайте c 16.05.2011
Сообщений: 10
Цитата Arch-magic:

Зайчик- с такими исходными не работают, а с таким уровнем подготовки, в принципе, Вы даже не должны браться за перепланировку. Tema001- Вам пытается прописные истины объяснить. Но похоже Вы его не слышите, или скорее всего, даже не понимаете, о чём он. 

И вам всего хорошего smiley-biggrin.gif Я поняла все , что сказал Tema001 

На сайте c 09.05.2016
Сообщений: 1203
Ukraine. Kiev.
Цитата Зайчик:
И вам всего хорошего  Я поняла все , что сказал Tema001 

И по поводу  армии "девочек дизайнеров", я надеюсь, что то же поняли. 

На сайте c 18.07.2009
Сообщений: 574
Киев
Абалдеть -кричали гости! Зайчик ,объединяй гостинную с кухней,хоть слева внизу, хоть справа вверху. То что ты изобразила сейчас -бред сивой кобылы. На квартиру в которой живут 4 человека делают как минимум два санузла. Потому что пока кто то принимает ванную, другой может нестерпеть, и абписаца! Нарисуй вентканалы. Ты о них ничего не знаешь, а они есть!
На сайте c 16.05.2011
Сообщений: 10
Цитата dja1979:
Абалдеть -кричали гости! Зайчик ,объединяй гостинную с кухней,хоть слева внизу, хоть справа вверху. То что ты изобразила сейчас -бред сивой кобылы. На квартиру в которой живут 4 человека делают как минимум два санузла. Потому что пока кто то принимает ванную, другой может нестерпеть, и абписаца! Нарисуй вентканалы. Ты о них ничего не знаешь, а они есть!
Цитата Arch-magic:
Цитата Зайчик:
И вам всего хорошего  Я поняла все , что сказал Tema001 

И по поводу  армии "девочек дизайнеров", я надеюсь, что то же поняли. 

Все есть и знаю что это такое , по делу советуйте ,а не ищите иглу в стоге сена ,все стены учтены ,мне нужна помощь конкретная ,если нет то проходите мимо по добру)

Кстати я обьединяла кухню и гостиную , но этот вариант не рассматриваю как вариант для моих заказчиков )

Читают эту тему: