Правильный размер проёма

Автор
Сообщение
На сайте c 02.05.2014
Сообщений: 376

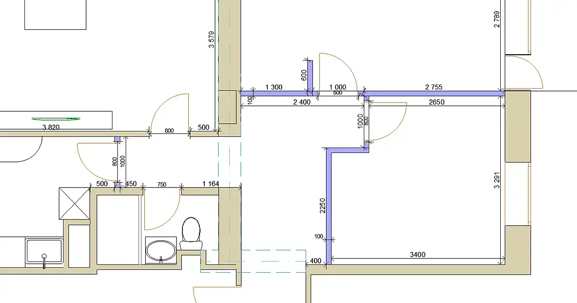
синим цветом новые стены

-Вопрос. расстояние между двух стен 1 метр , сколько делать проем 80 или 90? чтобы все смотрелось аккуратно , плинтусы наличники , если здесь проём 80 то дверь 72? чем плоха такая версия размеров ?

На сайте c 11.02.2010
Сообщений: 330
Минимальные нормы полотна :1)входная дверь - 900. 2)в жилые комнаты, кухню - 800. В санузлы 600-700.  Больше можно,  меньше - нет.  Проём  смотря какой производитель.  +80или +100.   Потому если жилая комната то приём 900. По 5 см остаётся на наличник.  Коробка 2,5-3,5 см пена-1-2 см . Коробка накрывает я наличиком оставляя 1-1,5 см.  Наличник средний 7-8 см. Итого на наличник места - 5+3,5. См.   То есть до угла останется 0,5-1 см. Учесть ещё штукатурку.  Если размер 1 метр без штукатурки,  то двери можно на заказ.  750 полотно.  Проем 850.  У вас есть куда расширить.   Лучше 1050 стену сделать и дать место на штукатурку
На сайте c 26.07.2008
Сообщений: 4166
Москва
нормальная ширина полотна двери в квартире - 800 мм
Читают эту тему: