простой вопрос

Автор
Сообщение
Активность: 0
На сайте c 29.07.2018
Сообщений: 22
саратов
здравсвуйте, подскажите как сделать весь чертеж в архикад черно белый? а то я вручную всю мебель на черную меняю  а стены все равно красные как были так и остаются, хотя я штриховки и перья все на черный сменила...извиняюсь за глупый вопрос, новичок
На сайте c 13.08.2017
Сообщений: 199
Цитата mariyadesign87:
здравсвуйте, подскажите как сделать весь чертеж в архикад черно белый? а то я вручную всю мебель на черную меняю  а стены все равно красные как были так и остаются, хотя я штриховки и перья все на черный сменила...извиняюсь за глупый вопрос, новичок

Посмотрите все настройки и скрытые разделы внимательней, я иногда тоже где-то не замечаю и такое бывает)

Активность: 0
На сайте c 29.07.2018
Сообщений: 22
саратов
А скрытые разделы это где?
На сайте c 31.01.2011
Сообщений: 273
город Хряков
Распечатать на ЧБ принтере? :)
Активность: 0
На сайте c 29.07.2018
Сообщений: 22
саратов

Этот вариант запасной))) все же думала есть вариант как то изначально настроить, а то потом проект когда распечатывать не удобно будет, половину листов цветных подовину черно белых, я конечно не заворачивалась и краснве стены печатала. Может есть все таки кто знает?

Да и знаете не серьёзно на одном листе стены чёрные на другом красные, не уважение какое то к заказчику, все таки подача проекта мое лицо

На сайте c 04.09.2008
Сообщений: 15064
Уфа

mariyadesign87

тему переименуйте подробнее

На сайте c 10.07.2008
Сообщений: 1449
Украина, Киев

mariyadesign87

там при печати должна быть настройка - печатать черно белым.

вот тут в настройках есть black and white галочка

Активность: 0
На сайте c 29.07.2018
Сообщений: 22
саратов

Сейчас фото пришлю чтоб показать , мне не на печати нужно сменить а на чертеже конкретно

Цитата Nightt:

mariyadesign87

тему переименуйте подробнее

новую тему создать с конкретным вопросом?

На сайте c 24.05.2009
Сообщений: 10880
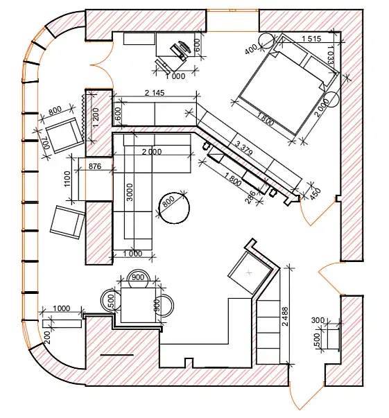
mariyadesign87, здорово придумали по планировке.
Активность: 0
На сайте c 29.07.2018
Сообщений: 22
саратов

мне нужно чтобы при работе в архикад на всех чертежах у меня были стены черные а не красные и если есть возможность каждую мебель отдельно не менять перья и штриховки по отдельности на черный цвет, думала может как то возможно по умолчанию толи поставить

Цитата grdesigner:
mariyadesign87, здорово придумали по планировке.

)))спасибо)

Заодно кстати и на дверях и окнах не могу сменить цвет????‍♀️ И штриховку помельче сделать

На сайте c 04.12.2013
Сообщений: 30
Можно ничего не менять. Сохранить в PDF, и в настройках указать, чтобы все было черно-белое.Или менять цвет линий в самом Архикаде, в настройках.
Активность: 0
На сайте c 29.07.2018
Сообщений: 22
саратов

дело в том что черно белый вариант мне не подходит так как практически на всех чертежах присутствуют цветные линии, а в настройках поменяла в самой стене правильно? И ничего не изменилось, все штриховки стоят чёрные а стена все равно красная

На сайте c 26.09.2006
Сообщений: 5355
Белокаменная
Можно создать Набор Перьев, и использовать его.
На сайте c 04.12.2013
Сообщений: 30
Цитата mariyadesign87:

дело в том что черно белый вариант мне не подходит так как практически на всех чертежах присутствуют цветные линии, а в настройках поменяла в самой стене правильно? И ничего не изменилось, все штриховки стоят чёрные а стена все равно красная

А в прямоугольниках только черно-белые цвета? Если есть где-то красный или подобный цвет, то его надо поменять соответственно)

Активность: 0
На сайте c 29.07.2018
Сообщений: 22
саратов
Это фото что я уже все что можно на черный цвет заменила)))
На сайте c 04.12.2013
Сообщений: 30
Цитата mariyadesign87:
Это фото что я уже все что можно на черный цвет заменила)))

На третьей фотке Кирпич надо поменять на что-то другое, что подходит. Возможно, здесь косяк

Активность: 0
На сайте c 29.07.2018
Сообщений: 22
саратов
Вот ч тоже уже посмотрела но на других видах толщину стены не даёт менять , поэтому кирпич выбран, засада прям, как ж все остальные то в чёрном цвете делают, я знаю в корале переделывают но это ж сколько чертежей надо переделать и не удобно
На сайте c 26.09.2006
Сообщений: 5355
Белокаменная
Меняйте цвет в Многослойных Конструкциях и Строительных Материалах.
Активность: 0
На сайте c 29.07.2018
Сообщений: 22
саратов
А это где ?
На сайте c 26.09.2006
Сообщений: 5355
Белокаменная
Цитата mariyadesign87:
А это где ?

Параметры-->Реквизиты элементов
Читают эту тему: