Таварищи Архитекторы

Автор
Сообщение
На сайте c 21.05.2016
Сообщений: 127

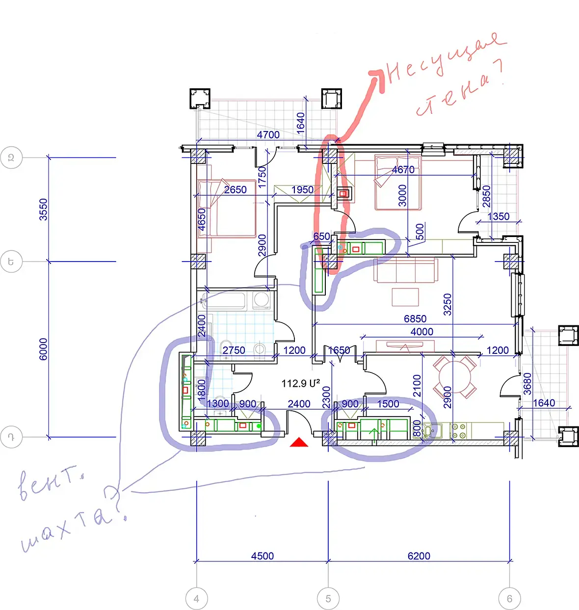
 У меня 2 вопроса по поводу етой планировке, 

1.Бывает ли 20 см-овая несущая стена???

2.(подчоркнутым синим) ето вент. шахты?

Кстати здесь 2 квартиры , просто соединили

up

На сайте c 18.10.2012
Сообщений: 325
Poznań

1. Судя о всему это несущая жб диафрагма

2. Там много чего и вентшахты в том числе

На сайте c 26.05.2010
Сообщений: 122
arday.ru

1. Если 2 квартиры соединили, то возможно эта стена из газосиликатного блока 200мм толщиной (обычно блоком данной толщиной разграничивают квартиры на этаже)

2. Да, это коммуникации.

На сайте c 16.02.2017
Сообщений: 168
Киев
Судя по картинке, конструкция каркасная. Несущих стен нет, обозначенная стена, как уже написали -- это диафрагма жесткости. Трогать нельзя.
На сайте c 26.09.2006
Сообщений: 5331
Белокаменная

1. Сомневаюсь что между 2-мя колонами несущая стена, да еще и 20см.

2. Вент. шахта скорей только внизу с лева, с соответствующим обозначением. А остальные стояки.

На сайте c 09.07.2011
Сообщений: 303

Ну там не только вентшахты. Там еще и коммуникации проложены, вода, канализация, отопление.

А эта стеночка 200мм - скорее всего составная часть каркаса здания, которая придает ему жесткость (это если кратко).

На сайте c 25.06.2007
Сообщений: 1503
Россия
Маловероятно, что в каркасном доме стена является диафрагмой жесткости. Если дом типовой, можно попробовать техпаспорт найти и прочитать описание конструктива.
На сайте c 10.11.2008
Сообщений: 1104
Москва
если есть сейсмика в вашем регионе,то это точно диафрагма жесткости в каркасном доме.От колоны к колоне.
На сайте c 21.05.2016
Сообщений: 127
значит как понимаю трогать эту 200мм-овку  строго НЕЛЬЗЯ
На сайте c 05.03.2011
Сообщений: 2680
Сочи

1. У вас каркасная конструкция дома. У вас вообще нет несущих стен.

2. Да, вентшахты (их ломать нельзя)

Цитата Sergo Green:
значит как понимаю трогать эту 200мм-овку  строго НЕЛЬЗЯ

Можно. 

Я только не могу понять а что вы хотите выгадать при помощи демонтажа этой перегородки?

По моему овчинка не стоит выделки.

Желтым показана то, что можно демонтировать, зеленым, то, что нельзя.

На сайте c 21.05.2016
Сообщений: 127

Максим.Л. но если ето диафрагма?? Его можно трогать?? Там в комментах как помню было мнение что нельзя..?

ааа....ладно, понятно

На сайте c 05.03.2011
Сообщений: 2680
Сочи
Цитата Sergo Green:
Максим.Л. но если ето диафрагма?? Его можно трогать?? Там в комментах как помню было мнение что нельзя..?

Это не диафрагма. 

Из какого материала она?

Готов поспорить, что она сделана из такого блока

Или из таких

На сайте c 09.05.2016
Сообщений: 1203
Ukraine. Kiev.
Цитата Sergo Green:
 У меня 2 вопроса по поводу етой планировке, 
1.Бывает ли 20 см-овая несущая стена???
2.(подчоркнутым синим) ето вент. шахты? Кстати здесь 2 квартиры , просто соединили

Вопрос в корне глупый. По простой причине- для корректного ответа нужны не дизайнерские схемы- а хотя бы чертежи АР- рабочка Р.  А ещё лучше КЖБ- рабочка. 

1. Судя по всему- малюнок выполнен по неким архитектурно строительным чертежам. И очень предположительно, что интересующая Вас стенка является диафрагмой жесткости в монолитно каркасном здании. Могу поспорить на шолобан- что так оно и есть. Возьмите молоток и по вертикале сбейте штукатурку на расстоянии сантиметров 60. И если под штукатуркой обнаружите сплошной бетон- то так оно и есть. Кто то говорил про блоки- так вот, блоки 20-ка для перегородок в пределах одной квартиры, для монолитно каркасных не используются ( никада ).  Трогать такие вещи низя.

2. То что обведено синим цветом- предположительно некие каналы. Поскольку их обозначение не соответствует госту- сказать конкретнее не могу. А заявленные размеры, не проясняют картины. Размер стандартного монолитного, для каркасников,  вентблока 930х500.  

И мой Вам совет- НИКОГДА не задавайте подобных вопросов на форумах. Для этого есть различные компетентные конторы, в ведомстве которых находится интересующие Вас сооружение. Неоднократно просил администрацию запретить размещать подобные темы, по причине возможного вреда от таковых. 

*******************************

О, уважаемый автор минус мне влепил )))). Так Вы оказывается ещё и "дизинер".

На сайте c 10.11.2008
Сообщений: 1104
Москва

Максим.Л. это диафрагма. Она не сборная.она железобетонная.

На сайте c 04.10.2010
Сообщений: 104
North

Я тоже склоняюсь к диафрагме. И она у Вас не одна, посмотрите внимательно. Еще одна расположена горизонтально, там где блок инженерных коммуникаций. Если бы это были ячеистые блоки 200мм, не думаю, что они прошли по нормам звукоизоляции для разграничения квартир, плюс к кухням стараются приставлять кирпичные либо железобетонные стены, а то сложно потом повесить навесной фасад. У нас такие нормы, может у вас не так. Единственное что смущает - это распложение дифрагм, конструкторы очень любят центрировать их по осям колонн.

А так - каркасный многоэтажный дом без единой диафрагмы - это редкость.

На сайте c 16.02.2017
Сообщений: 168
Киев
Цитата Оля+:
А так - каркасный многоэтажный дом без единой диафрагмы - это редкость.

Это не редкость -- это тяжкое преступление.

На сайте c 05.03.2011
Сообщений: 2680
Сочи
Цитата scorp09:
Максим.Л. это диафрагма. Она не сборная.она железобетонная.

Откуда ты знаешь, что она железо-бетонная?Если бы это была диафрагма было бы логично ее на ось поставить. Нет?

На сайте c 04.10.2010
Сообщений: 104
North
Цитата Petromax:
Цитата Оля+:
А так - каркасный многоэтажный дом без единой диафрагмы - это редкость.

Это не редкость -- это тяжкое преступление.

)))) я хотела сказать, если отсутствуют диафрагмы- значит появляются балки. А жилые дома с высокими балками у нас не очень любят строить, да и автор ничего о них не упоминает.

На сайте c 16.02.2017
Сообщений: 168
Киев

Цитата Оля+:
))) я хотела сказать, если отсутствуют диафрагмы- значит появляются балки.

Балки работают на вертикальные нагрузки и не придают жесткости конструкции в горизонтальном направлении.

Цитата Максим.Л.:
Цитата scorp09:
Максим.Л. это диафрагма. Она не сборная.она железобетонная.

Откуда ты знаешь, что она железо-бетонная?Если бы это была диафрагма было бы логично ее на ось поставить. Нет?

Во втором случае проще организовать опалубку.  При сборных колонах и сборных диафрагмах так и делали.

На сайте c 10.11.2008
Сообщений: 1104
Москва
нелогичное для вас!)
Читают эту тему: