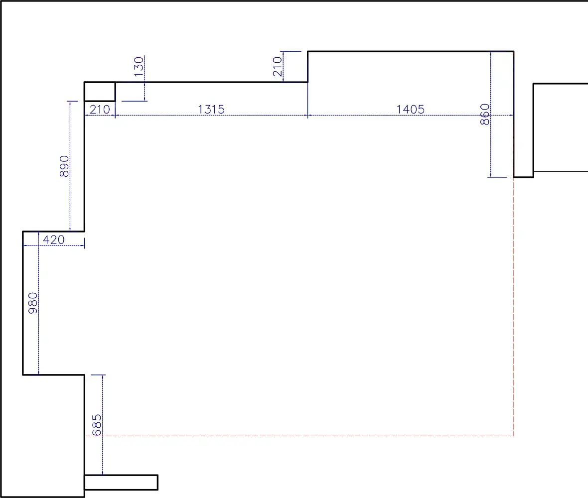
ужасная планировка кухни

Автор
Сообщение
Активность: 0
На сайте c 07.06.2018
Сообщений: 3

НЕ подскажите что можно ещё подумать, планировка просто жесть, 

есть варианты конечно , но думаю что нехорошие ((  

со стенами нельзя ничего сделать всё есть как есть

На сайте c 17.12.2009
Сообщений: 8091
РЕГИОН 13
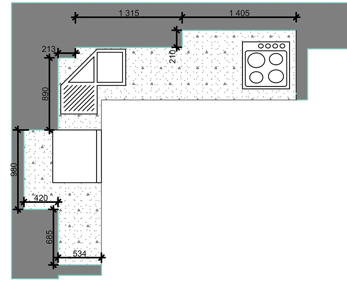
на первом плане плиту у стенки можно не ставить. Лучше, если по обеим краям от нее будет свободное место.
Активность: 0
На сайте c 07.06.2018
Сообщений: 3
так ведь на рендере так и есть, с обеих сторон свободное места,,но им не понравилось
На сайте c 05.01.2012
Сообщений: 728
Бетонный артефакт

Если руководствоваться рациональным подходом, то здесь более уместна другая концепция:

https://www.youtube.com/watch?v=4VhJAguFtQU 

Глубины хватит.

На сайте c 14.07.2017
Сообщений: 405
if.ua

Может так

На сайте c 04.11.2012
Сообщений: 67

Извиняюсь за кривые почеркушки, я бы думала в какую-то такую сторону, если планировка позволяет. Ну только высокие модули в верхнем правом углу слишком уж глубокие получаются, рукой будет сложно достать. Либо зашить за ними, чтобы фасады модулей были вровень с кухней, либо "утопить" их относительно фасадов остальной части кухни. Конечно рабочей поверхности маловато и цикл нарушен, но плюсы у такой планировки тоже есть.

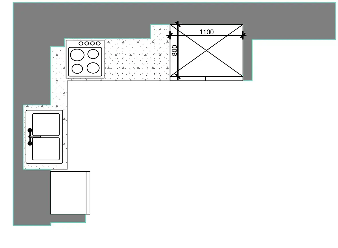
Ну и вариант, который предложил Hold_on интересный

Читают эту тему: