ArchiCAD Инструмент Чертеж.

Автор
Сообщение
На сайте c 28.07.2008
Сообщений: 11

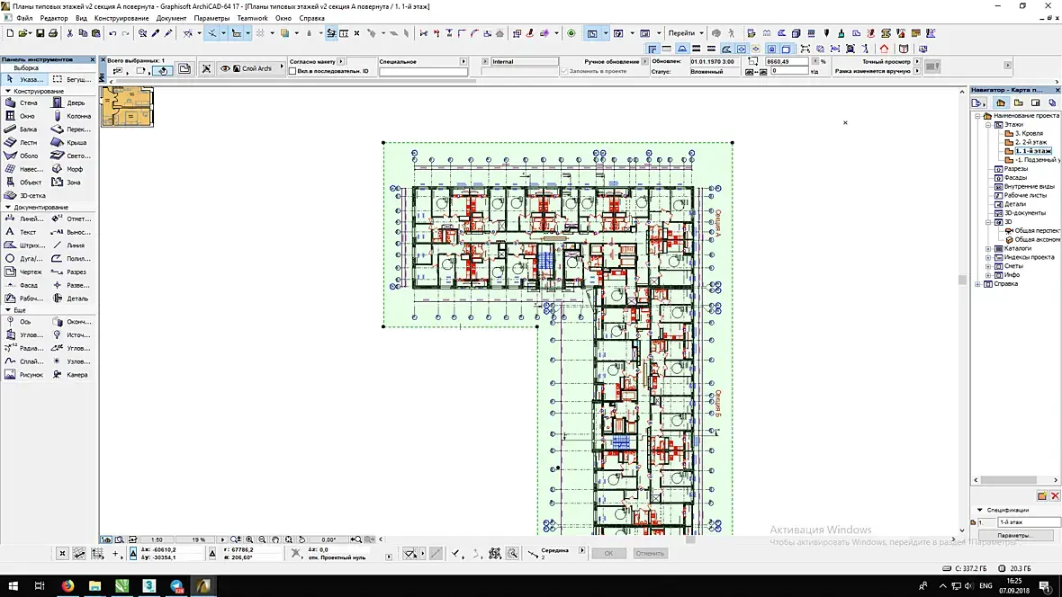
У меня есть план этажа который судя по всему интегрирован в архикадовский файл с помощью инструмента "Чертеж". Можно ли этот чертеж сделать редактируемым, что бы можно было полноценно работать с его элементами, с осями, с размерами, со стенами и т.д.

Если да, то подскажите пожалуйста как?

На сайте c 26.09.2006
Сообщений: 5355
Белокаменная
Цитата Renski:
У меня есть план этажа который судя по всему интегрирован в архикадовский файл с помощью инструмента "Чертеж". Можно ли этот чертеж сделать редактируемым, что бы можно было полноценно работать с его элементами, с осями, с размерами, со стенами и т.д. Если да, то подскажите пожалуйста как?

Скорей всего не возможно это полноценно редактировать. В лучшем случае как плоский чертеж.

Выделите его и примените меню Редактор--> Изменить Форму--> Декомпозировать в Текущем виде (Crtl + =)

На сайте c 28.07.2008
Сообщений: 11
Цитата sagava:
Выделите его и примените меню Редактор--> Изменить Форму--> Декомпозировать в Текущем виде (Crtl + =)

Спасибо! Так тоже пойдет)
Читают эту тему: