Чертежи для дизайн проекта

Автор
Сообщение
На сайте c 05.08.2016
Сообщений: 14

Здравствуйте.

Я Александр.

Закончил строительный техникум по специальности "Строительство и эксплуатация зданий и сооруженй" в данный момент учусь на высшее оброзование "Строитель ПГС" .Подготовлю полный пакет чертежей и разверток  к Вашему дизайн проекту . Работаю в программе ArchiCAD- 20. Удаленное сотрудничество.Цена за 1 кв.м 200р. Сроки выполнения индивидуальные.

Почта shef4enko1@mail.ru

На сайте c 06.02.2012
Сообщений: 958
Калининград
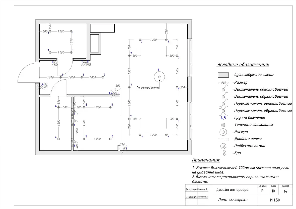
А вы уверены, что светильники на лоджии над головой на уровне 1500 нормально?
На сайте c 05.08.2016
Сообщений: 14
Да
На сайте c 09.05.2016
Сообщений: 1203
Ukraine. Kiev.
Цитата shef4en:
Да

Консоль большая, маловато будет, в голову напечёт.

На сайте c 15.06.2010
Сообщений: 774
Димитровград
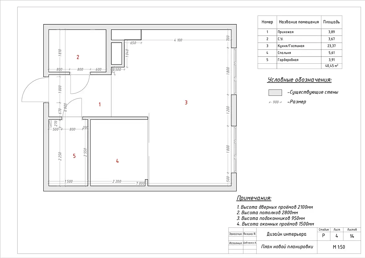
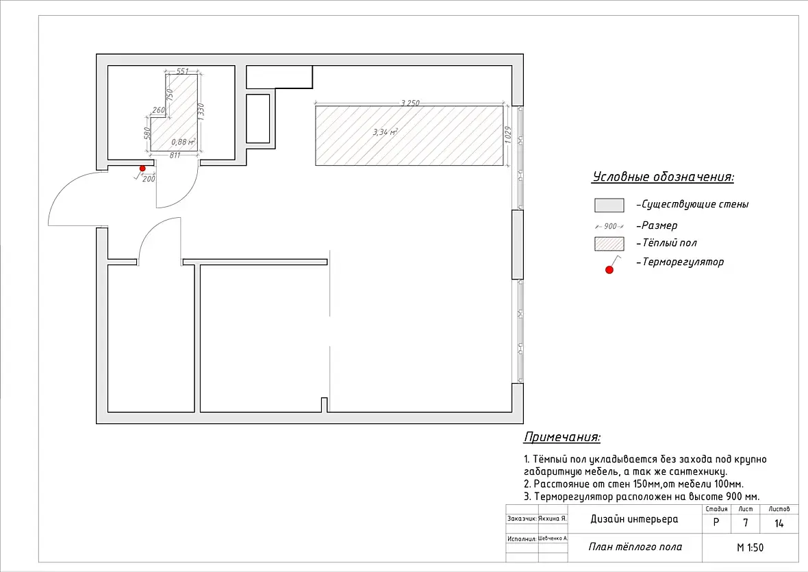
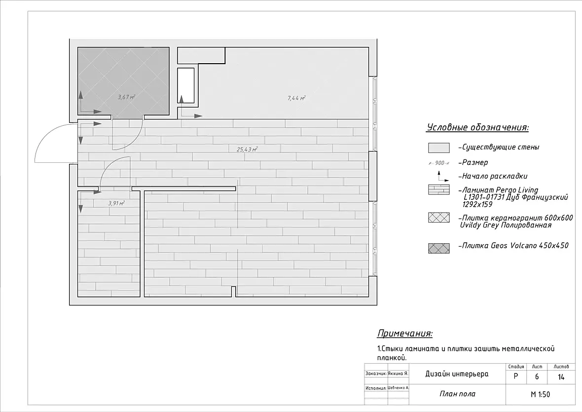
А мне глаз режет, что во многих местах размерные цепочки пересекаются. Даже там, где их растащить - пустяк.
На сайте c 05.08.2016
Сообщений: 14

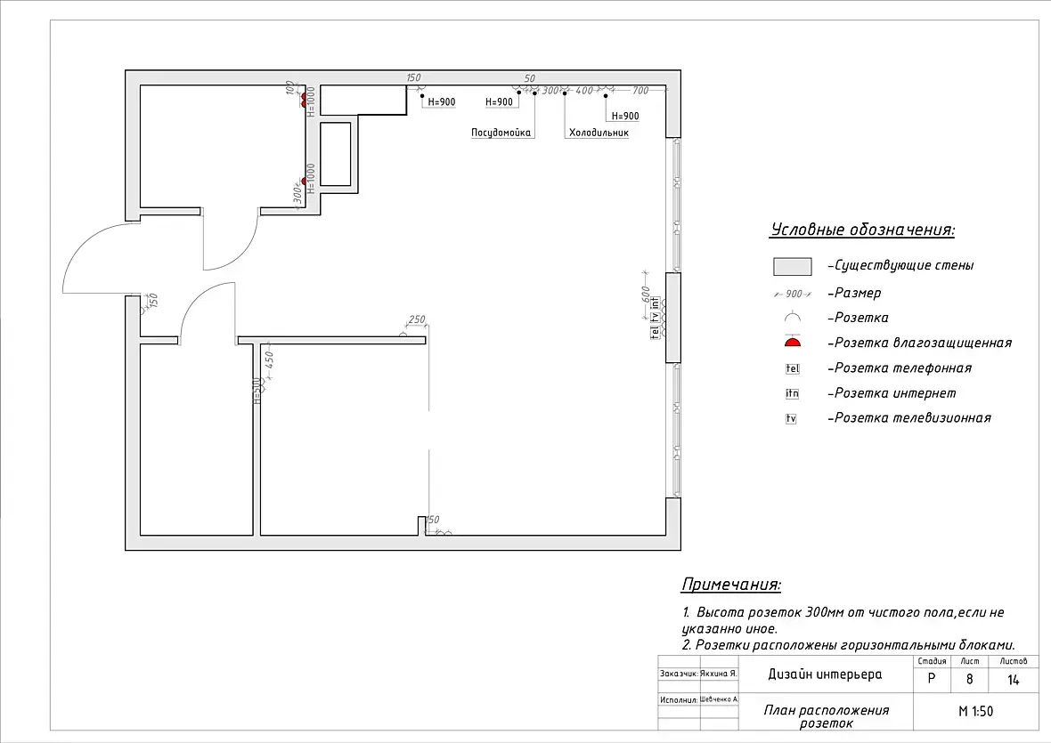
Главное чтоб размеры понятны были.

+

Читают эту тему: