Госты и снипы

Автор
Сообщение
На сайте c 28.12.2007
Сообщений: 36
Ставрополь

Здравствуйте!

Скажите, пожалуйста, какие Госты и снипы нужны дизайнеру интерьеров?

Где их взять?

Вопрос может и тупой, но я, с образованием дизайнера художественного училища, понятия не имею какие это госты и снипы и где их читать.

Надеюсь на Ваши открытые ответы, хотя и похохотать от души можете, но только не мне в комментариях!

На сайте c 08.12.2009
Сообщений: 653
Воронеж
Только боевая практика и возможно правила перепланировки квартир и эти правила часто дополняются и меняются. И конечно эргономику надо знать.
На сайте c 17.03.2020
Сообщений: 3759
spb
сможете уточнить, для каких целей вам они нужны? или в чем у вас без них затык?
На сайте c 02.07.2014
Сообщений: 4507
Ярославль, Москва
ТС, думаю вам и Нойферта хватит, для начала.
На сайте c 25.02.2009
Сообщений: 2760
Липецк

Ща научу )

в зависимости от объекта вводите в поиске:

"санпин..... жилые здания/общественные здания/общественное питание/медицинские учереждения (возможно и другое. по обстоятельствам)"

затем санпин меняете на СНиПы и СП.  Помимо перечисленного добавляется "индивидуальные жилые дома/Противопоржарные нормы/ Газораспределительные системы/Газовое оборудование"  Ну и далее всё по аналогии.

Если интерьеры - то наверное не лишним "водопровод и канализацию" добавлять.

На сайте c 28.12.2007
Сообщений: 36
Ставрополь

Цитата lnnleon:
Только боевая практика и возможно правила перепланировки квартир и эти правила часто дополняются и меняются. И конечно эргономику надо знать.

Да, это всё есть у меня. Уж работаю с 2009. Я хочу знать. 

Цитата Kaiwas:

Ща научу )

в зависимости от объекта вводите в поиске:

"санпин..... жилые здания/общественные здания/общественное питание/медицинские учереждения (возможно и другое. по обстоятельствам)"

затем санпин меняете на СНиПы и СП.  Помимо перечисленного добавляется "индивидуальные жилые дома/Противопоржарные нормы/ Газораспределительные системы/Газовое оборудование"  Ну и далее всё по аналогии.

Если интерьеры - то наверное не лишним "водопровод и канализацию" добавлять.

Спасибо! Так и ищу. Думала, что есть чёткое их издание, в виде отдельной книги, или даже если в Интернете, то какой-то сайт за это отвечающий, и там всё по полочкам. 

Цитата madYuppie:
сможете уточнить, для каких целей вам они нужны? или в чем у вас без них затык?

Затыка нет. Чтобы знать все эти правила, для того чтобы правильно делать свое дело, чтобы защитить себя от недобросовестных заказчиков, которые любят получить работу бесплатно, придираясь ко всему. И вообще, это ведь уровень профессионала. 

На сайте c 17.03.2020
Сообщений: 3759
spb

Нет такого. Они же меняются регулярно, новые редакции выходят, даты начала и окончания действия надо учитывать. Навскидку (без ПЗЗ, РНГП и МНГП) в постоянной работе штук 40 этих документов.

На сайте c 16.12.2010
Сообщений: 1257
EU
Цитата Tanisya:
Госты и снипы

Ну вот, еще какие-то новые гендеры придумали.

Дизайнеру интерьера нужно уметь втираться к застрощикам, общаться с заказчиками и дружить с хорошим чертежникомsmiley-spiteful.gif

На сайте c 21.08.2013
Сообщений: 4038
Не резиновая
На Консультант +, купите подписку и будете курсе всех ном? с последними редакциями.
На сайте c 08.02.2018
Сообщений: 2484
:адуктО

Цитата Tanisya:
Уж работаю с 2009. Я хочу знать. 

Всё знать не нужно. не Ваша сфера деятельности. Просто представлять кто из специалистов за что отвечает. Или Вы за ГИПа решили работать еще и без лицензий? smiley-lol.gif

Цитата madYuppie:
в постоянной работе штук 40 этих документов.

это точно для "дизайнера интерьеров"? smiley-crazy.gif

На сайте c 17.03.2020
Сообщений: 3759
spb
Цитата gunslinger:
Дизайнеру интерьера нужно уметь втираться к застрощикам, общаться с заказчиками и дружить с хорошим чертежникомsmiley-spiteful.gif

главное умение - предлагать реализуемые решения :)))

На сайте c 23.05.2008
Сообщений: 128
Севастополь

Цитата Tanisya:
Где их взять?

в советском союзе

после развала института семьи начали делать не обдуманно и не разумно

На сайте c 28.12.2007
Сообщений: 36
Ставрополь

Благодарю всех! Спасибо! Ощущение, что я недоуч, пропало. Ведь я в Воронеже обратилась в Архитектурный Университет несколько лет назад с вопросом, какие дисциплины изучают архитекторы. Меня стали водить по аудиториям, и я увидела, что моё образование в Художественном Училище на дизайнера арх. -простр. среды в Ставрополе намного сильнее, чем их. А на вопрос, кто прочитает конструкции зданий и сооружений, ответили, что отдают всё инженерам.

Откуда появилось моё рвение знать всё в свой области, сейчас много курсов, которые так и поливают всех дизайнеров, которые не знают Гостов и Снипов. 

Цитата График:

Цитата Tanisya:
Где их взять?

в советском союзе

после развала института семьи начали делать не обдуманно и не разумно

Что за страшная планировка? 

Цитата ck_petya:
ТС, думаю вам и Нойферта хватит, для начала.

Это всё знаю. Спасибо! 

На сайте c 02.07.2014
Сообщений: 4507
Ярославль, Москва

В вашей сфере больше и не надо. 

А если в вашем Архитектурном Университете не преподают архитекторам банальный техмех и кзс, то тогда это не Университет, а недоразумение.

На сайте c 17.03.2020
Сообщений: 3759
spb
Цитата wosserOne:

Цитата madYuppie:

в постоянной работе штук 40 этих документов.

это точно для "дизайнера интерьеров"? smiley-crazy.gif 

Таки я не совсем дизайнер интерьеров тащемта :) Но и в дизайне соблюдение оных - актуально для нормальных объектов.

Базовые понятия (от них развивается все остальное) - ФЗ-123 (Технический регламент о требованиях пожарной безопасности), ФЗ-384 (Технический регламент о безопасности зданий и сооружений), СанПиН 1.2.3685-21 (Гигиенические нормативы и требования к обеспечению безопасности среды обитания)

Пожарная безопасность - СП 1.13130.2020 (Системы противопожарной защиты. Эвакуационные пути и выходы), СП 2.13130.2020 (Системы противопожарной защиты. Обеспечение огнестойкости объектов защиты), СП 4.13130.2013 (Системы противопожарной защиты. Ограничение распространения пожара), СП 7.13130.2013 (Отопление, вентиляция и кондиционирование. Требования пожарной безопасности), СП 456.1311500.2020 (Многофункциональные здания. Требования пожарной безопасности)

Конструкции и инж. системы - СП 29.13330.2011 (Полы), СП 30.13330.2020 (Внутренний водопровод и канализация зданий), СП 60.13330.2020 (Отопление, вентиляция и кондиционирование воздуха), СП 402.1325800.2018 (Здания жилые. Правила проектирования систем газопотребления), ПУЭ

по гипсокартонам и гипсоволокну - СП 163.1325800.2014 (Конструкции с применением ГКЛ и ГВЛ листов. Правила проектирования и монтажа), + документы и альбомы технических решений Кнауф

Требования к зданиям и помещениям разных типов - СП 44.13330.2011 (Административные и бытовые здания), СП 54.13330.2022 (Здания жилые многоквартирные), СП 118.13330.2022 (Общественные здания и сооружения + там в конце есть доп. список по более детализированным нормативам для конкретных типов зданий), СП 160.1325800.2014 (Здания и комплексы многофункциональные. Правила проектирования)

Инвалиды и связанное с ними - СП 59.13330.2020 (Доступность зданий и сооружений для ММГН), СП 136.13330.2012 (Здания и сооружения. Общие положения проектирования с учетом доступности для ММГН), СП 137.13330.2012 (Жилая среда с планировочными элементами, доступными инвалидам)

Санитарные требования - СП 2.2.3670-20 (Санитарно-эпидемиологические требования к условиям труда), СП 51.13330.2011 (Защита от шума), СП 52.13330.2016 (Естественное и искусственное освещение)

Для индивидуалов - СП 55.13330.2016 (Дома жилые одноквартирные), СП 31-106-2002 (Проектирование и строительство инж. систем одноквартирных жилых домов)

Состав и оформление проектной документации - Постановление Правительства 87 (О составе разделов проектной документации и требованиях к их содержанию), ГОСТ Р 21.101-2020 (СПДС - Основные требования к проектной и рабочей документации)

Есть еще для эстетов - ГОСТ Р ИСО 11064 (Эргономическое проектирование центров управления) - эргономика сидячего рабочего места, с углами обзора, доступа и пр. - фундаментальное руководство.

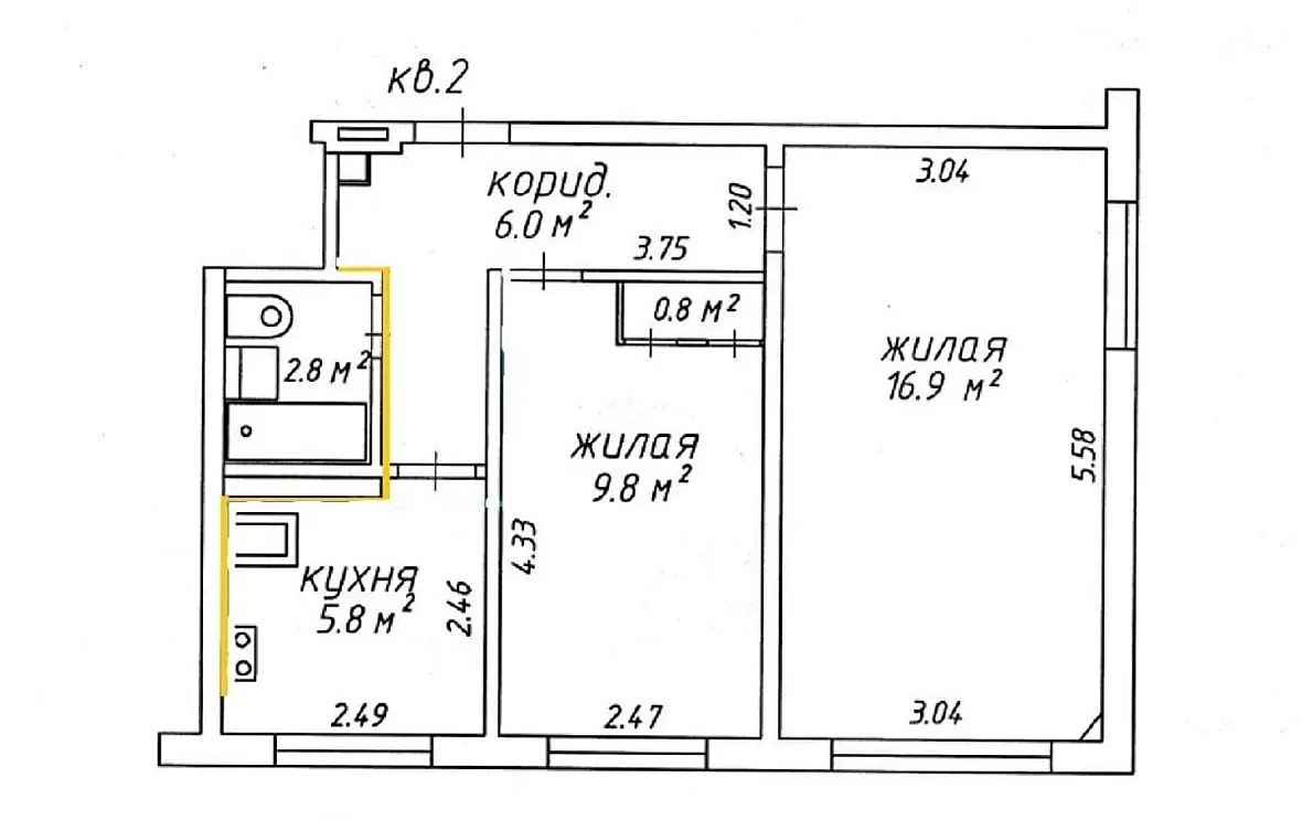
Цитата Tanisya:

Что за страшная планировка? 

навскидку похоже на панельную серию 1-464А, образца 1957-1959 гг. разработки. Все стены (кроме перегородки между коридором и санузлом) несущие

На сайте c 23.05.2008
Сообщений: 128
Севастополь
Цитата Tanisya:
Что за страшная планировка? 

не нормальная Вы хотели сказать

а вот, то что строят в данный момент

На сайте c 17.03.2020
Сообщений: 3759
spb
График, вы какую мысль донести хотите уже не первую попытку? :)
На сайте c 19.02.2016
Сообщений: 2305
Москва
Цитата Tanisya:
Что за страшная планировка? 

Made in USSR, в брежневке 1970 года похожая планировка, отличается только разделением санузла на ванную и туалет, и метраж комнат побольше на 2-3 м2. Госты и Снип'ы берёте советские, также сходите в БТИ своего города и закажите Тех.Заключение на свою квартиру, там указаны они будут, где и как прошли.

Снип'ы и Гост'ы редакции позже 2005 года не берите - скам редактируемый на коленке до сих пор. По нынешним новостройкам оно и видно.

На сайте c 23.05.2008
Сообщений: 128
Севастополь

Цитата madYuppie:
вы какую мысль донести хотите

что то мы как то под застройщиков плясать начали

Цитата Exengineer:
позже 2005

Вы хотели сказать позже 1913

На сайте c 17.03.2020
Сообщений: 3759
spb
Цитата График:

что то мы как то под застройщиков плясать начали

Цитата Exengineer:

позже 2005

Вы хотели сказать позже 1913

Архитектура в принципе работает на выполнение техзадания и требований того, кто ей платит. Если не работает, то меняют или архитектуру, или архитектора. Это я вам как девелопер сообщаю :))

Если уж говорить за так называемые "старые золотые времена", то выньте из рота французскую булку, уши от хруста болят :) В тех периодах было жестокое разделение населения по сословному и экономическому признаку, соответственно в городах в более-менее приемлемых жилищных условиях жило процентов 15 населения, у остальных ПЦ разной степени. Жилье не было доступно массово. Нормативов как таковых не было, не проводилась систематическая научная работа по санитарным, пожарным, инженерным вопросам, проблемы сопромата и строительной механики были разрешены по большому счету только после Второй Мировой войны. Засим апеллировать к богатым просторным домам (сохранились они, бедную застройку посносили и пожгли на корню) - как минимум демонстрировать неосведомленность. Можно, с другой стороны, натыкать во дворы-колодцы этих же богатых-просторных домов.

Жилищный вопрос как-то начал решаться только после 50-х годов. В Штатах пошли в субурбию (это тупик), в Европе в массовую многоэтажную застройку (при капитализме это тупик), в соцлагере - в массовую многоэтажную застройку (стало тупиком после перехода в капитализм).

Читают эту тему: