Какой вариант вам больше нравится

Автор
Сообщение
На сайте c 02.05.2014
Сообщений: 376

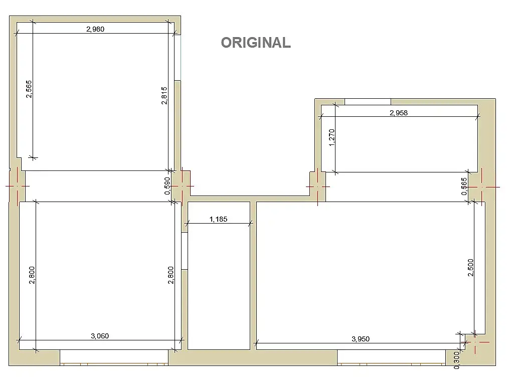
Здесь должны быть две спальни для подростков, (JPG ORIGINAL)все как есть на данный момент,

хотят минимальные изменения стен, лучше без изменений

1.В обеих спальнях должен быть playstation , письменный стол, на одном ещё и пианино, а на другом кровать хотят полтора и рядом с телевызром маленький диванчик.

Вот что у меня получилось, какая версия вам больше нравится и что вы бы изменили

На сайте c 20.03.2018
Сообщений: 1
Budapest
Рекомендую в левой комнате диван поставить на левую стену, а телек при входе на правую. Вы диваном закрываете весь проход.
На сайте c 02.05.2014
Сообщений: 376

cattle_lera

но  в противном случае стул письменного стола будет не удобно использовать 

На сайте c 21.05.2016
Сообщений: 127
А во втором варианте это ступеньки?
На сайте c 10.12.2009
Сообщений: 1661

Письменный стол поставить прям перед окном везде. 

Размещать стол таким образом как в левом верхнем помещении нельзя. свет должен падать либо спереди либо слева сидящего (если он конечно правша).

На сайте c 28.09.2006
Сообщений: 4446
Москва / Дубай
В последнем варианте потеря места в правом нижнем углу
На сайте c 09.09.2013
Сообщений: 104
Баку

Читают эту тему: