Планировка в процессе

Автор
Сообщение
На сайте c 02.05.2014
Сообщений: 376

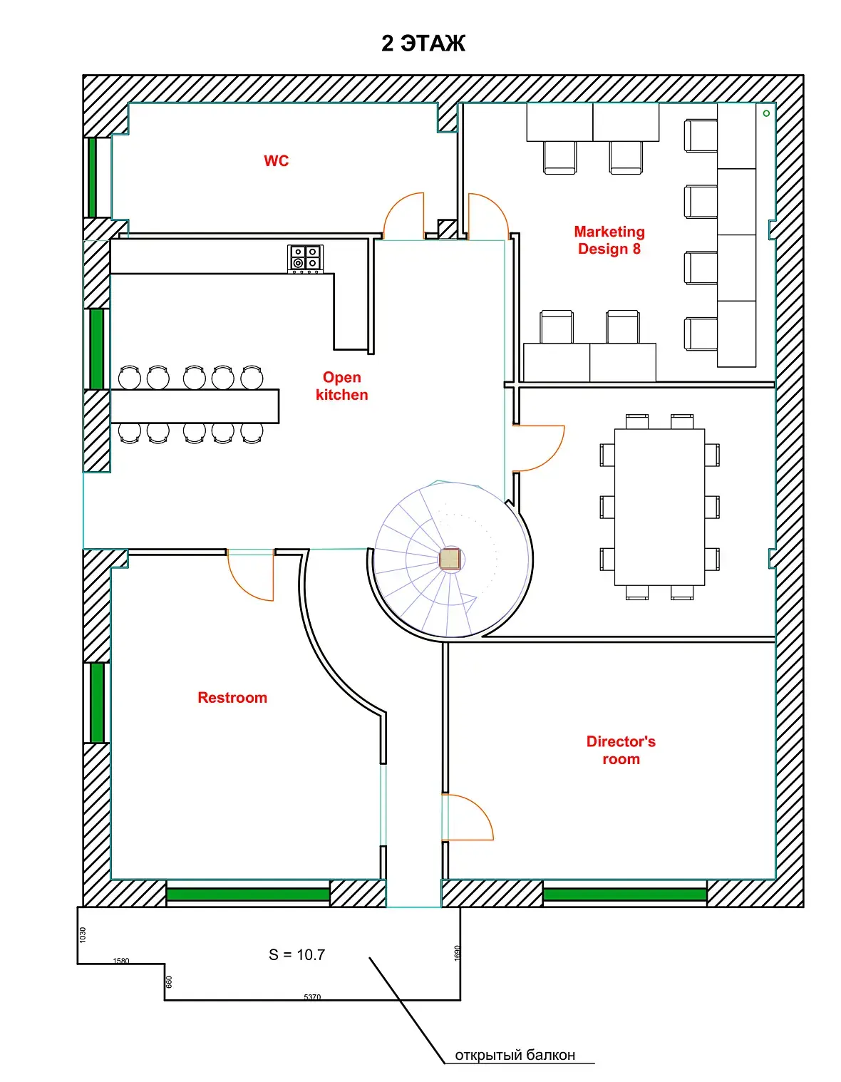
коллеги пожалуйста критикуйте пока что только планировка (ещё в процессе)и есть что то вроде технической задачи , на бумажке , примерно показано что должно поместиться на первом и на втором этаже.

и уже архикадом наша планировка 

Будет офис 

На сайте c 28.02.2017
Сообщений: 2978
Omsk
Маркетинг дизайнеры в углах скажут большое спасибо...
На сайте c 13.07.2018
Сообщений: 73
Ukraine
Человеку комфортнее всего работать когда он находится спиной к стене,а не к открытому пространству.
На сайте c 08.08.2008
Сообщений: 258
Москва
Норма рабочего места на человека в офисе - 4,5 кв м. На картинках полный треш и жлобское отношение к людям. Из такой шкуры 7 шапок не сошьётся, с натягом опен-спейс можно вытянуть.
На сайте c 26.09.2006
Сообщений: 5319
Белокаменная
Кухня для гномиков?
На сайте c 02.05.2014
Сообщений: 376

Mitridat

Про эти нормы я в курсе, но если хотят 30 с лишним работников поместить + комната отдыха , конференц зал, комната директора, не считая кухнию и санузел, то получается как то так..

по любому работа в процессе ) послушаю вашу критику

да, еще и склад, сервер рум, место для быстрого изготовление  кофе рядом с резепшном..

На сайте c 18.05.2017
Сообщений: 85
Moscow
Цитата Nebrovt:

Mitridat

Про эти нормы я в курсе, но если хотят 30 с лишним работников поместить + комната отдыха , конференц зал, комната директора, не считая кухнию и санузел, то получается как то так..

по любому работа в процессе ) послушаю вашу критику

да, еще и склад, сервер рум, место для быстрого изготовление  кофе рядом с резепшном..

Почему все работники на первом этаже?

ps. Секретарю можно поставить капсульную кофемашину. Места почти не занимает.

На сайте c 25.10.2009
Сообщений: 996
Сочи

Не пойму, а как лестница-то с колонной в центре оказалась?

Да, колонна там нужна, и действительно именно там, но ведь именно она принимает нагрузку с перекрытия. На нее обопрутся ригели, и лестница там не встанет.

Момент два. По винтовой лестнице не представляется возможным затащить гигантский стол из переговорки и любую крупную мебель.

Момент три - почему стулья на первом этаже в два раза крупнее стульев на втором (в кухне и переговорке)?

В общем, с масштабом и конструктивом совсем неясно. 

На сайте c 25.06.2010
Сообщений: 1
Это фиаско, братан
На сайте c 09.07.2011
Сообщений: 303
Цитата Agapova:
По винтовой лестнице не представляется возможным затащить гигантский стол из переговорки и любую крупную мебель.

То что по винтовой нельзя занести мебель -то еще не проблема, при некоторой сноровке можно и краном подать через окно. :)

А вот то что винтовая лестница не годится для эвакуации - это другое.

А вообще по планировке - лучше, пожалуй, начать с чистого листа.

На сайте c 25.10.2009
Сообщений: 996
Сочи
Цитата Engineer_Sergii:

А вообще по планировке - лучше, пожалуй, начать с чистого листа.

Тоже такого мнения придерживаюсь. Слишком много технических недочетов, чтобы исправить простой перестановкой столов или стульев.

На сайте c 09.07.2011
Сообщений: 303

Там вообще нужно начать с того, чтоб пересмотреть ТЗ.

То что заказчик хочет чтоб все было "как в офисе Гугла или Эйпл" это конечно хорошо. Но для этого и здание нужно соответствующего размера.

Пусть лучше у людей будут нормальные рабочие места чем комната отдыха

На сайте c 08.08.2008
Сообщений: 258
Москва
Цитата Nebrovt:

Mitridat

Про эти нормы я в курсе, но если хотят 30 с лишним работников поместить + комната отдыха , конференц зал, комната директора, не считая кухнию и санузел, то получается как то так..

по любому работа в процессе ) послушаю вашу критику

да, еще и склад, сервер рум, место для быстрого изготовление  кофе рядом с резепшном..

Пусть хотят. Первая же жалоба в трудовую инспекцию на нарушение норм СанПиПа - штраф, вторая, если нарушения не устранены - закрытие жлобской конторы. Заказчики часто бывают жадноваты и недалеки, ваша задача как проектировщика указывать на нарушение норм и настаивать на исправлении ТЗ.

Все рабочие места - максимально к окнам (это, кстати, тоже требование СанПиН), всякие комнаты отдыха, кухни и конференц-залы - можно и в темные закутки. Директору тоже окно, хоть и не заслужил.) В рабочих помещениях должны быть места для стеллажей, под оргтехнику.

Лестницу делайте там, где сейчас она есть или есть под нее проем, вряд ли там глухое перекрытие.

И вообще - с размерами было бы проще что-то советовать, так все не в масштабе из-за мебели.

На сайте c 21.02.2007
Сообщений: 3126
Странное здание. Почти без окон, причем 1й и 2й этаж не совпадают окна. Лестница вокруг колонны? Перекрытие штоле долбить? что это? ох... с матчастью видимо не очень. Лучше не показывать это никому. Вверху сфотографированный вариант более логичен, лучше его допилить, вместо стен поставить стеклянные перегородки, раз мало окон на этаже.
На сайте c 02.05.2014
Сообщений: 376

вот окончательная планировка, кому интересно.

единственная проблемка у нас будет связано удаленными панелями на место лестницы ( так как здание панельное)

вот , думаем как грамотно будет дать укрепление панелей.

 up

up

На сайте c 08.08.2008
Сообщений: 258
Москва
Надеюсь, ни один уважающий себя дизайнер, маркетолог и айтишник в эту контору работать не пойдет, и сидеть в клетушке без окон на восьмерых не будет. И компания будет наказано за жлобство и за то, что экономит на специалистах, которые не понимают, что в приоритете должен быть комфорт рабочего места - его площадь и естественное освещение, а на всякие кухни и комнаты отдыха места выделяются по остаточному принципу. Отсутствие туалета на 1-м этаже уже мелочь, да.
На сайте c 22.04.2017
Сообщений: 961
Дайте угадаю,на потолке будет Армстронг,а на стенах обои?Но помещение реально очень маленькое...некомфортно работать когда ты локтем бьешь соседа...
На сайте c 02.05.2014
Сообщений: 376

да уж...

а я Вам разве просила оценить планировку? она уже подтверждена

армстронга и обоев не будетsmiley-wink.gif

мне кажется вопрос был конкретен 

На сайте c 28.02.2017
Сообщений: 2978
Omsk
Чем дороже специалист, тем меньше помещение? Типа и так на них уже достаточно потратились? smiley-dirol.gif
На сайте c 16.05.2009
Сообщений: 580
Киев

Nebrovt, 

Вы уж меня извините, но в фразах 

Цитата Nebrovt:
единственная проблемка у нас будет связано удаленными панелями на место лестницы ( так как здание панельное) вот , думаем как грамотно будет дать укрепление панелей.

нет конкретного вопроса (даже вопросительного знака нет). Неужели Вы думаете что на форуме моделлеров-дизайнеров Вам дадут советы по демонтажу части перекрытия с последующим усилением? Даже толковые конструктора Вам не помогут основываясь на той информации, которую Вы предоставляете.

П.с. Почему лестницу винтовую сделали, а не прямую? 

Читают эту тему: