Почему нельзя снести эти стены ?

Автор
Сообщение
На сайте c 21.05.2016
Сообщений: 127

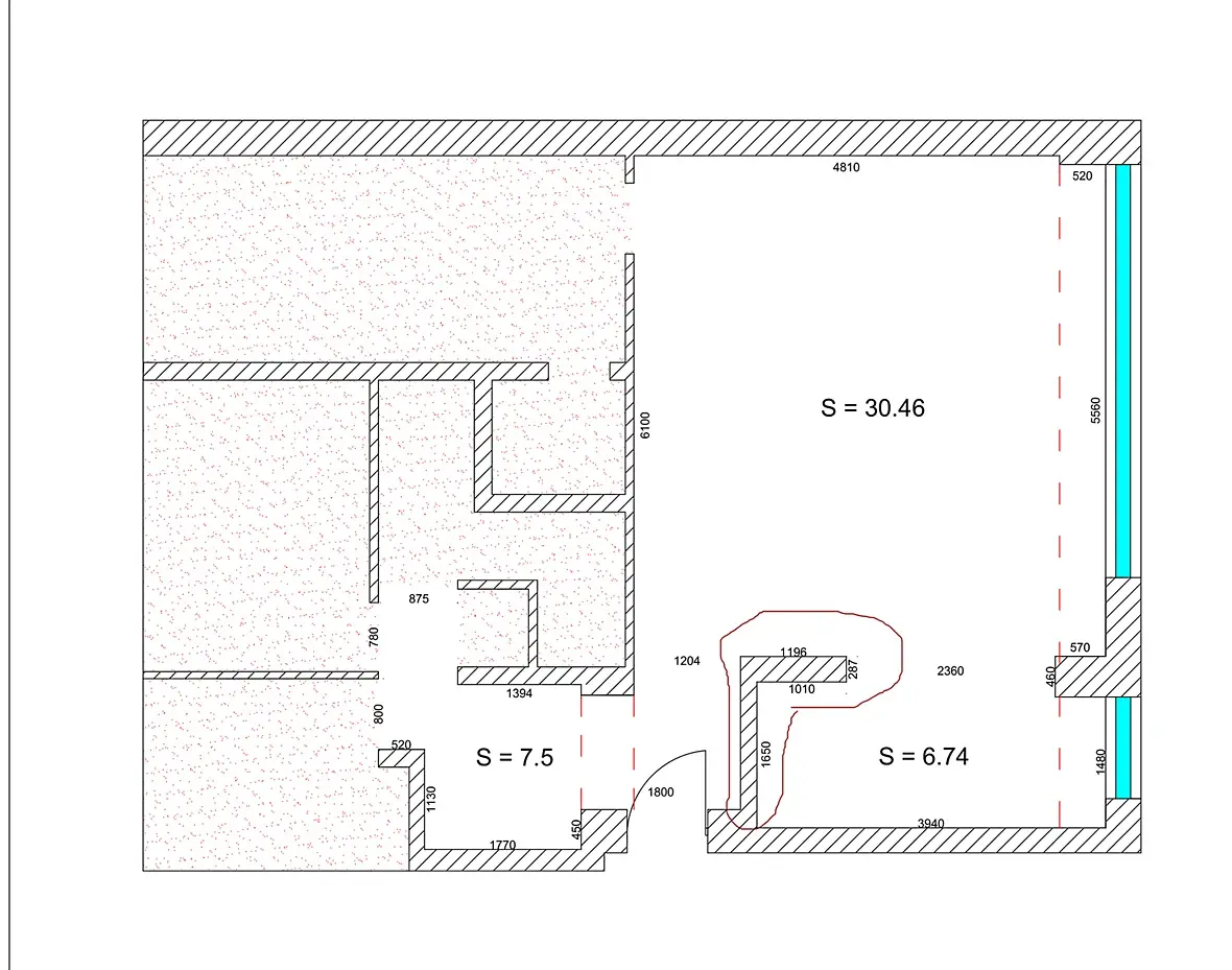
какая роль у этих стен , почему нельзя их снести ??

P.S.

Прошу очень умным архитекторам, которые себя считают профессионалами, но почему то у них есть время писать всякую гадость , так вот просьба "Вас" пройдите мимо , время - деньги .

На сайте c 23.01.2016
Сообщений: 909
Это планировка от застройщика? Что за помещение 6,74?
На сайте c 15.06.2010
Сообщений: 774
Димитровград

Я не архитектор, поэтому не могу пройти мимо!

Однажды я присутствовал при сварке конструкций на одном доме. Пока сварщик готовился к своему делу, я спросил его: "А правда, что нельзя смотреть на сварку без маски?". Он покосился на меня, ответил: "Я тебе не запрещаю!", захлопнул маску и приступил к работе.

На сайте c 25.10.2009
Сообщений: 998
Сочи

Автор, у вас каждый раз одни и те же вопросы) Вы б за это время уже на архитектора выучились.

Ищите на плане глазами размер, близкий к шести метрам: наша советская школа еще не скоро выветрится из головы у проектировщиков, поэтому 6 метров - это шаг несущих конструкций. Судя по этой чупакабре, это бетон, верно? Если да, то горизонтальные на плане стены несут нагрузку, а отросток обведенный - ребро жесткости. Иногда конструкторы добавляют на планы такие углы, чтобы здание при сейсмике не завалилось набок нафиг). Архитектор этого очень не хотел (100%), но пришлось, потому что мы не умеем считать иначе. 

Сносить нельзя. Только штробы под розетки, и то, ковырять пилочкой для ногтей.

На сайте c 21.05.2016
Сообщений: 127
Спасибо Вам очередной раз)
На сайте c 09.07.2007
Сообщений: 385
Калининград
Цитата Agapova:

Автор, у вас каждый раз одни и те же вопросы) Вы б за это время уже на архитектора выучились.

Ищите на плане глазами размер, близкий к шести метрам: наша советская школа еще не скоро выветрится из головы у проектировщиков, поэтому 6 метров - это шаг несущих конструкций. Судя по этой чупакабре, это бетон, верно? Если да, то горизонтальные на плане стены несут нагрузку, а отросток обведенный - ребро жесткости. Иногда конструкторы добавляют на планы такие углы, чтобы здание при сейсмике не завалилось набок нафиг). Архитектор этого очень не хотел (100%), но пришлось, потому что мы не умеем считать иначе. 

Сносить нельзя. Только штробы под розетки, и то, ковырять пилочкой для ногтей.

Не советская школа, а самый распространенная (а значит дешевая) плита перекрытия как раз и есть 6 метров. Можно больше, но уже дороже. 

На сайте c 25.10.2009
Сообщений: 998
Сочи
Цитата staskenig:

Не советская школа, а самый распространенная (а значит дешевая) плита перекрытия как раз и есть 6 метров. Можно больше, но уже дороже. 

Да не) такую неземную красоту у нас на юге России обычно ваяют. Может, еще где-то. Дом скорее всего монолитный, из бетона. Т.е. там не ПП, а монолитное перекрытие, которое можно лить как угодно. Поэтому боюсь, что дело именно в старой закалке.

На сайте c 09.05.2016
Сообщений: 1203
Ukraine. Kiev.
Цитата Sergo Green:
Прошу очень умным архитекторам, которые себя считают профессионалами, но почему то у них есть время писать всякую гадость , так вот просьба "Вас" пройдите мимо , время - деньги .

Уважаемый Серёжа, который зелёный. Во первых смените ник, два года. как я понимаю на форуме, как я понимаю- минимум два года тем же занимаемся. Вопросы- те же, более чем глупые. Даже терминологию не осилили. Так вот, скажу вам так.

Вы с чем припёрлись? С малюнком. Повесьте на стену и любуйтесь. Принесите нормальный план. По госту ( возьмите у прораба наконец ), или хотя бы штриховки распишите. Чтоб конструкции понимать. опишите материалы конструкций, если перекрытие круглопустотка- хотя бы укажите направление. Никто по этому малюнку, совета не даст. Экстрасенсор- то другая область.  Я вас умоляю, займитесь своим образованием, или перестаньте терроризировать сообщество. 

Agapova Добрый Вы человек. Но ведь Вы ошибиться можете. А какой то дурак возьмёт и сделает- оно Вам надо. 

На сайте c 09.05.2016
Сообщений: 1203
Ukraine. Kiev.
Цитата Sergo Green:
я написал постскриптум специально для вас

Уважаемый, я серьёзный архитектор, а не самоправозглашенный. Если хотели получить ответ, конкретно от меня- вы его получили. Надеюсь максимально кратко и доходчиво. Хотите проф совета- задавайте проф вопросы. С удовольствием помогу. 

А так я вижу, "дизинера" не более. С весьма завышенной самооценкой. Весьма сомневаюсь, что то что ты такое смог бы сказать, если бы твой фейсик находился в радиусе действия моего кулака.

На сайте c 25.10.2009
Сообщений: 998
Сочи
Цитата Arch-magic:

Agapova Добрый Вы человек. Но ведь Вы ошибиться можете. А какой то дурак возьмёт и сделает- оно Вам надо. 

Могу. Поэтому и написала автору, что если это бетон - то не трогайте. Застройщик не будет случайно лить стены из бетона. Вангую, что помещение 6,74 - это кухня, и где-то там должен быть стояк. И что конструктор не потратил много времени на расчет.  

Автору советую не обижаться на Arch-magic. Он резко сказал, но по делу. Либо фото прикладывайте, либо ссылку на жилой комплекс. Потому что план и правда выглядит крайне странно с пятью разными толщинами стен.

На сайте c 04.07.2016
Сообщений: 183

Не могу пройти мимо:

ужас, вот так читаешь строки, столько напыщенности у некоторых, вот, вот и сейчас как лопнет пузырь чсв, да всех забрызгает smiley-biggrin.gif

На сайте c 28.07.2013
Сообщений: 1615
KZ17
Народ устал от  тишины выходных... Требуется треш.
На сайте c 23.03.2009
Сообщений: 1080
Цитата Arch-magic:
находился в радиусе действия моего кулака.

И чертёж такой с проставленными размерами строго по ГОСТуsmiley-biggrin.gif

На сайте c 23.01.2016
Сообщений: 909
Автору никакая помощь, видимо, не нужна, раз даже на мой уточняющий вопрос не хочет ответить.
На сайте c 09.05.2016
Сообщений: 1203
Ukraine. Kiev.

Agapova

Вы милая девушка. Но понимаете в чём дело. Такими советами, вы не даёте умереть с голоду различным дуракам, более того- способствуете их размножению. Бог бы с этим, но тем самым, возможно подвергаете опасности имущество, а то и жизнь совершенно ни в чём не повинных граждан. Снесёт этот спец стену ( ума хватит)- вызовет обрушение перекрытия. Такой вариант вполне вероятен. Вы пишете- если это бетон, я его посты читал, да он похоже не знает что такое бетон. 

На сайте c 25.10.2009
Сообщений: 998
Сочи

Konstantinus он в баню ушел. С первого апреля сможет ответить. 

Выше писала, что вангую, что это кухня.

На сайте c 16.03.2015
Сообщений: 55

ахах, очередная тема - "в интернетах разрешили ломать стены"

Цитата nikolart:
У Вас очень интересные темы ) А стены эти снести можно, нужно, необходимо, если не снесете жить дальше не сможете , кто Вы после этого? Сносите немедленно. Всё зависит только от Вас , мир на волоске , люди вас умоляют снести стены. Всё человечество смотрит сейчас на вас , и ждёт... ну вот и дождались , красная. Я сделал всё что было в моих силах.

В принципе добавить нечего, можно идти и ждать
подписаться на рассылку новостей мчс
На сайте c 25.10.2009
Сообщений: 998
Сочи
Arch-magic а если он снесет стену, не ответь ему никто? Будут тут молчать - пойдет на форум домохозяек, и уж там ему насоветуют. Про пролеты и про то, на что обращать внимание в планировке , когда не уверен, пишу автору уже не в первой, и по-моему даже не в третьей теме. Наивно полагаю, что научится и не будет делать грубых ошибок.
На сайте c 09.05.2016
Сообщений: 1203
Ukraine. Kiev.
Цитата Agapova:
Arch-magic а если он снесет стену, не ответь ему никто? Будут тут молчать - пойдет на форум домохозяек, и уж там ему насоветуют. Про пролеты и про то, на что обращать внимание в планировке , когда не уверен, пишу автору уже не в первой, и по-моему даже не в третьей теме. Наивно полагаю, что научится и не будет делать грубых ошибок.

Да пусть туда и ходят, именно там им и место. А у нас совесть будет чиста. Другое дело, пришёл человек, с пониманием- что он собирается делать. Вооруженный соответствующими материалами. Он чётко понимает- что это советы, которые нужно перепроверить, а не руководство к действию. 

На сайте c 06.10.2006
Сообщений: 86
Москва


спам

Дата выдачи:
06.08.2024 17:58:08


Пожизненный бан

Был случай, владельцы трешки в панельке снесли все стены (типа свободная планировка).

Время проведенное в квартире осталось в памяти навсегда.

Беспрерывно трясло, старался дышать через раз.

Читают эту тему: