помогите советом по расстановке света на плане начинающему дизайнеру

Автор
Сообщение
На сайте c 07.11.2023
Сообщений: 10

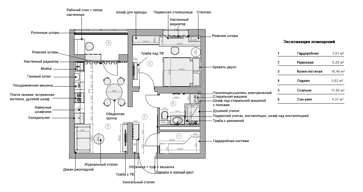
у меня в проекте накладные светильники, достаточно ли их на плане, нормальное будет освещение? за основу беру лампочку 9 Вт, теплый свет 2700К. 
просто где-то вижу много светильников ставят, где-то мало, немного не понимаю пока что

На сайте c 08.02.2018
Сообщений: 2499
:адуктО

грубо: средняя освещённость - 9Вт без плафона (3 шт) на 10 м²  (темное дерево пол и мебель), H=2,7 м, либо 4 штуки для более яркого общего освещения. Если надо ещё более  яркое освещение - это ещё + 2 лампочки.

но это всё ещё не как в торговом зале с металлогалогеном )) тогда это надо ещё в 2-3 раза умножить

План неправильный кста. Надо совмещать расстановку светильников и оборудование помещений (мебель и остальное). оборудование показывать слабым серым чтобы еле видно было.

На сайте c 07.11.2023
Сообщений: 10
Цитата wosserOne:

Спасибо! 

грубо: средняя освещённость - 9Вт без плафона (3 шт) на 10 м²  (темное дерево пол и мебель), H=2,7 м, либо 4 штуки для более яркого общего освещения. Если надо ещё более  яркое освещение - это ещё + 2 лампочки.

но это всё ещё не как в торговом зале с металлогалогеном )) тогда это надо ещё в 2-3 раза умножить

План неправильный кста. Надо совмещать расстановку светильников и оборудование помещений (мебель и остальное). оборудование показывать слабым серым чтобы еле видно было.

На сайте c 08.02.2018
Сообщений: 2499
:адуктО

вообще это непрофессиональное конечно расставлялово светильников - просто набросано как в торговом центре. (и состав чертежей немного не такой, но это уже о грустном ))) Освещают не всё подряд а ЗОНЫ деятельности. У тебя например вся гостинная утыкана.  А чел будет сидеть телик смотреть - ему надо? чтобы два фонаря над головой били в глаза? Я не знаю конеш, так ли у тебя, но надо разбивать по группам для этого. И по-хорошему разные типы светильников.  У тебя есть - люстра, бра  хотя бы, и то уже хорошо. Это же делится на - общий свет, локальный, фон и тд. На балконе чел будет сидеть - тень будет падать ему на рабочее место - свет сзади из-за спины. Тогда нужен настольный какой то ещё... Ну и всё в таком духе.

На сайте c 11.12.2009
Сообщений: 857
Предупреждение

https://3ddd.ru/faq/241/show

Дата выдачи:
27.05.2026 12:54:58

Действует до:
30.05.2026 00:00:00
Цитата meyanies:
за основу беру лампочку 9 Вт, теплый свет 2700К. 

Там в характиристиках светильника есть квадратный метраж освещения одного светильника. Можно на это уже ориентироваться.

Подвесная люстра над обеденным столом , идея неплохая, но не практичная. При смещении стола, а он будет постоянно ерзать туда сюда, это будет боль перфекциониста.

Точка над кроватью плохая идея, будет бить в глаза.

короче расстановка светильников здесь из разряда "а нафига нам дизайнер, если строители сами бы точно так же раскидали светильники.

Светильники , как сказали выше, должны быть в зонах жизнедеятельности и транзитных зонах.

На сайте c 08.02.2018
Сообщений: 2499
:адуктО
Цитата garik-3d:
Подвесная люстра над обеденным столом , идея неплохая, но не практичная.

😇😂 это сорян ты как 3Д-шник сейчас сообразил? )) А мы то дураки, мозайку ручной работы по полу заводили , потолочные розетки гипсовые - ручной работы заказывали под обеденную зону! )))

На сайте c 11.12.2009
Сообщений: 857
Предупреждение

https://3ddd.ru/faq/241/show

Дата выдачи:
27.05.2026 12:54:58

Действует до:
30.05.2026 00:00:00
Цитата wosserOne:
это сорян ты как 3Д-шник сейчас сообразил? )

Это я как дизайнер с 25 ти летним стажем знаю.

И не я один кстати! Любой кто не просто сдал квартиру и убежал в счастье постоплаты, а кто делает интерьер для жизни и интересуется дальнейшей судьбой проекта.

На сайте c 08.02.2018
Сообщений: 2499
:адуктО

но даже если... можно и такую тему пересообразить будет - 

На сайте c 08.12.2015
Сообщений: 316

Если хотите вообще заморочиться , кидайте сцену в DIALux. Просчитайте там свет. Попадете в нормы.

При подборе св-ков. На сайтах не "но нейм" ..конечно. Обычно выкладывают ies файлик под конкретный артикул. 

На сайте c 11.12.2009
Сообщений: 857
Предупреждение

https://3ddd.ru/faq/241/show

Дата выдачи:
27.05.2026 12:54:58

Действует до:
30.05.2026 00:00:00

Цитата wosserOne:
А мы то дураки, мозайку ручной работы по полу заводили , потолочные розетки гипсовые - ручной работы заказывали под обеденную зону! )))

ну с кем не бывает....я тоже поначалу косячил

Цитата wosserOne:

но даже если... можно и такую тему пересообразить будет - 

гораздо боле практичный вариант

На сайте c 08.02.2018
Сообщений: 2499
:адуктО

😄👍 видимо у нас уж очееень разный опыт. Я просто не представляю себе обстоятельства при которых стол должен "переезжать", если это не коммуналка какая-нибудь или хостел, тут ему переезжать мне каж просто некуда ))

На сайте c 07.11.2023
Сообщений: 10
Цитата garik-3d:
Цитата wosserOne:
это сорян ты как 3Д-шник сейчас сообразил? )

Это я как дизайнер с 25 ти летним стажем знаю.

И не я один кстати! Любой кто не просто сдал квартиру и убежал в счастье постоплаты, а кто делает интерьер для жизни и интересуется дальнейшей судьбой проекта.

я поэтому и советуюсь в таких форумах, чтобы мне дали советы опытные дизайнеры, хоть тут и ответы слегка агрессивные, а я указала, что я только начинающий дезигнер и мало прошарена) но было полезно, всем спасибо!

На сайте c 08.02.2018
Сообщений: 2499
:адуктО
Цитата meyanies:
я только начинающий дезигнер

а где сейчас начинают, начинающие? :) расскажите? просто интересно. Вам кстати не давали полный состав альбома чертежей на интерьер?

На сайте c 11.12.2009
Сообщений: 857
Предупреждение

https://3ddd.ru/faq/241/show

Дата выдачи:
27.05.2026 12:54:58

Действует до:
30.05.2026 00:00:00
Цитата wosserOne:

😄👍 видимо у нас уж очееень разный опыт. Я просто не представляю себе обстоятельства при которых стол должен "переезжать", если это не коммуналка какая-нибудь или хостел, тут ему переезжать мне каж просто некуда ))

переезжать не в другую комнату, а просто сдвигаться в пределах 20 см ....стол то не прикручен к полу! Плюс он изначально стоит так, что там сидеть будет неудобно и его постоянно!!! будут двигать, особенно когда захотят туда посадить больше 4-х человек.

этого достаточно, чтобы видеть боль, вида люстры со смещением.

На сайте c 08.02.2018
Сообщений: 2499
:адуктО
Цитата garik-3d:
там сидеть будет неудобно и его постоянно!!! будут двигать

блин! к такому жизнь меня не готовила!

Цитата garik-3d:
когда захотят

а они точно захотят? 

На сайте c 11.12.2009
Сообщений: 857
Предупреждение

https://3ddd.ru/faq/241/show

Дата выдачи:
27.05.2026 12:54:58

Действует до:
30.05.2026 00:00:00
Цитата wosserOne:
блин! к такому жизнь меня не готовила

какие твои годы

Цитата wosserOne:
а они точно захотят?

а они в гости никогда и никого не ждут?

На сайте c 07.11.2023
Сообщений: 10
Цитата wosserOne:
Цитата meyanies:
я только начинающий дезигнер

а где сейчас начинают, начинающие? :) расскажите? просто интересно. Вам кстати не давали полный состав альбома чертежей на интерьер?

я беру заказы на фрилансе. сейчас у меня именно с альбомом чертежей был один проект, а этот только с чертежами планировки, сантехники и света

На сайте c 08.12.2015
Сообщений: 316

Имейте ввиду! при подборе св..ков, особенно потолочных. При отпуске потолка учитывайте блоки питания св..ков драйверы ..они имеют различный форм фактор. Их физически нужно куда-то тянуть, засовывать....в короб итд. Так же не забывайте про цоколи, они имеют свой размер....😊

На сайте c 08.02.2018
Сообщений: 2499
:адуктО

meyanies, нет, я имел ввиду где Вы учились? Там не давали полный состав? И как он выглядит?

Очень просто интересно где сейчас люди учатся, понятно, если не считать монстров образования - АРХИ всякие

На сайте c 07.11.2023
Сообщений: 10
Цитата wosserOne:

meyanies, нет, я имел ввиду где Вы учились? Там не давали полный состав? И как он выглядит?

Очень просто интересно где сейчас люди учатся, понятно, если не считать монстров образования - АРХИ всякие

у меня строительное образование, оттуда мне сейчас понадобились только уроки по автокаду) а по дизайну интерьеров проходила 1,5г онлайн курс, там и были уроки по всему комплекту чертежей, все остальное уже сама, уж очень горела 

Читают эту тему: