Проект интерьера дома, разработка в реалтайме

Автор
Сообщение
На сайте c 13.05.2019
Сообщений: 36

Всем привет. Я взялся за проект дома, 250 м2. Я не могу назвать себя начинающим - опыт 2 года, десяток реализованных проектов, но все они реализовывались онлайн. Этот проект я буду вести полностью от замеров, до консультации мастеров. Почему заказчик выбрал меня - он запросто мог взять столичного дизайнера за 20 долл/м, но это мой знакомый, он знает мой уровень, но ему важно принимать решение и участвовать в проекте, а не получить через месяц альбом. Меня такое устраивает, поскольку реализация такого проекта даст мне огромный пункт в портфолио и рекомендацию. 

Бюджет ремонта - выше среднего, даже люкс. Здесь есть диваны за 5000 долл, и встроенные вытяжки в столешницу за 2000 долл. Одним словом - можно эксперементировать. Сам ремонт заказчик планирует закрыть быстро. 

Я буду выкладывать все этапы, которые планирую вести в проекте, и хотел бы получить качественную критику или подсказки от опытных дизайнеров. Ну и если мой опыт поможет начинающим дизайнерам - буду только рад. 

На сайте c 17.03.2020
Сообщений: 3759
spb

Ну, первый этап - выкладывайте ТЗ и инфу по участку и дому

Пока не понятно, как вы разделите первичную инфу и комментарии. Иначе все потонет, иногда даже в крови и дерьме :)

На сайте c 13.05.2019
Сообщений: 36
Цитата madYuppie:

Ну, первый этап - выкладывайте ТЗ и инфу по участку и дому

Пока не понятно, как вы разделите первичную инфу и комментарии. Иначе все потонет, иногда даже в крови и дерьме :)

Все, что будет с фотками/рендерами - первичная инфа )

На сайте c 05.01.2020
Сообщений: 8153
Цитата ustmm:
Я буду выкладывать все этапы, которые планирую вести в проекте, и хотел бы получить качественную критику или подсказки от опытных дизайнеров

автор, на мой взгляд, это плохая идея. я сейчас именно про дизайн. вкусы у всех разные, вы с ума сойдете от комментариев, потратите много энергии и будете сидеть с кашей в голове от противоречивых мнений. 

касаемо технической стороны еще более менее может получиться продуктивная беседа, и то несогласные могут в схватке сцепиться ))) а вы потом сиди и думай, кто прав и что делать 

На сайте c 13.05.2019
Сообщений: 36
Цитата Катерина135:
Цитата ustmm:
Я буду выкладывать все этапы, которые планирую вести в проекте, и хотел бы получить качественную критику или подсказки от опытных дизайнеров

автор, на мой взгляд, это плохая идея. я сейчас именно про дизайн. вкусы у всех разные, вы с ума сойдете от комментариев, потратите много энергии и будете сидеть с кашей в голове от противоречивых мнений. 

касаемо технической стороны еще более менее может получиться продуктивная беседа, и то несогласные могут в схватке сцепиться ))) а вы потом сиди и думай, кто прав и что делать 

Для меня положительный итог - это довольный заказчик, а комментарии и критика - только путь к этому.

На сайте c 05.01.2020
Сообщений: 8153
Цитата ustmm:
комментарии и критика - только путь к этому.

  smiley-smile.gif  может я и ошибаюсь. посмотрим, как ваша темка пойдет. а вдруг ) 

На сайте c 17.03.2020
Сообщений: 3759
spb
экспертов главное пригласить правильных
На сайте c 05.01.2020
Сообщений: 8153
Цитата madYuppie:
экспертов главное пригласить правильных

Алан придет, все порешает )

На сайте c 13.05.2019
Сообщений: 36

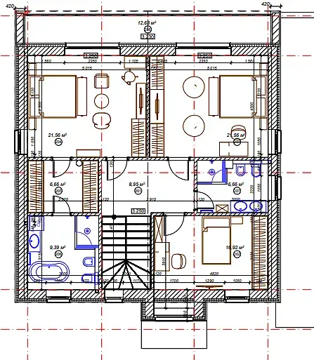
Итак, что есть на данный момент: есть замеры от застройщика (рис.1), есть мои замеры (замеры делал рулеткой, все фиксировал на телефон, см. рис.2), утверждена планировка (рис 3). Сейчас мы на этапе визуализации.

Главная проблема - заказчик пока не уверен, в каком стиле двигаться. Пока знаем, что это не классические стили, что-то современное. Из пожеланий заказчика в ТЗ - подвесной потолок с вагонки, потайные плинтусы, потайное освещение (по возможности отказаться от подвесов). По цветовой гамме пожеланий нету, но должно понравиться - нравиться и темные помещения. и светлые. Напомню, что в этом проекте я плотно общаюсь с заказчиком и мы пробуем разные варианты. 

рис.1 Пример моих замеров. Правильно ли так делать, если нет - то как правильно, чтобы не потратить пол дня на рисование на листочке? 

Рис.2 Замеры от застройщика. Замеры оказались очень не точными, поэтому мы вообще решили на них не ориентироваться

Рис 3. Ну и пример, как я презентую заказчику концепцию планировки. Каждую комнату мы утверждаем последовательно, а не весь дом сразу. Софт - Архикад.

На сайте c 05.01.2020
Сообщений: 8153
Цитата ustmm:
как правильно, чтобы не потратить пол дня на рисование на листочке? 

беру план от застройщика, в шопе делаю его светлым, чтобы нанесенные ручкой обмеры были читаемы.

замеры лазерной рулеткой, узкие простенки - обычной рулеткой. никуда пока от листочков не денешься. потом фото и видео. на большие объекты берете помощника, вы обмеры делаете, он записывает. 

На планировках основные габариты мебели проставляются, по необходимости проходы тоже. 

На сайте c 02.12.2007
Сообщений: 352
Москва

По-моему интересная тема, главное критику близко к сердцу не принимать)

Мнения все равно будут у всех разные, кто к чему привык. Я например, больше 10 лет делаю замеры на листочек от руки, корявенько,но каждый уголок, каждый см вымеряю,потом переношу в архикад) На больших объектах можно вызывать 3d обмерщиков, пока не пробовала, но многим нравится.

На сайте c 17.03.2020
Сообщений: 3759
spb

Начните с точных промеров. Особенно обратить внимание на положение окон и проемов. Обязательно - "сквозные прострелы" от одной наружной стены до другой. И привязка дыры в перекрытии.

По плану у вас потенциальный вопрос с лестницей. Изображено без просвета между маршами, нет ограждения. Также - забежные ступени нежелательны. Простройте ее точно на обоих этажах.

Также изначально учитывайте толщины отделки и радиаторы отопления (хотя бы примерно), особенно в помещениях с плотным размещением оборудования. И шторы. И подоконники. А то будут сюрпризы чуть позже :)

На сайте c 05.01.2020
Сообщений: 8153
Цитата ustmm:

В таком виде не согласовываю. после утвержденной планировки обсуждаете концепцию на примере рефов и сразу 3д делаете. без промежуточного обсуждения прикидок в 3д. 

На сайте c 13.05.2019
Сообщений: 36

В общем, это было вступление ) Планировка принята заказчиком, главное, чтобы замеры потом сошлись при кальуляции материалов. Я не буду останавливаться на выбранной планировке, каждую комнату я буду показывать когда будем ее делать, сейчас перейду сразу к следующему этапу - визуализации.

Аналогично, мы решили кааждую комнату делать отдельно, а чтобы не тратить пол дня на виз - показывать черновой виз. Это было моей ошибкой, потому что, как известно, виз встречают по первому свиданию. Уже были случаи, когда пустая тумба ужасная, а с книжками и вазонами на ней - то, что нужно. 

Просьба не относиться деструктивно к качеству рендера - все рендеры сырые, без настроенного света и теней, декоров, некоторые объекты могут летать в воздухе и рендер с большим ноизом - все для того, чтобы заказчик имел возможность быстро оценить концепцию. Я не претендую на лучший результат и уверен, вы сделали бы лучше. Финальный рендер объязательно прикреплю после подветрждения :)

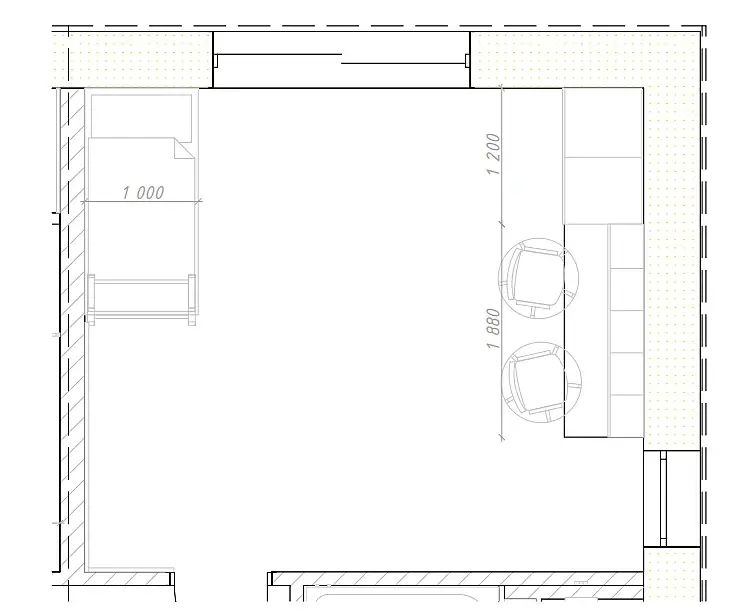
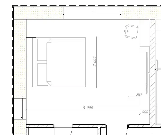
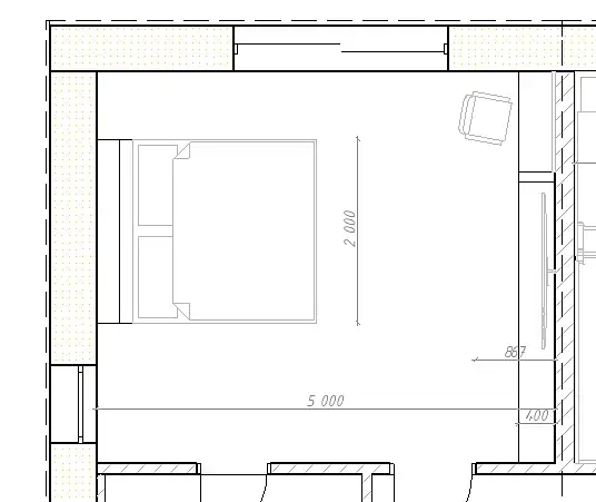
Итак, первая комната - спальня - именно над ней сейчас работаем. Есть фото комнаты и есть спроектированная планировка. Из начального ТЗ - потолок из вагонки, потайной свет, подвесной потолок, потайной плинтус, потайная дверь. По стилю и цвету пожеланий нет. По фото ниже видно две двери - одна вход в комнату, вторая - вход в с/у, по дороге в с/у - гардероб. Поэтому в комнате не будет шкафов. Также из пожеланий - большая кровать (2м шириной), а такой размер делает трудным местом для тумб (полки или пр.).

Фото комнаты: 

Утвердженная планировка:

Мы пробовали разные варианты, чтобы отказаться от тумб, т.к. большая кровать сьедала много места. Было предложено как бы столешницу у изголовья, полки. 

И первые рендеры:

Зону ТВ утвердили практически сразу, только работа над оттенками. По кровати и стилю не подошло. Заказчик провел семейный совет (обсудили рендер с семьей), им было предложено сделать темную сплальню и вагонкой стену у кровати. К тому же, он увидел парящую кровать в каком-то пине:

После чего мы приняли решение отказаться от вагонки вообще, т.к. она не покажет солидность и статус - качественно и ровно ее врят ли получится сделать на практике. 

После чего мы пробовали вариант стиля еко+сканди, вместо тумб и полок - комод-полка у изголовья:

Этот вариант зашел частично, но заказчик решил, что нужно двигаться в сторону минимализма и сканди. И если убираем узголовье-полку - возвращаемся к прикроватным полкам:

Несколько замечаний по светильникам, тумбе и цвету кровати, после чего практически утвердили концепцию:

Но я не хотел реек у изголовья, т.к. это, как по мне - "многофункциональная затычка пустых мест", и было предложено несколько вариантов:

Вот на этом этапе мы сейчас. По спальне нужно утвердить концепцию изголовья - и за помощь в этом был бы благодарен. smiley-wink.gif 

На сайте c 05.01.2020
Сообщений: 8153
Автор, простите, пожалуйста, я немного не по теме. Но это ненормально делать 10 вариантов изголовья и ловить оттенки, тк на закупках вы еще раз вернетесь к этому вопросу. Вероятно для вас этот проект важен и вы хотите максимально хорошо поработать, поэтому отзывчивы на все пожелания клиентов. Но с таким подходом в будущем вы рискуете нарваться на то, что заказчики на вас просто ехать будут, свесив ножки. И вы не отползете от бесконечных правок.
На сайте c 13.05.2019
Сообщений: 36
Цитата Катерина135:
Автор, простите, пожалуйста, я немного не по теме. Но это ненормально делать 10 вариантов изголовья и ловить оттенки, тк на закупках вы еще раз вернетесь к этому вопросу. Вероятно для вас этот проект важен и вы хотите максимально хорошо поработать, поэтому отзывчивы на все пожелания клиентов. Но с таким подходом в будущем вы рискуете нарваться на то, что заказчики на вас просто ехать будут, свесив ножки. И вы не отползете от бесконечных правок.

Вы абсолютно правы, этот проект для меня вкрай важен. Другими словами, реализация этого проекта - это открытая дверь в следующий уровень заказов. Это огромный плюс в портфолио, хороший пуш сарафанного радио по премиум заказчикам ну и большой опыт работы над премиум элементами, которые я никогда не делал ранее в проектах. 

Я понимаю, что очень много правок, и так не должно быть - но это только на этом проекте, и именно по этому мы решили работать вместе. 

На сайте c 17.03.2020
Сообщений: 3759
spb
Вы рискуете зарыться в мелочах и не осилить проект в целом. Попробуйте широкими мазками общую картину, и только потом детализироваться, если надо.
На сайте c 21.01.2019
Сообщений: 6584
Цитата ustmm:
После чего мы приняли решение отказаться от вагонки вообще, т.к. она не покажет солидность и статус - качественно и ровно ее врят ли получится сделать на практике.

Позволю себе не согласиться. На мой взгляд, качественная отделка натуральным деревом это как раз солидно и статусно. Но для этого нужны спецы соответствующего уровня. Мастер по обшивке балконов вряд ли подойдет ) Также к плюсам дерева я бы отнес возможность вписать его практически в любой интерьер, т.к. оно и тонируется и красится в любые цвета

На сайте c 05.01.2020
Сообщений: 8153
По большому счёту тут без разницы, какого вида будет панель, на концепцию это не особо влияет.  мне не нравитч, примыкание панели к голому откосу окна. попробуйте его тоже в дереве сделать. На стенах просто краску, этот эффект штукатурки тут не к месту, шторы из ниши такой длинной.. странный вид.
На сайте c 13.05.2019
Сообщений: 36
Какой вариант шторы можно предложить? Высота окна от 2500 до 4000.
Читают эту тему: