Развертки стен и штриховки

Автор
Сообщение
На сайте c 18.03.2008
Сообщений: 267
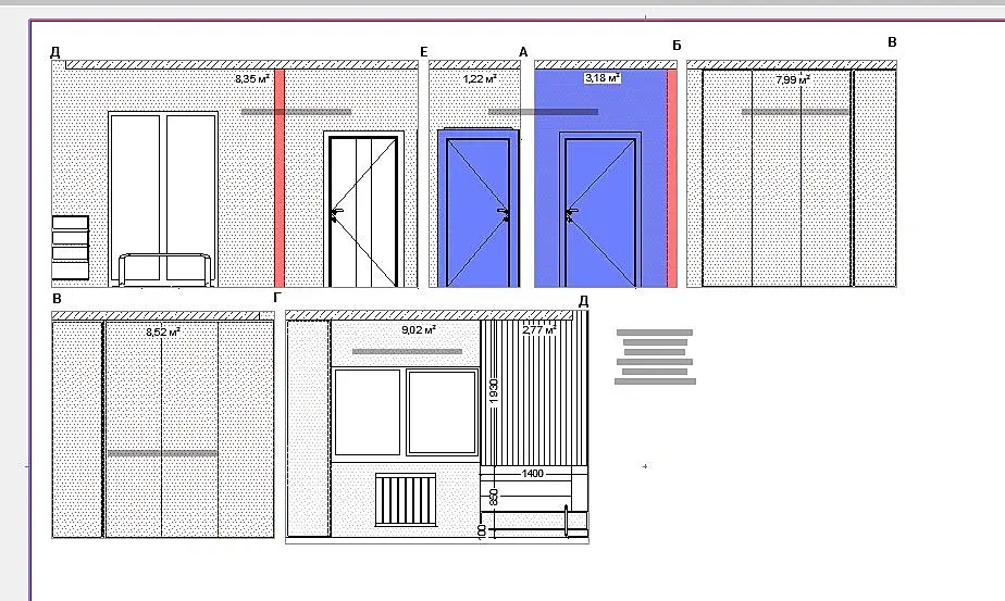
Приветсвую всех! Помогите пожалуйста, начала осваивать человеческое ведение разверток, арх 22, вот есть стена, стоит шкаф, унитаз ванна, делаю штриховку, задача у меня следующая - что бы было видно и контур мебели и саму штриховку, как в случае с унитазом и полотенчиком, как я это умудрилась сделать не понимаю.... а шкаф рядом уже не просвечивает штриховку. или штриховка перекрывает сам шкаф, а он мне тоже нужен, помогите, а??

 

а вот вторая развертка, на ней не получается ничего отразить "насквозь",

вариант сделать материал прозрачное стекло не очень помогает...(

На сайте c 26.09.2006
Сообщений: 5356
Белокаменная

Штриховку эту вы нарисовали именно в развёртке, или как свойство материала?

1) Можно сделать СЛОЙ каркасным.

2) Можно "передвинуть" мебель вперёд "Порядком отображения"

3) Если ответ на мой вопрос "Штриховка", то задайте в свойствах штриховки значение Пера Фона Штриховки "0"

PS

Когда задаете вопрос, на этом форуме, про ArchiCAD, то в заголовке то же отметьте что про ArchiCAD вопрос.

На сайте c 18.03.2008
Сообщений: 267
Цитата sagava:

Штриховку эту вы нарисовали именно в развёртке, или как свойство материала?

1) Можно сделать СЛОЙ каркасным.

2) Можно "передвинуть" мебель вперёд "Порядком отображения"

3) Если ответ на мой вопрос "Штриховка", то задайте в свойствах штриховки значение Пера Фона Штриховки "0"

PS

Когда задаете вопрос, на этом форуме, про ArchiCAD, то в заголовке то же отметьте что про ArchiCAD вопрос.

Штриховка была нарисована в развертке

1. только это помогло, но много лишнего и для меня загадка, как все-таки получилось как на первом рисунке?

2. когда передвигаю, она собой перекрывает саму штриховку

3. если перо "0", то оно не имеет цвет, а они мне нужен..

ps ок)

На сайте c 20.03.2019
Сообщений: 3
Архикад 22 . Проблема с макетом развёрток .

Добрый день всем ! Совсем отчаялась ! На макете с развёртками чертежи отражаются со всеми стилями графической замены , то есть , то что демонтировалось , видно красным , то , что монтировалось видно синим , хотя в видах всё хорошо , в развёртках тоже и как только я их сохраняю на макет пдф , то происходит такая для меня катастрофа ...
На сайте c 21.11.2010
Сообщений: 116
Краснодар

Здравствуйте. Подскажите, пожалуйста, в чем может быть проблема? При создании развертки в карте видов все отображается как надо. При размещении развертки на макет, развертка становится черной. 
Все замены все пересмотрела - все нормально. Архикад 25 стоит. 

На сайте c 26.09.2006
Сообщений: 5356
Белокаменная
Цитата Lily555:

Здравствуйте. Подскажите, пожалуйста, в чем может быть проблема? При создании развертки в карте видов все отображается как надо. При размещении развертки на макет, развертка становится черной. 
Все замены все пересмотрела - все нормально. Архикад 25 стоит. 

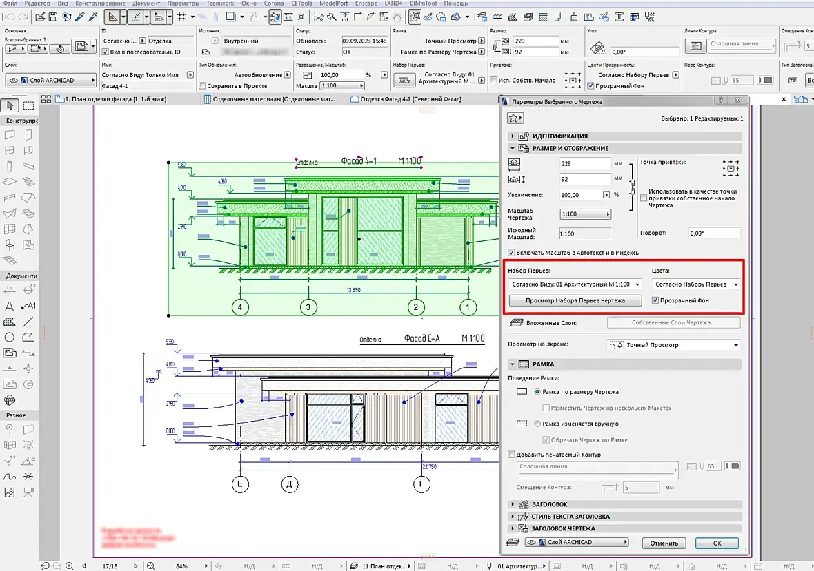
Если Виды настроены правильно, то проверьте В Параметрах Чертежа, наборы Перьев.

На сайте c 21.11.2010
Сообщений: 116
Краснодар

Цитата sagava:
Цитата Lily555:

Здравствуйте. Подскажите, пожалуйста, в чем может быть проблема? При создании развертки в карте видов все отображается как надо. При размещении развертки на макет, развертка становится черной. 
Все замены все пересмотрела - все нормально. Архикад 25 стоит. 

Если Виды настроены правильно, то проверьте В Параметрах Чертежа, наборы Перьев.

Спасибо, посмотрю 

Цитата sagava:
Цитата Lily555:

Здравствуйте. Подскажите, пожалуйста, в чем может быть проблема? При создании развертки в карте видов все отображается как надо. При размещении развертки на макет, развертка становится черной. 
Все замены все пересмотрела - все нормально. Архикад 25 стоит. 

Если Виды настроены правильно, то проверьте В Параметрах Чертежа, наборы Перьев.

Все согласно виду. Не меняется , именно внутри все черным отображается 

На сайте c 26.09.2006
Сообщений: 5356
Белокаменная
Цитата Lily555:
Все согласно виду. Не меняется , именно внутри все черным отображается

А какие настройки ГрафЗамены вида как?

На сайте c 21.11.2010
Сообщений: 116
Краснодар

Цитата sagava:
Цитата Lily555:
Все согласно виду. Не меняется , именно внутри все черным отображается

А какие настройки ГрафЗамены вида как?

Вот такие замены 0

Цитата sagava:
Цитата Lily555:
Все согласно виду. Не меняется , именно внутри все черным отображается

А какие настройки ГрафЗамены вида как?

Пробовала загрузить двг файл. Мог ли он поменять настройки ?

На сайте c 12.12.2019
Сообщений: 1
Цитата sagava:
Цитата Lily555:

Здравствуйте. Подскажите, пожалуйста, в чем может быть проблема? При создании развертки в карте видов все отображается как надо. При размещении развертки на макет, развертка становится черной. 
Все замены все пересмотрела - все нормально. Архикад 25 стоит. 

Если Виды настроены правильно, то проверьте В Параметрах Чертежа, наборы Перьев.

У меня было также. Включила "истинное отображение штриховки" (Вид - Параметры вывода на экран) и всё наладилось. 

Активность: 0
На сайте c 18.03.2022
Сообщений: 1
Спасибо последнему автору. Помогло
Читают эту тему: